Grünlage: Schöne 86m² Neubau-Maisonette + 20m² Terrassen und Garage - 1230 Wien

Wohnung , 1230 Wien


Gregorygasse

Beschreibung der Immobilie

Grünlage: Schöne 86m² Neubau-Maisonette + 20m² Terrassen und Garage - 1230 Wien

Wohnerlebnis Schlossallee: Zentral begehbare 86m² DG-Maisonette mit 3 Zimmern in Grünlage!



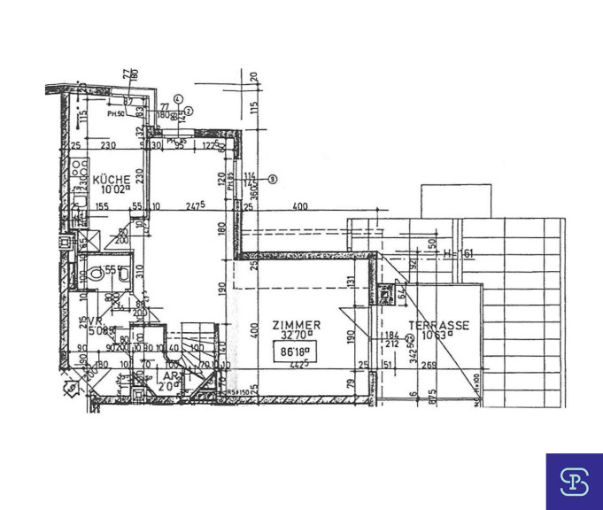
Diese schöne Wohnung befindet sich im Dachgeschoß (2. Stock, kein Lift) eines gepflegten Neubaus in der Gregorygasse, in unmittelbarer Nähe des Grüngebiets rund um den Liesingbach. Die sonnige Wohnung ist süd- und westseitig ausgerichtet und besteht auf Etage 1 aus einem großzügigen Wohn- und Essbereich, Küche, Vorraum, WC und Abstellraum sowie einer 10m² Terrasse mit schönem Ausblick,. Auf Etage 2 befinden sich 2 Zimmer, Badezimmer mit WC und Vorraum, sowie eine weitere große Terrasse mit 10m² und ein kleiner Süd-Balkon,.  



Ausstattung: Neubauwohnung Bj. 1994 mit Gasetagenheizung, Echtholz-Dielenböden, Fenster mit Mehrfachverglasung und Sonnenschutz, Fliesenbad mit Badewanne und WC, Separates Gäste-WC mit Handwaschbecken, geräumiges Kellerabteil (ca. 8-10m²), Fahrradraum,.



Optional kann zusätzlich 1 Tiefgaragenplatz (Eigentum) um € 19.900,- erworben werden. 



Die Einbauküche sowie die abgebildeten Möbel können auf Wunsch kostenfrei übernommen werden. Andernfalls wird die Wohnung geräumt und unmöbliert übergeben.  



Die gesamte Wohnung wurde fachmännisch neu ausgemalt und befindet sich in einem sehr guten, sofort bezugsbereiten Zustand. Schöne Wohnlage in verkehrsberuhigter Lage, nur 2-3 Gehminuten vom Liesingbach und der umgebenden Grünzone entfernt. Der ideale Ausgangspunkt für ausgedehnte Radtouren, Laufsport oder Ausflüge ins Grüne. Gute Infrastruktur durch zahlreiche Einkaufsmöglichkeiten in nächster Umgebung und öffentlicher Verkehrsanbindung durch die Autobuslinien 64A (Entfernung ca. 210m), 62A (Entfernung ca. 350m) und 60A mit Anbindung zur U6 Alt Erlaa. Das Objekt eignet sich aufgrund der guten Raumaufteilung und der freien Mietzinsgestaltung neben der Eigennutzung auch sehr gut für AnlegerInnen zur Vermietung.



Die Wohnung wird ab sofort im Wohnungseigentum verkauft!

Kaufpreis € 375.000,- 
Bk netto € 178,71

Reparaturrücklage € 140,05

Garagenplatz optional € 19.900,-
Vermittlungsprovision 3% vom KP zuzügl. 20% USt.



KONTAKT: Anfragen bitte nur per Email-Anfragefunktion! Keine telefonische Terminvergabe!





Besuchen Sie für unsere weiteren Angebote bitte auch unsere Homepage: www.sitarz.at



Der Käufer zahlt im Erfolgsfall an die Firma Sitarz & Partner Immobilien GmbH eine Maklerprovision in Höhe von 3% des Kaufpreises zzgl. 20% Ust. Die Provision errechnet sich aus dem beurkundeten Kaufpreis. Ausdrücklich vereinbart wird dieser Provisionsanspruch in gleicher Höhe auch für die in § 15 MaklerG vorgesehenen Fälle (Unterlassung eines notwendigen Rechtsaktes wider Treu und Glauben, Abschluss eines zweckgleichen Geschäftes, Abschluss mit einem Dritten aufgrund der Weitergabe der Abschlussmöglichkeit, Ausübung eines Vorkaufs-, Wiederkaufs- oder Eintrittsrechtes). Wir halten fest, dass Ihnen dieses Objekt erstmals durch unsere Tätigkeit als Immobilienmakler bekannt wurde. Falls Ihnen dieses Objekt bereits als verkauf- oder vermietbar bekannt ist, ersuchen wir innerhalb von 3 Werktagen um Ihre schriftliche Nachricht, ansonsten gilt die Provisionsregelung als vereinbart. Bei den Größen und Ertragsangaben handelt es sich um die von Abgeber/in (Eigentümer/in bzw. Hausverwaltung) zur Verfügung gestellten Informationen. Die Angaben wurden von uns kontrolliert, eine Gewähr für die Richtigkeit, Vollständigkeit und Letztstand müssen wir allerdings ausschließen. Es wird darauf hingewiesen, dass zwischen dem Abgeber und dem Immobilienmakler ein wirtschaftliches bzw. familiäres Nahverhältnis besteht und der Immobilienmakler auch für diesen tätig ist (Doppelmakler).


Hinweis gemäß Energieausweisvorlagegesetz: Ein Energieausweis wurde vom Eigentümer bzw. Verkäufer, nach unserer Aufklärung über die generell geltende Vorlagepflicht, sowie Aufforderung zu seiner Erstellung noch nicht vorgelegt. Daher gilt zumindest eine dem Alter und der Art des Gebäudes entsprechende Gesamtenergieeffizienz als vereinbart. Wir übernehmen keinerlei Gewähr oder Haftung für die tatsächliche Energieeffizienz der angebotenen Immobilie.


Der Vermittler ist als Doppelmakler tätig.

Infrastruktur / Entfernungen

Gesundheit
Arzt <1.000m
Apotheke <1.000m
Klinik <1.000m
Krankenhaus <1.000m

Kinder & Schulen
Schule <500m
Kindergarten <1.000m
Universität <4.000m
Höhere Schule <3.500m

Nahversorgung
Supermarkt <500m
Bäckerei <1.000m
Einkaufszentrum <1.000m

Sonstige
Geldautomat <1.000m
Bank <1.000m
Post <1.000m
Polizei <1.000m

Verkehr
Bus <500m
U-Bahn <1.000m
Straßenbahn <1.500m
Bahnhof <1.000m
Autobahnanschluss <1.500m

Angaben Entfernung Luftlinie / Quelle: OpenStreetMap

Eckdaten Objektnr. 7631

Art: Wohnung
Land: Österreich
Baujahr: 1994
Zustand: Gepflegt
Möbliert: Teil
Alter: Neubau
Kaufpreis: 375.000,00
Provision: 3% des Kaufpreises zzgl. 20% USt.
Betriebskosten: 178,71 €
MwSt Gesamt: 17,87 €
Wohnfläche: 86,00 m²
Zimmer: 3
Bäder: 1
WC: 2
Balkone: 1
Terrassen: 2
Keller: 8,00 m²
Immobilie merken Exposé

Ausstattung

Dielenboden, Fliesen, Gas, Etagenheizung, Einbauküche, Badewanne, Kabel/Satelliten-TV, Tiefgarage


Immobilie anfragen


Ihre persönliche Beratung

Sitarz & Partner Immobilien GmbH

Sitarz & Partner Immobilien GmbH

Sitarz & Partner Immobilien GmbH

T +4318907940