TRAUMLAGE ! FAMILIEN-FERIENWOHNUNG !! Zweitwohnsitz!! Apartments direkt an der Skipiste – Hochrindl
Wohnung
,
9571
Hochrindl
,
Steingartenweg
Entdecken Sie Ihre Oase der Ruhe in Hochrindl! Diese charmante Ferienwohnung am Steingartenweg bietet eine optimale Süd-West Ausrichtung, die Ihnen den ganzen Tag über Sonnenlicht schenkt. Genießen Sie die idyllische Umgebung und die frische Bergluft. In unmittelbarer Nähe finden Sie einen kleine Supermarkt und 3 Gaststätten für Ihre täglichen Bedürfnisse sowie eine Bushaltestelle für einfache Erreichbarkeit. Ideal für Erholungssuchende und Naturliebhaber!
Beschreibung der Immobilie
TRAUMLAGE ! FAMILIEN-FERIENWOHNUNG !! Zweitwohnsitz!! Apartments direkt an der Skipiste – Hochrindl
KÄRNTEN / HOCHRINDL
IHR FERIENDOMIZIL IN TRAUMLAGE - DIREKT AN DER SKIPISTE !
Seltene ZWEITWOHNSITZ Widmung
Willkommen in Ihrem neuen Zuhause – einer charmanten Ferienwohnung in der malerischen Region Hochrindl, Kärnten. Genießen Sie die Vorzüge dieser Wohnung und lassen Sie sich von der Schönheit der Natur Kärntens verzaubern.
In einzigartiger Lage, unmittelbar neben der Skipiste, liegt das Ferienhaus Karoline. Zum Verkauf stehen 5 Apartments mit Wohnflächen von ca. 39 m² bis 95 m². Fast jede Einheit verfügt entweder über eine Terrasse, einen Balkon oder einen Gartenanteil.
Die Wohnungen werden im Ist-Zustand verkauft und sind als Zweitwohnsitz gewidmet – perfekt für alle, die ein eigenes Feriendomizil in den Bergen suchen.
Und natürlich können Sie auch noch in der freien Zeit ihre Wohnung vermieten und noch zusätzlich Einnahmen lukrieren.
DIE FAKTEN:
- Einheiten: 5 Ferienappartments
- Wohnflächen: ca. 42-94 m²
- Widmung: Bauland-Kurgebiet-Sonderwidmung-Freizeitwohnsitz
- Freifläche: Balkon/Terrasse oder Gartenanteil
- Erreichbarkeit: das ganze Jahr
- Nutzung als Zweitwohnsitz
- Kurzzeitvermietung möglich
- Ski-in / Ski-out – direkt bei der Piste
- Herrliche Aussicht
- Top-Lage mitten im Skigebiet Hochrindl
- Wohnungseigentum
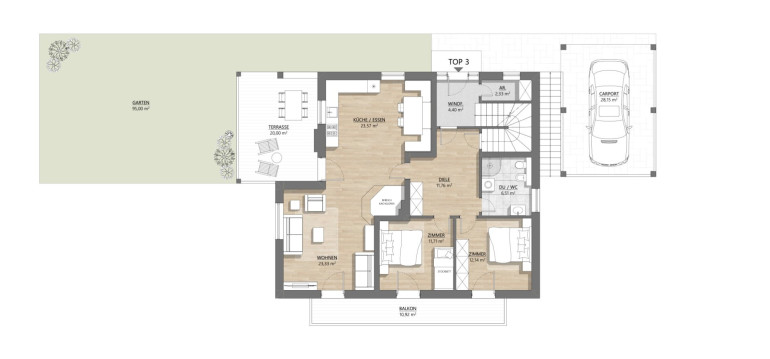
DIE TOP 3
95,75 m2 Wohnfläche, 3 Zimmer, großer überdachter Terrasse, südseitig ausgerichteter Balkon, Gartenanteil, 1 KFZ-Stellplatz.
Diese großzügige 3-Zimmer-Wohnung mit ca. 95,75 m² Wohnfläche erstreckt sich über das gesamte Geschoss und überzeugt durch ihre ideale Raumaufteilung und der traumhaften Lage direkt neben der Piste.
Das Herzstück der Wohnung bildet der ca. 47 m² große Wohn- und Essbereich mit voll ausgestatteter Küche, gemütlichem Sitzbereich und Kachelofen. Von hier aus gelangen Sie sowohl auf den Balkon als auch auf die südseitige, ca. 23 m² große, überdachte Terrasse – perfekt zum Entspannen und Genießen.
Die beiden Schlafzimmer bieten ausreichend Platz für Familie und Gäste und sind derzeit mit zwei Doppelbetten sowie einem Stockbett eingerichtet. Somit finden bis zu 4 Erwachsene und 2 Kinder bequem Platz. Der ca. 10 m² große Balkon ist sowohl vom Wohnzimmer als auch von den Schlafzimmern zugänglich.
Das großzügige Badezimmer ist mit Dusche, Waschtisch, Bidet und WC ausgestattet.
Ein eigener Gartenanteil sowie ein Carport runden dieses attraktive Angebot ab.
Raumaufteilung:
- Wohn-Essbereich mit Küchenzeile, Kachelofen
- 1 Schlafzimmer (derzeit mit Doppelbett und Stockbett ausgestattet)
- 1 Schlafzimmer (mit Doppelbett)
- 1 Badezimmer mit Dusche, Waschtisch, Bidet und Wc
- Südwestseitig ausgerichtete Terrasse
- 10 m² Balkon (Süd)
Die Wohnung wird im Ist-Zustand übergeben. Auf Wunsch können auch gewisse Sanierungsmaßnahmen - gegen Aufpreis - vom Verkäufer übernommen werden.
Ausstattung: Öl Zentralheizung, Kunststofffenster, teilweise Parkett, teilweise Laminatboden.
Weitere Informationen finden Sie auf unserer Projekt Homepage: https://www.ferienwohnunghochrindl.at
Freizeit auf der Hochrindl
Die Lage dieser Immobilie ist einfach unschlagbar.
DIREKT BEI DER SKIPISTE!
Hochrindl, bekannt für seine beeindruckende Natur und die Vielzahl an Freizeitmöglichkeiten, ist der perfekte Ort, um dem Alltag zu entfliehen. Die Umgebung bietet Ihnen und Ihren Gästen nicht nur Ruhe und Erholung, sondern auch zahlreiche Aktivitäten, sei es im Sommer beim Wandern und Radfahren oder im Winter beim Skifahren und Snowboarden. Die Hochrindl ist malerisch umrahmt von den Kärntner Nockbergen. Die Hochrindl (1617 m) ist ein Alpenpass sowie ein Alm- und Skigebiet in den Nockbergen in Kärnten zwischen Ebene Reichenau und Sirnitz. Das zahlreiche Angebot finden Sie hier: https://www.hochrindl.at
Lage / Anfahrt
Die Anfahrt erfolgt meist über die B93 (Gurktal Straße), mit einem Abzweiger zur Hochrindl-Landesstraße (L65), die direkt ins Almgebiet führt.
Mit dem Auto
- Über die A2 bis nach Klagenfurt. Dann Feldkirchen – Sirnitz/Albeck – Hochrindl.
- Über die Semmering Schnellstraße bis Friesach, weiter nach Sirnitz/Albeck – Hochrindl.
- Über die A11 bis Villach. Dann Feldkirchen – Sirnitz/Albeck – Hochrindl.
- Über die A11 bis zur Abfahrt Spittal – Radenthein – Bad Kleinkirchheim – Ebene Reichenau – Hochrindl.
Ob für die eigene Nutzung oder als Anlage – diese Apartments verbinden Ihre Auszeit mit einer außergewöhnlichen Lage inmitten der Kärntner Bergwelt.
Vereinbaren Sie noch heute einen Besichtigungstermin und lassen Sie sich von der einzigartigen Atmosphäre dieser Freizeitimmobilie verzaubern.
Wir freuen uns auf Ihre Anfrage und stehen für Besichtigungen vor Ort jederzeit gerne zur Verfügung.
Hinweis gemäß Energieausweisvorlagegesetz: Ein Energieausweis wurde vom Eigentümer bzw. Verkäufer, nach unserer Aufklärung über die generell geltende Vorlagepflicht, sowie Aufforderung zu seiner Erstellung noch nicht vorgelegt. Daher gilt zumindest eine dem Alter und der Art des Gebäudes entsprechende Gesamtenergieeffizienz als vereinbart. Wir übernehmen keinerlei Gewähr oder Haftung für die tatsächliche Energieeffizienz der angebotenen Immobilie.
Wir weisen darauf hin, dass zwischen dem Vermittler und dem zu vermittelnden Dritten ein familiäres oder wirtschaftliches Naheverhältnis besteht.
Der Vermittler ist als Doppelmakler tätig.
Infrastruktur / Entfernungen
Kinder & Schulen
Schule <6.500m
Nahversorgung
Supermarkt <250m
Sonstige
Geldautomat <6.000m
Bank <6.000m
Post <8.000m
Verkehr
Bus <250m
Angaben Entfernung Luftlinie / Quelle: OpenStreetMap
Eckdaten Objektnr. 119000003
| Art: | Wohnung |
| Land: | Österreich |
| Baujahr: | 1995 |
| Zustand: | Gepflegt |
| Alter: | Neubau |
| Kaufpreis: | 365.000,00 € |
| Kaufpreis / m²: | 3.842,11 € |
| Betriebskosten: | 180,00 € |
| Sonstige Kosten: | 95,00 € |
| Wohnfläche: | 95,75 m² |
| Grundstücksfl.: | 81,00 m² |
| Zimmer: | 3 |
| Bäder: | 1 |
| WC: | 1 |
| Balkone: | 1 |
| Terrassen: | 1 |
| Stellplätze: | 1 |
| Garten: | 95,00 m² |
Ausstattung
Fliesen, Laminatboden, Parkettboden, Öl, Etagenheizung, Zentralheizung, Wohnküche / offene Küche, Dusche
Ihre persönliche Beratung
Alexander Lafenthaler
Ticon Immobilienservice
T +43 664 1225007
H +43 664 1225007
F +43 1 9618101