Sanierungsbedürftiges Mehrfamilienhaus mit großem Potenzial in Grünau im Almtal

Haus - Mehrfamilienhaus, 4645 Grünau im Almtal


Natur pur: Nur wenige Minuten zum beliebten Skigebiet Kasberg – im Winter ein Wintermärchen, im Sommer ein Paradies für Wander‐ und Naturliebhaber. Einkauf & Nahversorgung: Im Ortszentrum von Grünau befindet sich beispielsweise der Lebensmittelmarkt SPAR – bequem erreichbar. Pädagogische Infrastruktur: Kindergarten (Kirchenplatz 5) und Volksschule (Kirchenplatz 4) sind im Ort vorhanden und sorgen für eine familienfreundliche Umgebung. Verkehrsanbindung: Die Anreise ist unkompliziert – via Westautobahn A1 über die Ausfahrt nach Scharnstein/Grünau.

Beschreibung der Immobilie

Sanierungsbedürftiges Mehrfamilienhaus mit großem Potenzial in Grünau im Almtal

Dieses charmante Haus wurde um 1800 erbaut und im Laufe der Jahre mehrfach um- und ausgebaut.



Es besticht durch seine Größe, Vielseitigkeit und den einzigartigen Charme eines historischen Gebäudes.

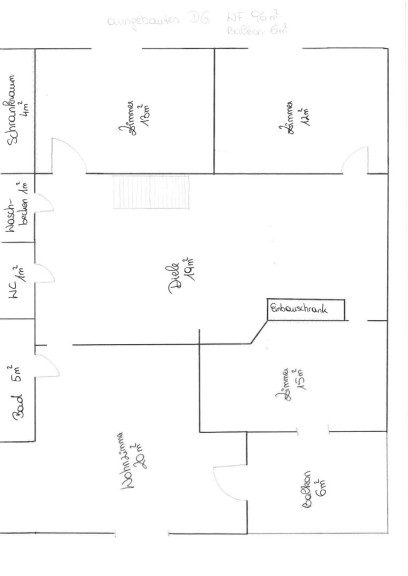
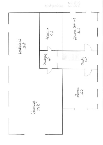
Mit einer Wohnfläche von rund 227 m², verteilt auf 10 Zimmer im Erd-, Ober- und Dachgeschoss, bietet das Haus vielfältige Nutzungsmöglichkeiten.



Ob als großzügiges Eigenheim, Mehrgenerationenhaus oder zur Vermietung  – hier sind Ihrer Fantasie keine Grenzen gesetzt.




Die Grundsubstanz des Gebäudes ist solide, jedoch ist eine umfassende Kernsanierung erforderlich, um das Objekt auf den heutigen Stand zu bringen.

Die Fenster wurden bereits erneuert, das Haus selbst wird unmöbliert übergeben. Geheizt wird derzeit mit Öl.




Besonders hervorzuheben sind die drei Balkone, die einen herrlichen Blick ins Grüne ermöglichen und zum Entspannen einladen.

Das Grundstück liegt inmitten idyllischer Grünflächen und bietet eine ruhige, naturnahe Wohnlage.




Die Lage überzeugt: Nur wenige Minuten entfernt befindet sich das Skigebiet Kasberg, das sowohl im Sommer als auch im Winter ein beliebtes Ziel für Naturliebhaber, Wanderer und Wintersportler ist.





*die Bilder wurden mit KI bearbeitet. 


Der Vermittler ist als Doppelmakler tätig.

Infrastruktur / Entfernungen

Gesundheit
Arzt <1.500m
Apotheke <6.000m

Kinder & Schulen
Schule <1.000m

Nahversorgung
Supermarkt <1.000m
Bäckerei <1.000m

Sonstige
Geldautomat <1.000m
Bank <1.000m
Polizei <6.500m

Verkehr
Bus <1.000m
Bahnhof <1.000m
Flughafen <5.500m

Angaben Entfernung Luftlinie / Quelle: OpenStreetMap

Eckdaten Objektnr. 1793/175

Art: Haus - Mehrfamilienhaus
Land: Österreich
Baujahr: 1966
Zustand: Teil_vollrenovierungsbed
Alter: Altbau
Kaufpreis: 299.000,00
Kaufpreis / m²: 1.317,18 €
Provision: 10.764,00 € inkl. 20% USt.
Wohnfläche: 227,00 m²
Nutzfläche: 61,00 m²
Grundstücksfl.: 423,00 m²
Zimmer: 10
Balkone: 3
Stellplätze: 1
Heizwärmebedarf:  D  87,00 kWh/m²a
fGEE:  D  2,04
Immobilie merken Exposé

Ausstattung

Laminatboden, Dielenboden, Fliesen, Öl, Zentralheizung, Bad mit Fenster, Dusche, Kabel/Satelliten-TV, Garage, Parkplatz


Immobilie anfragen


Ihre persönliche Beratung

OVB Allfinanzvermittlungs GmbH

Daniel Moser

OVB Allfinanzvermittlungs GmbH