PRODUKTIVES ABREITSKLIMA - JETZT FÜR SIE BEREIT - TOP 06

Büro / Praxis - Bürofläche, 4040 Linz , Rudolfstraße 55


Stadtrand/Ortsrand, Toplage, Ebene Lage, Nähe öffentliche Verkehrsmittel

Beschreibung der Immobilie

PRODUKTIVES ABREITSKLIMA - JETZT FÜR SIE BEREIT - TOP 06

Willkommen in Ihrem neuen produktiven Workspace - sofort starklar für Sie und Ihr Team.



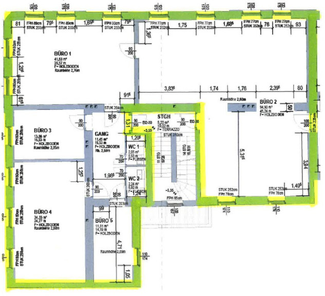
Diese großzügige Bürofläche in der 1. Etage bietet Ihnen eine beeindruckende Fläche von 212,49 m², die sich perfekt für unterschiedlichste Nutzungsmöglichkeiten eignet. 



Sie profitieren von einer zentralen Lage, die sich durch eine exzellente Verkehrsanbindungen auszeichnet. Die nahegelegenen Bus- und Straßenbahnhaltestellen ermöglichen eine unkomplizierte Erreichbarkeit für Ihre Mitarbeiter und Kunden. Auch der Bahnhof ist in ca 20 Minuten zu erreichen, sodass Sie von einer optimalen Anbindung an die umliegenden Städte profitieren können. Zudem sorgt der Autobahnanschluss dafür, dass Sie auch mit dem Auto schnell und bequem unterwegs sind.



Die Infrastruktur rund um die Immobilie ist hervorragend. In unmittelbarer Nähe finden Sie alles, was Sie für den täglichen Bedarf benötigen. Ob Arzt, Apotheke, Schule oder Kindergarten – die wichtigsten Einrichtungen sind fußläufig erreichbar. Auch Supermärkte, Bäckereien und ein Einkaufszentrum befinden sich in der Nachbarschaft, was die Lage nicht nur für Ihr Unternehmen, sondern auch für Ihre Mitarbeiter äußerst attraktiv macht.



Die Bürofläche selbst besticht durch ihre Helligkeit und Offenheit, die eine angenehme Arbeitsatmosphäre schafft. Große Fensterfronten sorgen für ausreichend Tageslicht und ein modernes Ambiente, eine Teeküche wird zur Verfügung gestellt.



Nutzen Sie die Chance, an einem der besten Standorte in Linz Fuß zu fassen. Diese Immobilie bietet Ihnen nicht nur eine hervorragende Lage, sondern auch die Möglichkeit, ganz in der Nähe Ihrer Zielgruppe zu sein. Überzeugen Sie sich selbst von den unzähligen Vorteilen, die diese Bürofläche zu bieten hat!



Vereinbaren Sie noch heute einen Besichtigungstermin und lassen Sie sich von den Möglichkeiten dieser Immobilie inspirieren. Ihr neuer Standort wartet auf Sie!


Wir weisen darauf hin, dass zwischen dem Vermittler und dem zu vermittelnden Dritten ein familiäres oder wirtschaftliches Naheverhältnis besteht.


Der Vermittler ist als Doppelmakler tätig.

Infrastruktur / Entfernungen

Gesundheit
Arzt <150m
Apotheke <450m
Klinik <925m
Krankenhaus <1.350m

Kinder & Schulen
Kindergarten <200m
Schule <200m
Universität <575m
Höhere Schule <1.400m

Nahversorgung
Supermarkt <500m
Bäckerei <450m
Einkaufszentrum <850m

Sonstige
Bank <475m
Geldautomat <475m
Post <650m
Polizei <450m

Verkehr
Bus <250m
Straßenbahn <200m
Bahnhof <475m
Autobahnanschluss <500m
Flughafen <4.525m

Angaben Entfernung Luftlinie / Quelle: OpenStreetMap

Eckdaten Objektnr. 1937/7645880

Art: Büro / Praxis - Bürofläche
Land: Österreich
Kaltmiete (netto): 1.593,68 €
Kaltmiete: 1.912,42 €
Miete / m²: 7,50 €
Provision: EUR 6.693,47 plus 20.0% USt.
Betriebskosten: 318,74 €
Heizkosten: 318,74 €
MwSt Gesamt: 446,24 €
Gesamtfläche: 212,49 m²
Bürofläche: 212,49 m²
Heizwärmebedarf: 133,00 kWh/m²a
Immobilie merken Exposé

Ausstattung

Teeküche


Immobilie anfragen


Ihre persönliche Beratung

Silvia Loizenbauer

AREV Immobilien GmbH

T 0732/ 60 55 33 - 364

H 0664/ 81 85 330