READY TO USE OFFICE - SOFORT STARTKLAR - OPTIMALER STANDORT - B04

Büro / Praxis - Bürofläche, 4020 Linz , Sandgasse 14A


Stadtzentrum/Ortszentrum, Toplage, Ebene Lage, Gute Verkehrslage, Nähe öffentliche Verkehrsmittel

Beschreibung der Immobilie

READY TO USE OFFICE - SOFORT STARTKLAR - OPTIMALER STANDORT - B04

Willkommen in Ihrer neuen Bürofläche in der pulsierenden Stadt Linz! Diese attraktive Immobilie befindet sich in der 4. Etage eines modernen Gebäudes und bietet Ihnen die perfekte Grundlage für Ihr berufliches Vorhaben.



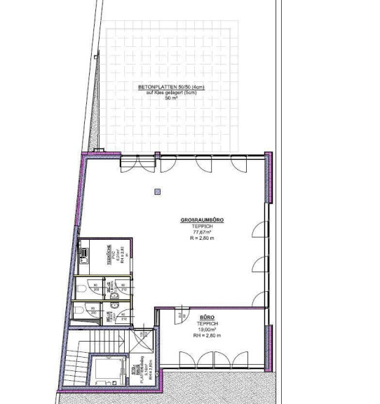
Mit einer großzügigen Fläche von 115 m² können Sie Ihr Büro oder Ihre Praxis individuell gestalten und an Ihre Bedürfnisse anpassen. Die hellen und lichtdurchfluteten Räume schaffen eine angenehme Arbeitsatmosphäre und fördern die Kreativität und Produktivität.



Ein besonderes Highlight dieser Immobilie ist der Balkon, auf dem Sie eine wohlverdiente Pause genießen oder frische Luft schnappen können. Die beiden WCs sorgen für zusätzlichen Komfort und Funktionalität im Arbeitsalltag.



Die Lage könnte nicht besser sein: Direkt im Herzen von Linz profitieren Sie von einer hervorragenden Verkehrsanbindung. Ob mit dem Bus, der Straßenbahn oder zu Fuß – Sie erreichen alle wichtigen Punkte der Stadt im Handumdrehen. Der Bahnhof ist ebenfalls nur wenige Minuten entfernt und ermöglicht Ihnen eine schnelle Anreise aus den umliegenden Regionen.



In unmittelbarer Nähe finden Sie alles, was Sie für den täglichen Bedarf benötigen. Ärzte, Apotheken, Kliniken und Krankenhäuser sind schnell erreichbar, was für Sie und Ihre Patienten oder Kunden von großem Vorteil ist. Für Familien bieten die nahegelegenen Schulen und Kindergärten eine ideale Infrastruktur. Auch die Universität ist nicht weit entfernt und ermöglicht Ihnen den Zugang zu einem breiten Netzwerk an Studierenden und Fachkräften.



Einkaufsmöglichkeiten sind ebenfalls reichlich vorhanden. Supermärkte, Bäckereien und ein Einkaufszentrum in der Nähe sorgen dafür, dass Sie in Ihrer Mittagspause oder nach der Arbeit alles Notwendige bequem erreichen können.



Die monatliche Miete von 2.359,80 € ist eine lohnenswerte Investition in Ihre berufliche Zukunft. Nutzen Sie diese Chance, um Teil des dynamischen und wachsenden Umfelds von Linz zu werden.



Die Heizkosten werden monatlich mit 80,50 Euro zzgl. USt. vorgeschrieben.



Zögern Sie nicht, uns zu kontaktieren, um einen Besichtigungstermin zu vereinbaren. Lassen Sie sich diese einmalige Gelegenheit nicht entgehen und starten Sie Ihre nächste unternehmerische Herausforderung in dieser idealen Bürofläche!

Infrastruktur / Entfernungen

Gesundheit
Arzt <375m
Apotheke <475m
Klinik <475m
Krankenhaus <500m

Kinder & Schulen
Kindergarten <125m
Schule <200m
Universität <800m
Höhere Schule <1.025m

Nahversorgung
Supermarkt <225m
Bäckerei <275m
Einkaufszentrum <875m

Sonstige
Bank <375m
Geldautomat <375m
Post <650m
Polizei <825m

Verkehr
Bus <275m
Straßenbahn <625m
Bahnhof <700m
Autobahnanschluss <1.475m
Flughafen <3.775m

Angaben Entfernung Luftlinie / Quelle: OpenStreetMap

Eckdaten Objektnr. 1937/7645906

Art: Büro / Praxis - Bürofläche
Land: Österreich
Kaltmiete (netto): 1.725,00 €
Kaltmiete: 2.359,80 €
Betriebskosten: 289,80 €
Heizkosten: 82,78 €
MwSt Gesamt: 419,52 €
Nutzfläche: 115,00 m²
Gesamtfläche: 115,00 m²
Bürofläche: 115,00 m²
WC: 2
Heizwärmebedarf: 154,13 kWh/m²a
Immobilie merken Exposé

Immobilie anfragen


Ihre persönliche Beratung

Christa Sinzinger

AREV Immobilien GmbH

T T: +43 732 605533 361

H M:+43 664 81 85 361