Charmante Altbauwohnung am Franziskanerplatz!

Wohnung - Etage, 1010 Wien


Das öffentliche Verkehrsmittel ist durch Straßenbahn Linie 2 (Weihburggasse), U-Bahn Linien U1 & U3 (Stephansplatz), U-Bahn Linie U4 (Stadtpark) und Bus Linien 2A & 3A (Plankengasse / Riemergasse) gewährgeleistet. Parkgaragen: Garage Weihburggasse (ca. 180m entfernt) & Seilerstätten Garage (ca. 160m entfernt). Durch die zentrale Lage in der Wiener Innenstadt und die öffentlichen Verkehrsanbindungen kann man innerhalb von 13 Minuten am Hauptbahnhof sein, oder mit dem City Airport Train via Wien Mitte und in einer guten halben Stunde am Flughafen. Auch mit dem Auto / Taxi ist man in ungefähr 25 Minuten am Flughafen. Der Stephansplatz ist ca. 280 m oder 3 Minuten zu Fuß entfernt, die Kärntnerstraße oder der Stadtpark jeweils ca. 300 m und das Wiener Franziskanerviertel gehört zu den ältesten Stadtteilen Wien.

Beschreibung der Immobilie

Charmante Altbauwohnung am Franziskanerplatz!

Die Weihburggasse leitet ihren Namen von der Weihenburg ab und besteht überwiegend aus Häusern, die aus dem 18. und 19. Jahrhundert stammen. Das ursprüngliche, historische Gebäude wurde vor 1369 erstmals errichtet und urkundlich erwähnt. Das Haus wurde um 1820 von Baumeister Adelpodinger, der mit Architekt Kornhäusel arbeitete, umgebaut. Das ehemals 2-stöckige Haus aus der Renaissancezeit wurde um einen Stock aufgebaut, mit einer klassizistischen Fassade versehen und im Innenhof wurden Pawlatschen (Kommunikationsgänge) errichtet. 



Um 1900 zog dann die Handelsschule Allina in das Haus ein, die Pawlatschengänge und die Wendeltreppe im 2. Trakt wurden eliminiert und ein großes, zweiläufiges Stiegenhaus, das bis in die Mitte des Hofes reichte, wurde errichtet. Der heutige Besitzer führte das Haus von 1978 bis1985 wieder in den Zustand aus der Biedermeierzeit zurück, rekonstruierte die Pawlatschen und errichtete ein neues, kleineres Stiegenhaus mit Lift, begrünte den Innenhof und baute 1995 den Dachboden vorbildlich aus.



Highlights:



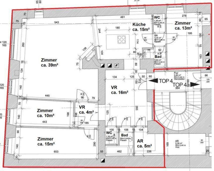
  • Wohn-Essbereich
  • Einbauküche
  • Drei getrennt begehbare Schlafzimmer
  • Gegensprechanlage, Alarmanlage, Wirtschaftsraum, Tresor
  • Fischgrät Parkettböden
  • Offener Kamin
  • Einbaukästen
  • Anschlüsse: UPS, Internet, Telefon
  • Deckenhöhe ca. 3,50 m


Mietpreisberechnung:



  • Nettomiete: EUR 2.089,84 zzgl. USt.
  • Betriebskosten: EUR 182,88 zzgl. USt.
  • Bruttomonatsmiete: EUR 2.499,99inkl. Betriebskosten und USt.
  • Kaution: EUR 7.500,00
  • Mietdauer: 5 Jahre


Wir würden uns über ein persönliches Gespräch mit Ihnen sehr freuen!



Weitere verfügbare Wohneinheiten mit zahlreichen aktuellen TOP Projekten!Mehr Details findet Sie auf unsere Homepage!



www.vigoimmobilien.at


Wir weisen darauf hin, dass zwischen dem Vermittler und dem zu vermittelnden Dritten ein familiäres oder wirtschaftliches Naheverhältnis besteht.


Der Immobilienmakler erklärt, dass er – entgegen dem in der Immobilienwirtschaft üblichen Geschäftsgebrauch des Doppelmaklers – einseitig nur für den Vermieter tätig ist.

Infrastruktur / Entfernungen

Gesundheit
Arzt <500m
Apotheke <500m
Klinik <1.000m
Krankenhaus <1.000m

Kinder & Schulen
Schule <500m
Kindergarten <1.000m
Universität <500m
Höhere Schule <500m

Nahversorgung
Supermarkt <500m
Bäckerei <500m
Einkaufszentrum <500m

Sonstige
Geldautomat <500m
Bank <500m
Post <500m
Polizei <500m

Verkehr
Bus <500m
U-Bahn <500m
Straßenbahn <500m
Bahnhof <500m
Autobahnanschluss <3.500m

Angaben Entfernung Luftlinie / Quelle: OpenStreetMap

Eckdaten Objektnr. 7618/834

Art: Wohnung - Etage
Land: Österreich
Baujahr: 1369
Zustand: Gepflegt
Alter: Altbau
Gesamtmiete: 2.499,99
Kaltmiete (netto): 2.089,84 €
Kaltmiete: 2.272,72 €
Provision: Gemäß Erstauftraggeberprinzip bezahlt der Abgeber die Provision.
Betriebskosten: 182,88 €
MwSt Gesamt: 227,27 €
Wohnfläche: 121,79 m²
Zimmer: 4
Bäder: 2
WC: 2
Heizwärmebedarf:  D  109,62 kWh/m²a
fGEE:  D  2,31
Immobilie merken Exposé

Ausstattung

Parkett, Fliesen, Gas, Etagenheizung, Wohnküche / offene Küche, Badewanne, Dusche, Wasch/Trockenraum


Immobilie anfragen


Ihre persönliche Beratung

VigoImmobilien GmbH

Anastasiia Tomilovych

Vigo Immobilien GmbH

T +43 664 220 41 85