AM SCHULGARTEN - Wohnungen für´s Leben | Top 17 | PROVISIONSFRE I Loggia ostseitig

Wohnung , 2700 Wiener Neustadt , Schulgartengasse 20


Beschreibung der Immobilie

AM SCHULGARTEN - Wohnungen für´s Leben | Top 17 | PROVISIONSFRE I Loggia ostseitig

AM SCHULGARTEN – WOHNUNGEN FÜR´S LEBEN


Hier geht es zu allen verfügbaren Tops im Überblick: www.ribarskireal.estate


„Nicht für die Schule, sondern für das Leben lernen wir.“ – oder doch umgekehrt?



Über unser Schulsystem kann man diskutieren, über die hervorragende Lage dieses Bauprojekts nicht.



Herzlich willkommen in der Schulgartengasse!



28 Wohneinheiten, von Profis geplant, begleitet, umgesetzt und vollendet.



Die namhaften und in Wiener Neustadt gut bekannten Bauherren des Projekts haben beide den Bildungsweg bis zum Architekten vollendet und offensichtlich nicht nur für die Schule gelernt. Das Ergebnis: perfekt geschnittene Wohnungen in optimaler Ausrichtung. Auf professionelle Abwicklung, qualitativ hochwertige Bauweise und über 15 Jahre Erfahrung, können Sie sich verlassen.



Was erwartet Sie am Schulgarten?



Jede Wohnung verfügt über eine private Außenfläche: Großzügige Eigengärten im Erdgeschoß, Balkon/Loggia im Mittelgeschoß, Galerie mit Dachterrasse in der obersten Etage. Für jeden Geschmack ist etwas dabei. Haben Sie Gäste, Kinder oder möchten Sie einfach entspannen, eignet sich dazu der geschmackvoll angelegte Gemeinschaftsgarten, in welchem Sie aufgrund der westseitigen Lage die Abendsonne voll auskosten können.



Der aktuelle Stand:



Die Wohneinheiten sind schon gut begehbar. Gerne führen wir Sie durch die Baustelle.



Der Zeithorizont:



Die Fertigstellung ist mit Ende 2025 zu erwarten.



Die Ausstattung:



Echtholz-Eiche-Parkett geklebt in den Wohnräumen, Feinsteinzeug am Boden, keramische Platten an den Wänden in den Nassräumen, Fenster mit Mehrfach-Isolier-Verglasung, Sanitärausstattung von Laufen/Geberit, Armaturen und Zubehör von Grohe, Außenrollos elektr. zur Beschattung der Schlafräume inkludiert. Für nähere Details sende ich sehr gerne die Bau- und Ausstattungsbeschreibung zu.



Die Fakten:



Die Wohnhausanlage wird mit einer eigenen und unabhängigen Pelletsheizung ausgestattet, was heutzutage ein großer Benefit ist, die Wohnräume werden mittels Fußbodenheizung beheizt, das Warmwasser wird über Übergabestation/Fernwärme erhitzt, die Wohnungen werden SCHLÜSSELFERTIG übergeben, der Kauf erfolgt PROVISIONSFREI FÜR DEN KÄUFER.



Das Projekt liegt perfekt:



Das Zehnerviertel zählt zu den beliebtesten Wohngegenden in Wiener Neustadt. Die Fußgängerzone durch die historische Altstadt liegt nur ca. 15 Minuten zu Fuß entfernt. Es erwarten Sie zahlreiche Geschäfte und ausgezeichnete Kulinarik. Der Wiener Neustadter Hauptbahnhof ist in 9 Minuten zu Fuß erreichbar, die Autobahn A2 Richtung Wien, sowie die S4 Richtung Eisenstadt erreichen Sie in jeweils unter 5 Minuten mit dem Auto. 



Das Bildungsangebot und die ärztliche Versorgung in Wiener Neustadt sind vorbildlich: In Gehdistanz zu der Liegenschaft befinden sich Kindergärten, Volksschulen und das Bundesgymnasium Zehnergasse. Neben der bekannten Fachhochschule Wiener Neustadt, einer HTL, einer Schule für Mode und Bekleidungstechnik und einer Militärakademie finden Sie am Rande der Innenstadt auch Niederösterreichs zweitgrößtes Einkaufzentrum, ein Landesklinikum und ein modernes Krebsforschungszentrum.



Die Freizeitmöglichkeiten für jede Altersgruppe sind vielseitig: Kinowelt, Hallenbad, Boulderhalle, Fitnesscenter, Eislaufplatz, Fußballverein, Baseballverein, Handballverein und vieles mehr. Die naheliegende Schmuckerau bietet Sportlern, Naturliebhabern und Hundebesitzern (Hundezone) Raum für Ausgleich und Erholung.




Alle noch verfügbaren Einheiten im Überblick:
--> direkt einsehen auf: www.ribarskireal.estate



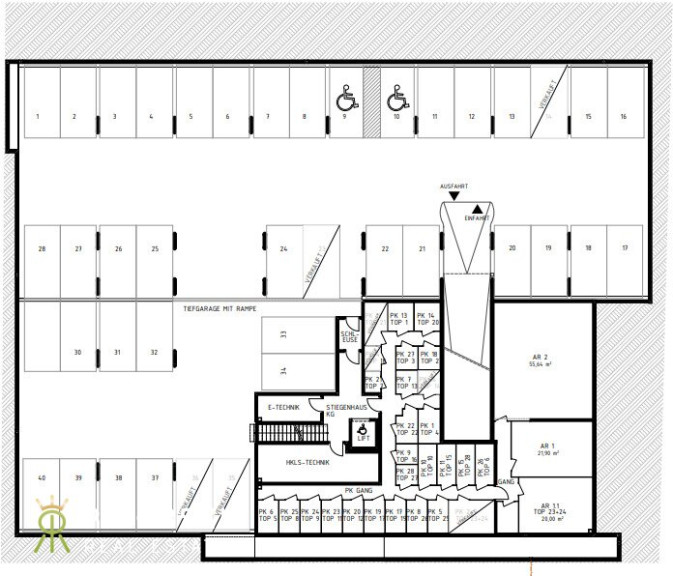
Die Tops sind teilweise noch flexibel gestaltbar. Manche kleinere Tops können zu einer großen Einheit verbunden werden. Außerdem gibt es separate Abstellräume zu erwerben. Ein Tiefgaragenplatz kann für € 21.000,- erworben werden. Kontaktieren Sie uns für individuelle Lösungen!



Hier nicht mehr angeführte Tops wurden bereits verkauft und sind nicht mehr verfügbar. 


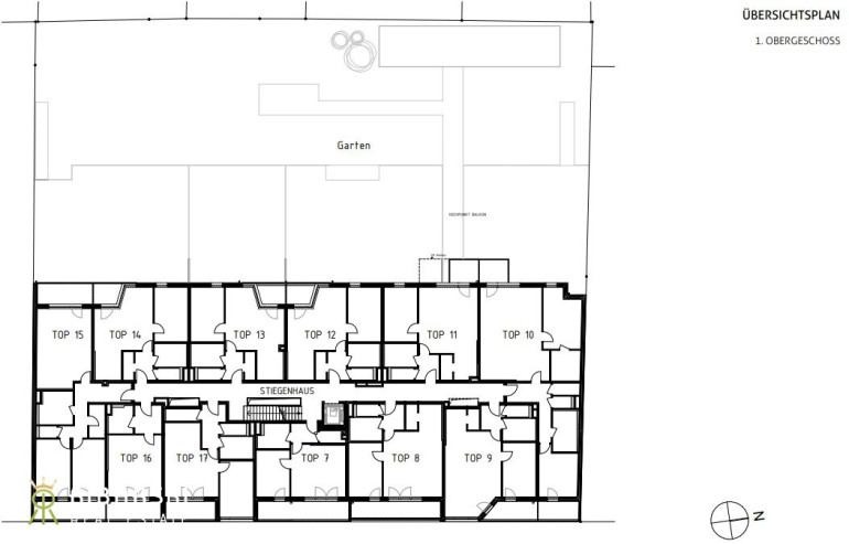
1.OG | Top 7 | 54,04m² | 2 Zimmer
1.OG | Top 8 | 68,46m² | 2 Zimmer
1.OG | Top 9 | 66,92m² | 2 Zimmer
1.OG | Top 15 | 100,23m² | 3 Zimmer
1.OG | Top 16 | 40,76m² | 1 Zimmer
1.OG | Top 17 | 61,10m² | 2 Zimmer
2.OG | Top 19 | 68,46m² | 2 Zimmer
2.OG | Top 20 | 66,84m² | 2 Zimmer
2.OG | Top 22 | 57,62m² | 2 Zimmer
2.OG | Top 27 | 40,88m² | 1 Zimmer
2.OG | Top 28 | 61,64m² | 2 Zimmer




110% KUNDENSERVICE - 0% PROVISION - Ich freue mich auf Ihre Anfrage und auf ein erstes, unverbindliches Gespräch. 



Sehr gerne unterstützen wir Sie auch bei der Wahl der bestmöglichen Finanzierungslösung mit langjährigen und kompetenten Partnern an der Seite.

 



Angebote immer schon vor Vermarktungsbeginn sehen? --> Folgen Sie mir auf Facebook oder Linkedin.



Die angebotene Wohnung bietet Ihnen zwei Zimmer und einen praktikablen Grundriss. Moderner Wohnkomfort auf sparsamer Fläche, die großen Glasflächen und die ostseitige Loggia werden Ihnen ein Gefühl von Geborgenheit und Freiheit vermitteln.

Infrastruktur / Entfernungen

Gesundheit
Arzt <700m
Apotheke <575m
Klinik <1.075m
Krankenhaus <1.775m

Kinder & Schulen
Schule <275m
Kindergarten <1.300m
Höhere Schule <1.400m
Universität <3.600m

Nahversorgung
Supermarkt <575m
Bäckerei <350m
Einkaufszentrum <1.325m

Sonstige
Bank <625m
Geldautomat <625m
Polizei <975m
Post <675m

Verkehr
Bus <275m
Autobahnanschluss <2.125m
Bahnhof <575m
Flughafen <2.725m

Angaben Entfernung Luftlinie / Quelle: OpenStreetMap

Eckdaten Objektnr. 348

Art: Wohnung
Land: Österreich
Baujahr: 2024
Zustand: Erstbezug
Alter: Neubau
Kaufpreis: 277.700,00
Provision: Provision bezahlt der Abgeber.
Wohnfläche: 54,38 m²
Nutzfläche: 64,96 m²
Zimmer: 2
Bäder: 1
WC: 1
Keller: 3,86 m²
Heizwärmebedarf:  B  30,90 kWh/m²a
fGEE:  A+  0,73
Immobilie merken Exposé

Ausstattung

Fliesen, Parkett, Fußbodenheizung, Personenaufzug, Tiefgarage


Immobilie anfragen


Ihre persönliche Beratung

Ribarski Real Estate GmbH

Mag. (FH) Monika Ribarski

Ribarski Real Estate GmbH

H +43 676 686 4444