Grundstück in beliebter Hanglage in Klaus mit Altbestand

Grundstück - Baugrund Eigenheim, 6833 Klaus , Bruderhof 12


In Klaus, am begehrten Bruderhof 12, erwartet Sie ein Grundstück, das Ruhe, Privatsphäre und Weitblick vereint. Die sonnige Hanglage bietet eine unvergleichliche Aussicht über das Rheintal – ein Ort, an dem man die Seele baumeln lassen kann. Trotz der idyllischen Ruhe genießen Sie hier eine hervorragende Infrastruktur: Einkaufsmöglichkeiten, Schulen, Kindergarten und Apotheke sind nur wenige Minuten entfernt. Freizeitmöglichkeiten wie Wander- und Radwege, nahegelegene Berg- und Skigebiete, sowie gemütliche Gastronomiebetriebe laden zum Genießen ein. Eine gute Anbindung an den öffentlichen Verkehr und die Autobahn garantiert Mobilität und kurze Wege – ideal für Familien und Berufstätige mit gehobenem Anspruch. Hier verbinden sich Natur und Komfort zu einer einmaligen Wohnlage in einer der begehrtesten Regionen Vorarlbergs.

Beschreibung der Immobilie

Grundstück in beliebter Hanglage in Klaus mit Altbestand

Ihr Platz für Visionen & Wohnträume



Willkommen auf ca. 910 m² Lebensqualität. Ein Grundstück, das Raum für Ideen schafft.



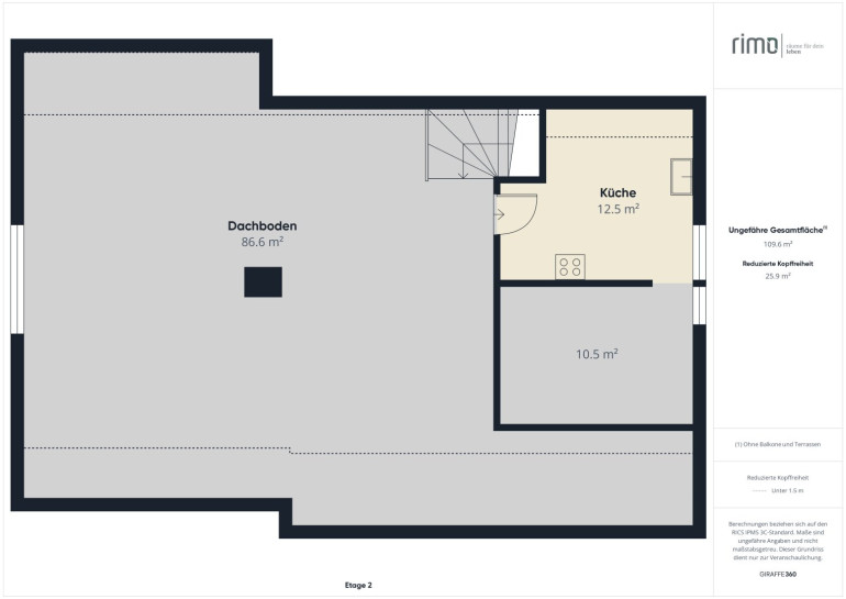
Das Anwesen ist mit einem Altbestand aus dem Jahr 1966 bebaut. Dieser befindet sich in einem renovierungsbedürftigen Zustand, überzeugt jedoch mit einem durchdachten Grundriss und großzügigem Platzangebot für individuelle Gestaltungsmöglichkeiten. 



Details & Highlights:



  • Gesamtgröße: ca. 910 m²
  • Unter- & Obergeschoss: je ca. 106 m²
  • Dachgeschoss: ca. 106 m², perfekt für eine Wohnflächenerweiterung
  • Kellergeschoss (UG): ca. 106 m², mit direktem Zugang zum großen Garten (ca. 686 m²)
  • Dienstbarkeitsrecht am Rand des Grundstücks – keine relevante Beeinträchtigung der Nutzung
  • PV-Anlage vorhanden 


(Dokumente zur DBK liegen vor)



Hier trifft Panoramalage auf Gestaltungsfreiheit. Ob, modernes Familienhaus oder stilvoller Rückzugsort: Dieses Grundstück bietet die Basis für Ihr persönliches Traumdomizil.



Das Wichtigste auf einen Blick



  • Toplage in Klaus – Bruderhof mit einzigartiger Aussicht
  • Altbestand mit Ausbaupotenzial
  • Grundstücksgröße: ca. 910 m²
  • UG + OG je ca. 106 m²
  • DG ca. 106 m² – ideal für Ausbau
  • Großer Garten mit Südwest-Ausrichtung
  • Dienstbarkeitsrecht vorhanden, ohne Einschränkung der Nutzung
  • PV-Anlage vorhanden 


Ihr Ort zum Ankommen, Wohlfühlen und Träumen – gestalten Sie Ihr exklusives Zuhause in einer der besten Lagen von Klaus!



Unsere Angaben beziehen sich auf die Auskünfte des Eigentümers. Irrtum und Änderungen vorbehalten.



Die Maße und Angaben der Grundrisse sind ungefähre Angaben. Sie dienen nur zur Veranschaulichung.



Ein Energieausweis wurde beauftragt.

Noch nichts gefunden? Wir informieren Sie über geeignete Immobilienangebote noch vor allen anderen.
Legen Sie jetzt kostenlos Ihren individuellen Suchagenten unter folgendem Link an. Wir schicken Ihnen passende Immobilien exklusiv vorab zu.

Suchagent anlegen


Hinweis gemäß Energieausweisvorlagegesetz: Ein Energieausweis wurde vom Eigentümer bzw. Verkäufer, nach unserer Aufklärung über die generell geltende Vorlagepflicht, sowie Aufforderung zu seiner Erstellung noch nicht vorgelegt. Daher gilt zumindest eine dem Alter und der Art des Gebäudes entsprechende Gesamtenergieeffizienz als vereinbart. Wir übernehmen keinerlei Gewähr oder Haftung für die tatsächliche Energieeffizienz der angebotenen Immobilie.


Der Vermittler ist als Doppelmakler tätig.

Infrastruktur / Entfernungen

Gesundheit
Arzt <950m
Apotheke <1.475m
Krankenhaus <5.825m

Kinder & Schulen
Schule <500m
Kindergarten <550m
Höhere Schule <2.675m
Universität <9.600m

Nahversorgung
Supermarkt <950m
Bäckerei <450m
Einkaufszentrum <4.725m

Sonstige
Bank <425m
Geldautomat <425m
Post <850m
Polizei <2.675m

Verkehr
Bus <275m
Bahnhof <2.050m
Autobahnanschluss <2.225m
Flughafen <8.825m

Angaben Entfernung Luftlinie / Quelle: OpenStreetMap

Eckdaten Objektnr. 5681/584

Art: Grundstück - Baugrund Eigenheim
Land: Österreich
Baujahr: 1966
Zustand: Sanierungsbeduerftig
Alter: Altbau
Kaufpreis: 799.000,00
Provision: 3% des Kaufpreises zzgl. 20% USt.
Grundstücksfl.: 910,00 m²
Bäder: 1
WC: 1
Stellplätze: 2
Garten: 686,00 m²
Immobilie merken Exposé

Ausstattung

Parkett, Fliesen, Öl, Einbauküche, Bad mit Fenster, Badewanne, Garage, Parkplatz


Immobilie anfragen


Ihre persönliche Beratung

Rimo Immobilien GmbH

Daniel Marte

Rimo Immobilien GmbH

T +43 5522 39303 28