Erstbezug 2-Zimmer, Nähe Meiselmarkt

Wohnung , 1150 Wien,Rudolfsheim-Fünfhaus


Beschreibung der Immobilie

Erstbezug 2-Zimmer, Nähe Meiselmarkt

Im Falle der Notwendigkeit einer Fremdfinanzierung Ihrer Wunschimmobilie ermittelt unser Wohnbau-Finanzierungsexperte gerne die optimale Finanzierungslösung und findet das passende Zins- und Konditionsangebot für Sie. Er vergleicht die aktuellen Angebote aller relevanten Banken und Bausparkassen. Der Angebotsvergleich kann aus einem Portfolio von über 120 Banken erfolgen. Das Erstgespräch ist für Sie kostenfrei und unverbindlich, gerne auch bei Ihnen vor Ort. So sparen Sie Ihre wertvolle Zeit und erhalten eine professionelle und unabhängige Finanzierungslösung vom Spezialisten. Sprechen Sie uns wegen eines Termins gerne an!





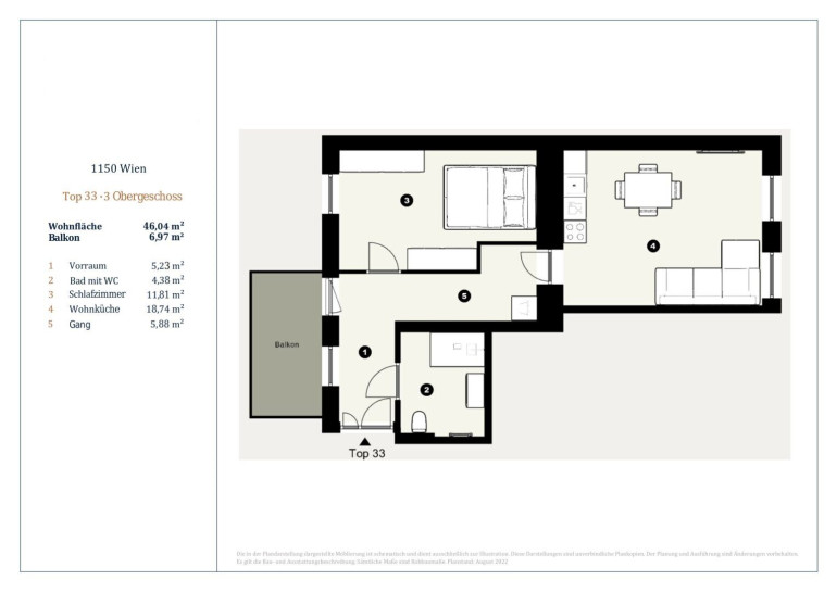
Zum Verkauf gelangt eine schöne 2-Zimmer Wohnung im 15. Wiener Gemeindebezirk.



Sie ist ein Erstbezug, verfügt über ca. 46 m² und befindet sich im 3. Stock eines im Jahr 1900 erbauten Altbaus. Die Wohnung gliedert sich in einen Vorraum, eine Wohnküche, ein Schlafzimmer und ein Bad mit WC. Es kann ein Balkon angebracht werden.



Die Wohnung wurde vor kurzem saniert und verfügt über einen Fischgrät-Eichenparkett und ist mit stilvollen Kassettentüren ausgestattet. Eleganter Deckenstuck und feine Vertäfelungen unterstreichen den einzigartigen Alt-Wien-Charakter. Das Bad und das WC bestechen durch hochwertige Marken-Armaturen & Keramiken.



Der um die Jahrhundertwende errichtete Stilaltbau befindet sich in einer gefragten Wohngegend des 15. Wiener Gemeindebezirks. Nach Renovierung der eleganten Gründerzeitfassade wurden auch sämtliche Allgemeinflächen des Hauses mit viel Liebe zum Detail saniert. Das Zinshaus verfügt über 3 Regelgeschoße.



Neben der sehr guten Verkehrsmittelanbindung bietet die Lage auch eine ausgezeichnete Nahversorgung. Zahlreiche Einkaufsmöglichkeiten, öffentliche Einrichtungen, Parkanlagen und Geschäfte für den täglichen Bedarf befinden sich in unmittelbarer Nähe.



Die Infrastruktur ist optimal, da fußläufig alle Bedürfnisse des täglichen Alltags gedeckt werden. Nur ein paar Minuten entfernt liegt auch der Meiselmarkt, welcher mit lukullischen Köstlichkeiten aus aller Welt an die Marktstände lockt. Die U-Bahn-Station U3 "Johnstraße" ist in nur wenigen Gehminuten erreichbar und bietet somit einen perfekten Anschluss in die Innenstadt.



Die Vertragserrichtung und Treuhandabwicklung ist gebunden an die Kanzlei Mag. Schreiber A-1010 Wien, Schottenring 16. Die Kosten betragen 1,5 % des Kaufpreises zzgl. 20 % USt. sowie Barauslagen und Beglaubigung. Bei Fremdfinanzierung erhöht sich das Honorar auf 1,8 % vom Kaufpreis zzgl. 20 % USt., Barauslagen und Beglaubigung.



Überzeugen Sie sich selbst von dieser Immobilie.



Für Besichtigungen und nähere Informationen stehen wir Ihnen gerne zur Verfügung!



Frau Marie-Louise Eisenburger

national - Tel: 0676 605 9800
international - Tel.: +43 676 605 9800
e-mail: eisenburger@lifestyle-properties.at




Wir weisen darauf hin, dass zwischen dem Vermittler und dem zu vermittelnden Dritten ein familiäres oder wirtschaftliches Naheverhältnis besteht.


Der Vermittler ist als Doppelmakler tätig.

Infrastruktur / Entfernungen

Gesundheit
Arzt <500m
Apotheke <500m
Klinik <1.000m
Krankenhaus <2.000m

Kinder & Schulen
Schule <500m
Kindergarten <500m
Universität <1.000m
Höhere Schule <1.500m

Nahversorgung
Supermarkt <500m
Bäckerei <500m
Einkaufszentrum <500m

Sonstige
Geldautomat <500m
Bank <500m
Post <500m
Polizei <500m

Verkehr
Bus <500m
U-Bahn <500m
Straßenbahn <500m
Bahnhof <500m
Autobahnanschluss <5.000m

Angaben Entfernung Luftlinie / Quelle: OpenStreetMap

Eckdaten Objektnr. 5088

Art: Wohnung
Land: Österreich
Baujahr: 1909
Zustand: Erstbezug
Alter: Altbau
Kaufpreis: 309.000,00
Provision: 3% des Kaufpreises zzgl. 20% USt.
Wohnfläche: 46,04 m²
Zimmer: 2
Bäder: 1
WC: 1
Balkone: 1
Heizwärmebedarf:  E  185,40 kWh/m²a
fGEE:  E  2,91
Immobilie merken Exposé

Ausstattung

Fliesen, Parkett, Gas, Fußbodenheizung, Wohnküche / offene Küche, Dusche


Immobilie anfragen


Ihre persönliche Beratung

IM Lifestyle Properties GmbH

Marie-Louise Eisenburger

Lifestyle Properties

T +43 1 512 14 84

H +43 676 6059800