++NEU++3 Zimmer Altbauwohnung (sanierungsbedürftig) - Umbau-Potenzial

Wohnung , 1100 Wien , Favoritenstraße


Beschreibung der Immobilie

++NEU++3 Zimmer Altbauwohnung (sanierungsbedürftig) - Umbau-Potenzial

Sanierungsbedürftige 3-Zimmer-Altbauwohnung in zentraler Lage des 10. Bezirks



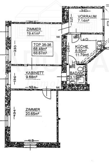
Zum Verkauf steht eine ca. 67 m² große Altbauwohnung mit 3 Zimmern, gelegen im 3. Stock eines charmanten Gebäudes in der Favoritenstraße.




Besichtigung



Zur Vereinbarung eines Besichtigungstermins bitten wir Sie, uns unbedingt eine schriftliche Anfrage zukommen zu lassen. Wir antworten verlässlich am selben Tag!




Wohnungsdetails



  • Lage: 3. Stock (ohne Lift; Lifteinbau geplant im Rahmen eines Dachgeschossausbaus)
  • Räumlichkeiten:
    • Vorraum
    • Badezimmer
    • Kabinett
    • 2 Zimmer



(Siehe Fotodokumentation und Grundriss.)



  • Zustand:
    Das Objekt ist sanierungsbedürftig und wird im aktuellen Zustand verkauft. (Details siehe Fotos)



Das Gebäude



Das Objekt befindet sich in einem klassischen Altbau. Ein geplanter Dachgeschossausbau, inklusive Lifteinbau, wird das Haus modernisieren und den Wohnkomfort erhöhen.




Lage



Die Wohnung liegt in einer ruhigen Wohngegend an der Favoritenstraße und zeichnet sich durch ihre zentrale Lage aus.




  • Infrastruktur:



    • Geschäfte des täglichen Bedarfs in unmittelbarer Gehdistanz
    • Allgemein- und Fachmediziner sowie Apotheken fußläufig erreichbar


  • Verkehrsanbindung:



    • U-Bahnlinie U1 (Station Troststraße): nur 2 Minuten zu Fuß entfernt
    • Schnelle Verbindung ins Stadtzentrum und weitere Bezirke




Preis



Preis: 209.000 €



monatliche Kosten:



Reparaturrücklage:       1,06 €/m²

Betriebskosten:              2,33 €/m²

Wasser:                          0,55 €/m²





Sollten Sie Fragen haben oder einen Besichtigungstermin wünschen, zögern Sie bitte nicht mich zu kontaktieren. (am besten via E-Mail Anfrage)



Zur Vereinbarung eines Besichtigungstermins lassen Sie uns bitte jedenfalls eine E-Mailanfrage zukommen!



Der IMMY ist die renommierteste Auszeichnung für Wiener Makler- und Verwalterbetriebe im Bereich Wohnimmobilien. Wir sind stolz den goldenen IMMY für das Jahr 2019 gewonnen zu haben!



Vielen Dank vor allem an unsere Kunden! Unser Unternehmen wurde auch zum Besten Start Up und in den Jahren 2015, 2018, 2019 und 2020 als Qualitätsmakler ausgezeichnet!



Bitte achten Sie darauf, dass Sie diese Immobilie, nach Ihrer Anfrage bei Adonia Immobilien, nicht auch bei einem anderen Immobilienmaklerbüro anfragen! Vielen Dank!



Nicht alle unsere Immobilien finden Sie auf den gängigen Plattformen. Wir freuen uns auf Ihren Besuch auf unserer Homepage unter adonia.at 



Wir weisen ausdrücklich auf unser wirtschaftliches Naheverhältnis mit dem Abgeber/ der Abgeberin hin!  Unsere gesetzlichen Pflichten als Doppelmakler werden dadurch jedoch nicht beeinträchtigt. Irrtum und Änderungen vorbehalten. 



Alle hier veröffentlichen Informationen basieren auf den uns von dem Abgeber/ der Abgeberin zur Verfügung gestellten Informationen und wurden nicht selbst erhoben.



Unsere Allgemeinen Geschäftsbedingungen können Sie sowohl in dem Ihnen zugesandten Expose einsehen als auch auf unserer Homepage. Wir weisen ausdrücklich darauf hin, dass diese AGBs Vertragsinhalt werden.



Der Schutz von personenbezogenen Daten ist uns wichtig und auch gesetzlich gefordert. Die Verarbeitung Ihrer personenbezogenen Daten erfolgt nach den datenschutzrechtlichen Bestimmungen. Auf unserer Homepage (unter Datenschutzinformation) finden Sie eine Übersicht die Sie über die wichtigsten Aspekte der Verarbeitung personenbezogener Daten informieren soll.


Wir weisen darauf hin, dass zwischen dem Vermittler und dem zu vermittelnden Dritten ein familiäres oder wirtschaftliches Naheverhältnis besteht.


Der Vermittler ist als Doppelmakler tätig.

Infrastruktur / Entfernungen

Gesundheit
Arzt <250m
Apotheke <250m
Klinik <1.250m
Krankenhaus <2.500m

Kinder & Schulen
Schule <250m
Kindergarten <250m
Universität <500m
Höhere Schule <3.000m

Nahversorgung
Supermarkt <250m
Bäckerei <500m
Einkaufszentrum <1.750m

Sonstige
Geldautomat <250m
Bank <250m
Post <250m
Polizei <500m

Verkehr
Bus <250m
U-Bahn <250m
Straßenbahn <1.000m
Bahnhof <250m
Autobahnanschluss <750m

Angaben Entfernung Luftlinie / Quelle: OpenStreetMap

Eckdaten Objektnr. 62429

Art: Wohnung
Land: Österreich
Zustand: Sanierungsbeduerftig
Alter: Altbau
Kaufpreis: 208.900,00
Provision: 3% des Kaufpreises zzgl. 20% USt.
Wohnfläche: 67,51 m²
Zimmer: 3
Heizwärmebedarf: 136,50 kWh/m²a
fGEE: 3,29
Immobilie merken Exposé

Ausstattung

Fliesen, Parkett, Dusche


Immobilie anfragen


Ihre persönliche Beratung

Adonia Realitätenvermittlung GmbH

Benjamin Marinkovic

Adonia Immobilien GmbH

T 06765446834