SENSATION! GEWERBE-JUWEL! Ihr Erfolgsstandort mit Strahlkraft – Ein vielseitiges Geschäftsobjekt in Gleisdorf mit genügend PKW-Abstellplätze PLUS Lagerhalle!!! 3D-RUNDGANG LINK!

Halle / Lager / Produktion , 8200 Gleisdorf , Josefa-Posch-Straße


Die Liegenschaft an der Josefa-Posch-Straße 1 überzeugt durch eine hervorragend frequentierte und bestens erreichbare Lage mitten im dynamischen Wirtschaftszentrum Gleisdorf. Perfekte Infrastruktur – Alles vor der Haustür: In unmittelbarer Nähe befinden sich zahlreiche namhafte Handels- und Gewerbebetriebe, wodurch sich ein attraktives Geschäftsumfeld und starke Synergieeffekte ergeben. Durch die Nähe zur Autobahnauffahrt A2 (Südautobahn) erreichen Sie Graz, Wien oder Ungarn schnell und unkompliziert. Öffentliche Verkehrsanbindung durch Bus und Bahn sorgt für beste Erreichbarkeit auch ohne PKW. Vielseitige Nutzungsmöglichkeiten auf einem Areal: Das Objekt vereint repräsentative Geschäftsflächen, flexible Büroeinheiten, großzügige Lagerhalle sowie PKW-Abstellflächen direkt vor dem Gebäude – alles an einem Standort, der keine Wünsche offenlässt. Highlights der Lage auf einen Blick: ✅ Zentrale Verkehrslage mit optimaler Anbindung an die A2, S35 und B54 ✅ Hohe Kundenfrequenz durch gewachsenes Handels- und Gewerbeumfeld ✅ Ausgezeichnete Sichtbarkeit dank Ecklage und Zufahrtsmöglichkeiten ✅ Kurze Wege zu Nahversorgern, Gastronomie und Banken ✅ Großzügige Freiflächen für Kunden- und Mitarbeiterparkplätze ✅ Logistisch ideal für Anlieferung und Warenverteilung Fazit: Diese Adresse ist der ideale Ausgangspunkt für Unternehmen, die auf eine erstklassige Standortqualität, maximale Flexibilität und hohe Wirtschaftlichkeit setzen. Nutzen Sie diese Gelegenheit, Ihre Geschäftsidee an einem Top-Standort in Gleisdorf zu realisieren!

Beschreibung der Immobilie

SENSATION! GEWERBE-JUWEL! Ihr Erfolgsstandort mit Strahlkraft – Ein vielseitiges Geschäftsobjekt in Gleisdorf mit genügend PKW-Abstellplätze PLUS Lagerhalle!!! 3D-RUNDGANG LINK!

SENSATION! GEWERBE-JUWEL! Ihr Erfolgsstandort mit Strahlkraft – Ein vielseitiges Geschäftsobjekt in Gleisdorf mit genügend PKW-Abstellplätze PLUS Lagerhalle!!! 3D-RUNDGANG LINK!



Willkommen an einer Adresse mit Seltenheitswert: Dieses herausragende Gewerbeobjekt vereint moderne Verkaufsflächen, hochwertige Büros, großzügige Lagerkapazitäten und beeindruckende Außenflächen – ideal für Unternehmen, die sich professionell präsentieren und zukunftsorientiert wirtschaften wollen.



HIGHLIGHTS:



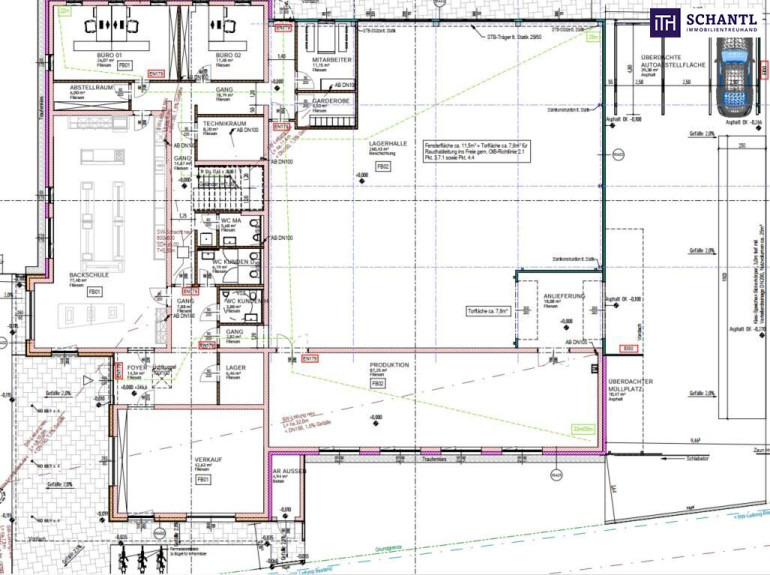
  • 🎯 Gesamtnutzfläche ca. 680 m²:Ein außergewöhnlich großzügiges Flächenangebot – perfekt für Produktion, Handel, Lager und Büro unter einem Dach.
  • 🌞 Moderne Photovoltaikanlage am Dach: Senken Sie langfristig Ihre Energiekosten und positionieren Sie Ihr Unternehmen nachhaltig.
  • 🚗 25 PKW-Stellplätze direkt am Objekt: Maximaler Komfort für Mitarbeiter, Kunden und Geschäftspartner – drei Stellplätze sind sogar überdacht.
  • 🛒 Repräsentative Verkaufsfläche ca. 42 m²: Ideal als Showroom, Kundencenter oder Empfangsbereich – mit viel Tageslicht und bester Sichtbarkeit.
  • 💼 Hochwertige Büroeinheit ca. 69 m²: Lichtdurchflutete, moderne Büros für effizientes Arbeiten in angenehmer Atmosphäre.
  • 🏢 Großzügige Lagerhalle ca. 260 m²: Viel Platz für Logistik, Lager oder Werkstatt – ebenerdig befahrbar und flexibel nutzbar.
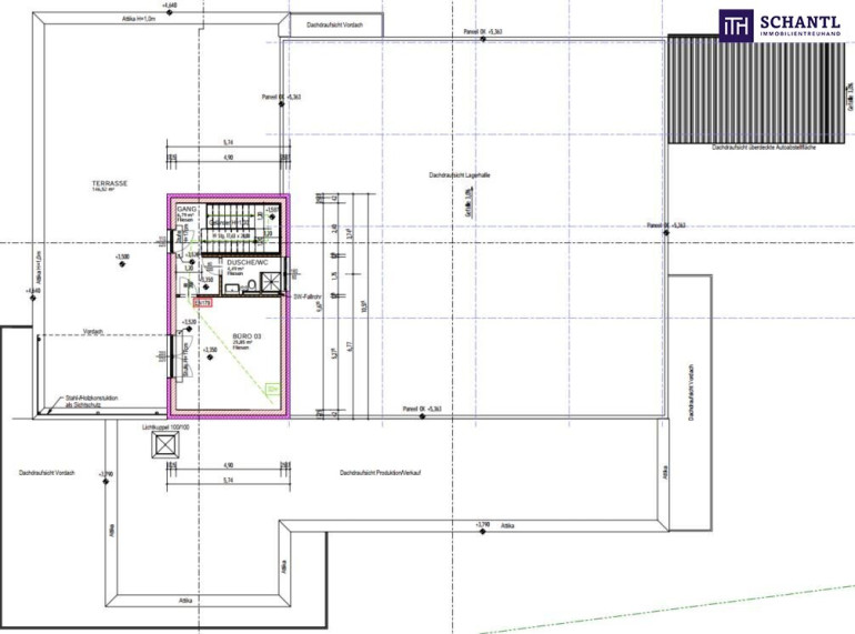
  • 🌿 Riesige Terrasse ca. 146 m²: Ein besonderes Extra – ideal als Pausenbereich, Eventfläche oder Aufenthaltszone im Freien.
  • 🛠 Zusätzliche vielseitig nutzbare Räume: Ob Sozialräume, Archiv, Werkstatt oder zusätzliche Lagerflächen – hier ist alles möglich.
  • 📍 Spitzenlage in Gleisdorf: Hervorragende Verkehrsanbindung an die A2 und das Stadtzentrum – perfekte Erreichbarkeit für Kunden und Mitarbeiter.
  • Zukunftsfähige Infrastruktur: Modernste Ausstattung, flexible Raumaufteilung und ein gepflegtes Erscheinungsbild – ein Standort mit Strahlkraft.


FACTS:



  • Gesamtnutzfläche: ca. 680 m² - perfekte Raumaufteilung für effiziente Abläufe
  • Bürofläche: ca. 69 m² - repräsentativ, lichtdurchflutet, optimal für Kundentermine oder Administration
  • Verkaufs-/Showroom-Fläche: ca. 42 m² - ideal für Showroom, Shop oder Empfangsbereich
  • Lagerhalle: ca. 260 m² - großzügig dimensioniert, ebenerdig befahrbar, vielseitig nutzbar
  • Terrasse: ca. 146 m² - perfekt für Pausenbereiche oder Events
  • Weitere Räume: flexibel einsetzbar als Werkstatt, Sozialräume oder weitere Lagerflächen
  • Photovoltaikanlage: ja – nachhaltige Energieversorgung
  • PKW-Stellplätze: 25 Stellplätze, davon 3 überdacht
  • Zustand: gepflegt, sofort nutzbar
  • Lage: frequentiertes Gewerbegebiet mit perfekter Anbindung an die A2


--> Hier geht es zum 3D-Rundgang!





Ausstattung, die Maßstäbe setzt:
🌞 Photovoltaikanlage am Dach – nachhaltig wirtschaften und Energiekosten reduzieren - 45 kWp am Dach + 35 kW Speicher!
🚗 25 PKW-Stellplätze direkt am Objekt, davon 3 überdacht – Komfort für Mitarbeiter und Kunden

🔑 Flexible Grundrissgestaltung – Ihre individuellen Anforderungen lassen sich problemlos umsetzen

🌐 Optimal erschlossen – moderne IT- und Stromversorgung, effiziente Heiz- und Kühlsysteme



Lagevorteile, die überzeugen:
Die Liegenschaft befindet sich in einem hochfrequentierten Gewerbegebiet von Gleisdorf mit direktem Anschluss an die A2 Südautobahn und den regionalen Wirtschaftsraum Graz. Einkaufsmöglichkeiten, Gastronomie und öffentliche Verkehrsmittel sind in wenigen Minuten erreichbar.



Ihr Potenzial auf einen Blick:



  • Präsentieren Sie Ihr Unternehmen mit einer repräsentativen Verkaufs- und Bürofläche.
  • Profitieren Sie von einer großzügigen Lagerhalle mit optimaler Zufahrt.
  • Bieten Sie Ihren Kunden und Mitarbeitern erstklassigen Komfort durch zahlreiche Stellplätze und ein modernes Erscheinungsbild.
  • Sichern Sie sich mit der Photovoltaikanlage nachhaltige Betriebskosten-Vorteile.


Fazit:
Diese Immobilie ist einzigartig in Ausstattung, Lage und Potenzial. Sie eignet sich perfekt für Handelsbetriebe, Logistikunternehmen, Produktion oder kombinierte Nutzungen. Ein Standort, der Wachstum ermöglicht und Eindruck hinterlässt.



Ergreifen Sie jetzt die Gelegenheit, diese außergewöhnliche Immobilie zu erwerben, und sichern Sie sich Ihren Auftritt an einer der besten Adressen in Gleisdorf!



Worauf noch warten?



Vereinbaren Sie noch heute eine Besichtigung oder eine persönliche Beratung mit uns!



Sie wollen Ihre Immobilie verkaufen? Dann sind Sie bei uns goldrichtig!

Wir sind gerne für Sie da und unterstützen Sie unverbindlich bei der Bewertung Ihrer Immobilie. Mit viel Sorgfalt stellen wir Ihnen alle wichtigen Informationen und Unterlagen zusammen, damit Sie die besten Entscheidungen treffen können.



In Kooperation mit unserer SFI Vermögenstreuhand begleiten wir Sie bei der Verwirklichung Ihres Traumobjekts und unterstützen Sie beim nachhaltigen Vermögensaufbau. Mit unseren erfahrenen Experten sorgen wir dafür, dass Sie die besten Konditionen erhalten – damit Ihre Träume Wirklichkeit werden!



http://www.schantl-ith.at in Kooperation mit www.sfi-invest.com 



Die Angaben über das angebotene Objekt erfolgen mit der Sorgfalt eines ordentlichen Immobilienmaklers; für die Richtigkeit solcher Angaben, die auf Informationen der über das Objekt Verfügungsberechtigten beruhen, wird keine Gewähr geleistet!


Wir weisen darauf hin, dass zwischen dem Vermittler und dem zu vermittelnden Dritten ein familiäres oder wirtschaftliches Naheverhältnis besteht.


Der Vermittler ist als Doppelmakler tätig.

Infrastruktur / Entfernungen

Gesundheit
Arzt <500m
Apotheke <1.000m
Klinik <10.000m

Kinder & Schulen
Schule <750m
Kindergarten <500m
Höhere Schule <750m

Nahversorgung
Supermarkt <250m
Bäckerei <500m

Sonstige
Geldautomat <500m
Bank <750m
Post <750m
Polizei <1.250m

Verkehr
Bus <250m
Bahnhof <500m
Autobahnanschluss <1.500m
Flughafen <9.000m

Angaben Entfernung Luftlinie / Quelle: OpenStreetMap

Eckdaten Objektnr. 290158

Art: Halle / Lager / Produktion
Land: Österreich
Baujahr: 2023
Zustand: Neuwertig
Alter: Neubau
Kaufpreis: 1.998.000,00
Kaufpreis / m²: 2.927,52 €
Provision: 3% des Kaufpreises zzgl. 20% USt.
Nutzfläche: 682,49 m²
Grundstücksfl.: 2.260,00 m²
Lagerfläche: 260,43 m²
Verkaufsfläche: 42,63 m²
Bürofläche: 69,40 m²
Bäder: 1
WC: 4
Terrassen: 1
Stellplätze: 25
Heizwärmebedarf:  C  53,30 kWh/m²a
fGEE:  A+  0,69
Immobilie merken Exposé

Ausstattung

Fliesen, Solarenergie, Fußbodenheizung, Einbauküche, Bad mit Fenster, Dusche, DV-Verkabelung, Kabel/Satelliten-TV, Carport, Parkplatz, Sicherheitskamera, Alarmanlage


Immobilie anfragen


Ihre persönliche Beratung

Schantl ITH Immobilientreuhand GmbH

Nikolaus Kronabitter

Schantl ITH Immobilientreuhand GmbH

T +436645411047

H +43 664 2540410