Baustart ist bereits erfolgt!!!! Design meets Nature: Neubau-Duo für exklusives Wohnen in Wien! Erstbezug! Deckenkühlung! Luft/Wasser-Wärmepumpe!

Haus - Doppelhaushälfte, 1220 Wien


Die Magnoliengasse, im 22. Bezirk von Wien, vereint die Vorzüge urbanen Komforts mit grüner Ruhe. In unmittelbarer Nähe zu Parks und Grünflächen bietet die Lage Erholung im Grünen. Durch die gute Verkehrsanbindung sind das Stadtzentrum und Autobahnen schnell erreichbar. Lokale Einkaufsmöglichkeiten, Restaurants und Bildungseinrichtungen prägen das lebendige Umfeld. Diese exklusive Adresse ermöglicht einen ausgewogenen Lebensstil, eingebettet in eine freundliche Nachbarschaft und kulturelle Vielfalt. Willkommen in Ihrer neuen Wohnumgebung, wo Stadt und Natur perfekt harmonieren.

Beschreibung der Immobilie

Baustart ist bereits erfolgt!!!! Design meets Nature: Neubau-Duo für exklusives Wohnen in Wien! Erstbezug! Deckenkühlung! Luft/Wasser-Wärmepumpe!

Modernes Wohnen im Grünen: Neubau-Doppelhaus und Einfamilienhaus in der Magnoliengasse, 1220 Wien



Willkommen in Ihrem neuen Zuhause in der Magnoliengasse, 1220 Wien - einer exklusiven Neubauanlage, die höchsten Wohnkomfort mit modernster Ausstattung verbindet.



Objektdetails:




  1. Zwei Wohnoptionen:



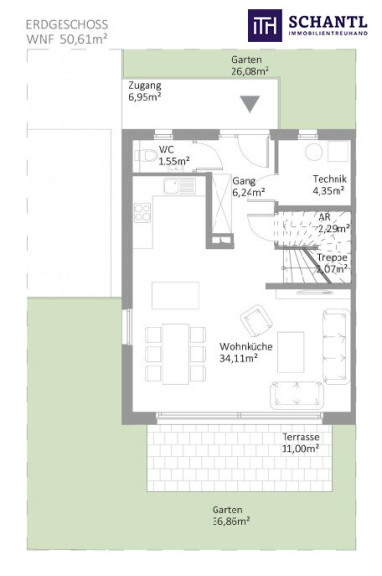
    • Doppelhaus mit ca. 142m² Wohnfläche
    • Einfamilienhaus mit ca. 165m² Wohnfläche


  2. Freiraum für Genuss:



    • Gartenfläche zwischen ca. 62m² und ca. 106m²
    • Großzügige Terrassen von ca. 21m² und ca. 35m²


  3. Komfortable Ausstattung:



    • Massivbauweise und Flachdach mit Kies
    • 3-fach-Wärmeschutzverglasung für effiziente Energiebewirtschaftung
    • Außenliegende Raffstores im Erdgeschoss bei der Hebe-Schiebe-Türe und elektrisch bedienbare Außenrollläden
    • Glasdesign im WC und Bad mit Milchglas


  4. Hochwertige Materialien:



    • Aluminium-Eingangstür mit seitlicher Glaslichte in Milchglas mit Fingerprint
    • Lamellenzaun und Terrassengeländer aus Naturglas für zeitlose Eleganz


  5. Umweltfreundliche Technologien:



    • Deckenkühlung über Betonaktivierung in allen Aufenthaltsräumen
    • Luft-Wasser-Wärmepumpe für nachhaltige Heizung
    • Leerverrohrung auf dem Dach für die zukünftige Installation von Photovoltaikanlagen
    • Wasseranschluss im Garten für entspannte Outdoor-Aktivitäten


  6. Inklusive Leistungen:



    • Aufschließungskosten bereits inklusive
    • ein Stellplatz pro Haus inklusive



Erleben Sie Wohnen auf höchstem Niveau, umgeben von einer grünen Oase und dennoch optimal angebunden an die Annehmlichkeiten der Stadt. Diese Immobilie vereint modernes Design, hochwertige Ausstattung und ökologische Nachhaltigkeit für ein zeitgemäßes Wohngefühl.



Lage: Die Magnoliengasse bietet nicht nur ein idyllisches Wohnumfeld, sondern auch eine erstklassige Anbindung an öffentliche Verkehrsmittel, Einkaufsmöglichkeiten und Bildungseinrichtungen. Hier sind einige der herausragenden Lagevorteile:




  1. Grüne Oase in der Stadt: Die Nähe zu Parks und Grünflächen ermöglicht eine erholsame Umgebung. Genießen Sie Spaziergänge im Grünen oder entspannen Sie sich im eigenen Garten, während Sie dennoch die Annehmlichkeiten der Stadt in Reichweite haben.



  2. Verkehrsanbindung: Die Lage ist verkehrstechnisch gut angebunden, wodurch Sie eine problemlose Erreichbarkeit aller Stadtteile Wiens haben. Die Autobahnen A22 und A23 sind leicht zu erreichen, ebenso wie die öffentlichen Verkehrsmittel, die eine schnelle Anbindung an das Stadtzentrum bieten.



  3. Einkaufsmöglichkeiten und Restaurants: In der näheren Umgebung finden Sie eine Vielzahl von Einkaufsmöglichkeiten für den täglichen Bedarf sowie charmante Restaurants und Cafés. Die Magnoliengasse bietet somit eine ideale Balance zwischen urbanem Lebensstil und Wohnqualität.



  4. Bildungseinrichtungen: Familien schätzen die Nähe zu Bildungseinrichtungen, sei es Kindergärten, Schulen oder Universitäten. Die Umgebung bietet eine Auswahl an renommierten Bildungseinrichtungen, um die Bedürfnisse von Familien zu erfüllen.



  5. Nachbarschaft und Gemeinschaft: Die Gegend ist bekannt für ihre freundliche Nachbarschaft und das Gemeinschaftsgefühl. Hier können Sie nicht nur Ihr Zuhause finden, sondern auch eine lebendige und unterstützende Gemeinschaft erleben.




Entdecken Sie die Vorzüge dieser exklusiven Lage und lassen Sie sich von der Magnoliengasse zu einem modernen Lebensstil inmitten einer lebendigen und dennoch entspannten Umgebung verführen. Vereinbaren Sie noch heute einen Besichtigungstermin und lassen Sie sich von den Vorzügen dieser Immobilie überzeugen!



Kontaktieren Sie uns jetzt, um Ihr Traumhaus zu entdecken und die Zukunft des Wohnens zu erleben!





Bei konkretem Interesse senden wir Ihnen sehr gerne weiterführende Dokumente zu, wie:



  • Energieausweis
  • Bau- und Ausstattungsbeschreibung


Unser Service für Sie: Wenn Sie sich für diese Immobilie entschieden haben, begleiten wir Sie gerne vom Kaufanbot weg inkl. Klärung von Sonderwünschen und der Vertragsunterzeichnung über die Übergabe bis hin zu diversen Ummeldungen. Entsprechende Formulare oder auch Meldezettel stellen wir Ihnen sehr gerne zur Verfügung.



Gerne unterstützen wir Sie auch bei der Finanzierung Ihres Traumobjekts und finden mit unseren langjährigen Partnern die besten Konditionen für Sie



Kontaktieren Sie uns noch heute:



Für weitere Informationen und um einen Besichtigungstermin zu vereinbaren, bitte um Kontaktaufnahme.



Magdalena Tiatco-Frank, 0676/9442411,  magdalena.tiatco-frank@schantl-ith.at



Verpassen Sie nicht die Gelegenheit, Teil dieses aufregenden Neubauprojekts in der Magnoliengasse, 1220 Wien, zu werden. Sichern Sie sich Ihr Traumzuhause!





Sie wollen Ihre Immobilie verkaufen oder vermieten? Dann sind Sie bei uns goldrichtig! Gerne beraten wir Sie kostenlos bei der Bewertung Ihrer Immobilie und präsentieren Ihnen die dafür entscheidenden Informationen und Unterlagen unverbindlich.

Infrastruktur / Entfernungen

Gesundheit
Arzt <500m
Apotheke <1.000m
Klinik <1.000m
Krankenhaus <1.500m

Kinder & Schulen
Schule <500m
Kindergarten <500m
Universität <3.500m
Höhere Schule <3.000m

Nahversorgung
Supermarkt <500m
Bäckerei <1.000m
Einkaufszentrum <1.500m

Sonstige
Geldautomat <1.000m
Bank <1.000m
Post <1.000m
Polizei <1.500m

Verkehr
Bus <500m
U-Bahn <1.000m
Straßenbahn <1.000m
Bahnhof <500m
Autobahnanschluss <1.500m

Angaben Entfernung Luftlinie / Quelle: OpenStreetMap

Eckdaten Objektnr. 290249

Art: Haus - Doppelhaushälfte
Land: Österreich
Baujahr: 2026
Zustand: Erstbezug
Alter: Neubau
Kaufpreis: 759.000,00
Provision: 3% des Kaufpreises zzgl. 20% USt.
Wohnfläche: 142,59 m²
Nutzfläche: 153,57 m²
Zimmer: 6
Bäder: 3
WC: 4
Terrassen: 2
Stellplätze: 1
Garten: 62,94 m²
Heizwärmebedarf:  C  53,60 kWh/m²a
fGEE:  A  0,71
Immobilie merken Exposé

Ausstattung

Fußbodenheizung, Dusche, Bad mit Fenster, Badewanne


Immobilie anfragen


Ihre persönliche Beratung

Schantl ITH Immobilientreuhand GmbH

Magdalena Tiatco-Frank

Schantl ITH Immobilientreuhand GmbH

T +43 664 30 700 09

H +43 676 95 524 11