++ SUNNY SIDE UP ++ Exklusive Dachgeschoßwohnung in revitalisiertem Gründerzeithaus + sonnige Freifläche

Wohnung - Dachgeschoß, 1160 Wien , Speckbachergasse


Die Speckbachergasse befindet sich in einem verkehrsberuhigten Einbahnsystem zwischen der Wilhelminenstraße und Ottakringerstraße und ist sehr gut an das öffentliche Verkehrsnetz angebunden. Der nahe gelegene Wilhelminenberg lädt zum genussvollen Wandern ein. Für eine perfekte Freizeitgestaltung sorgen neben den gepflegten Wanderwägen zahlreiche heimische Gastronomiebetrieben sowie das Schloss Wilhelminenberg als Sightseeing-Highlight. Auch die Innenstadt ist mit den Straßenbahnlinien 2 und 44 in weniger als 20 Minuten leicht erreichbar. Die U-Bahnlinie U3 befindet sich auch nur wenige Gehminuten entfernt.

Beschreibung der Immobilie

++ SUNNY SIDE UP ++ Exklusive Dachgeschoßwohnung in revitalisiertem Gründerzeithaus + sonnige Freifläche

In ruhiger Lage, oberhalb der Wattgasse gelegen, wird derzeit einem Altbau aus der Jahrhundertwende neues Leben eingehaucht. Im Zuge der Sanierung werden 8 Altbauwohnungen rundum erneuert. Erweitert wird das Haus durch 3 exklusive Dachgeschoßwohnungen sowie 5 Town-Houses, welche als Maisonetten mit eigenen Gärten ausgeführt werden. Bei den Wohnungen im Altbestand werden für den Altbau typische Merkmale mit neuen Akzenten versehen. Hier treffen hohe Decken auf großzügige Freiflächen! 



Die Dachgeschoßwohnungen überzeugen durch ihre moderne Ausführung mit hochwertiger Ausstattung. 



Bei der Gestaltung der einzelnen Wohnungen wurde auf eine intelligente Raumgestaltung geachtet, die sich sowohl für Familien als auch Paaren und Singles ideal anbieten. Hier ist für jede(n) etwas passendes dabei.



Die Wohnungen werden durch Freiflächen, welche in den Innenhof gerichtet sind, erweitert. Genießen Sie hier Ihr wohlverdientes Erfrischungsgetränk nach einem anstrengenden Arbeitstag. Auch die hochwertige Ausstattung überzeugt! Fischgrätparkett in Eiche, hohe Parkettleisten in Weiß, geschmackvolle Fliesen sowie hochwertige Armaturen und Keramiken in Bad und WC, hohe Innentüren (2,40m) in Weiß mit Kassetten und Holzumfassungszarge, uvm. versprechen ein angenehmes Wohngefühl!



Lassen Sie sich bereits jetzt schon von diesem großartigen Projekt mit viel Liebe zum Detail überzeugen und vereinbaren Sie noch heute Ihren persönlichen Besichtigungstermin! 



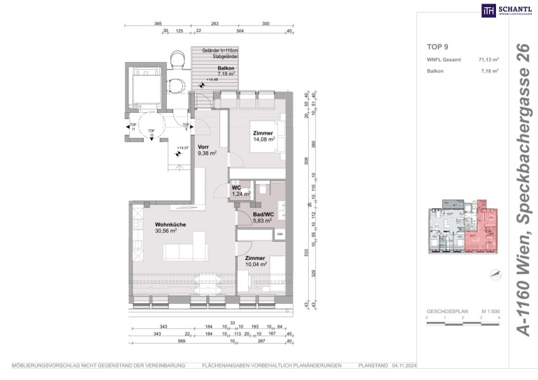
TOP 9:



HARD-FACTS:



  • großzügige Wohnküche
  • 2 gemütliche Schlafzimmer
  • hofseitiger Balkon
  • barrierefreier Zugang
  • etc.


HIGHLIGHTS:



  • ERSTBEZUG
  • vollsaniertes Gründerzeithaus
  • Ruhelage
  • Klimatisiert
  • etc.


Die Fotos stammen aus einer der bereits fertig sanierten Altbauwohnungen und sollen die Ausstattung veranschaulichen. 



Kaufpreis: EUR 525.000,-





Bei konkretem Interesse senden wir Ihnen sehr gerne weiterführende Dokumente zu, wie:



o Grundbuchauszug



o Wohnungseigentumsvertrag



o Nutzwertgutachten



o Eigentümerversammlungsprotokoll (Falls vorhanden) etc...





Unser Service für Sie: Wenn Sie sich für diese Immobilie entschieden haben, begleiten wir Sie gerne vom Kaufanbot weg inkl. Klärung von Sonderwünschen und der Vertragsunterzeichnung über die Wohnungsübergabe bis hin zu diversen Ummeldungen wie Strom und Gas. Entsprechende Formulare oder auch Meldezettel stellen wir Ihnen sehr gerne zur Verfügung.



Gerne unterstützen wir Sie auch bei der Finanzierung Ihres Traumobjekts und finden mit unseren langjährigen Partnern die besten Konditionen für Sie.



www.schantl-ith.at




Wir weisen darauf hin, dass zwischen dem Vermittler und dem zu vermittelnden Dritten ein familiäres oder wirtschaftliches Naheverhältnis besteht.


Der Vermittler ist als Doppelmakler tätig.

Infrastruktur / Entfernungen

Gesundheit
Arzt <500m
Apotheke <500m
Klinik <750m
Krankenhaus <750m

Kinder & Schulen
Schule <500m
Kindergarten <500m
Universität <1.500m
Höhere Schule <1.000m

Nahversorgung
Supermarkt <250m
Bäckerei <250m
Einkaufszentrum <1.000m

Sonstige
Geldautomat <500m
Bank <500m
Post <500m
Polizei <500m

Verkehr
Bus <250m
U-Bahn <500m
Straßenbahn <250m
Bahnhof <750m
Autobahnanschluss <4.500m

Angaben Entfernung Luftlinie / Quelle: OpenStreetMap

Eckdaten Objektnr. 290255

Art: Wohnung - Dachgeschoß
Land: Österreich
Zustand: Erstbezug
Alter: Altbau
Kaufpreis: 525.000,00
Provision: 3% des Kaufpreises zzgl. 20% USt.
Wohnfläche: 71,13 m²
Nutzfläche: 78,31 m²
Gesamtfläche: 78,31 m²
Zimmer: 3
Bäder: 1
WC: 2
Balkone: 1
Heizwärmebedarf:  D  121,20 kWh/m²a
fGEE:  D  1,95
Immobilie merken Exposé

Ausstattung

Fliesen, Parkett, Fußbodenheizung, Wohnküche / offene Küche, Personenaufzug, Dusche, Kabel/Satelliten-TV


Immobilie anfragen


Ihre persönliche Beratung

Schantl ITH Immobilientreuhand GmbH

Magdalena Tiatco-Frank

Schantl ITH Immobilientreuhand GmbH

T +43 664 30 700 09

H +43 676 95 524 11