Baulandbetriebsgebiet im Gewerbegebiet Eisenstadt

Grundstück - Betriebsbaugrund, 7000 Eisenstadt


Beschreibung der Immobilie

Baulandbetriebsgebiet im Gewerbegebiet Eisenstadt

Zum Verkauf gelangt eine Gewerbefläche 2620m²  in zentraler Lage bei der Mattersburgerstraße im Gewerbegebiet Eisenstadt



im Bauland Betriebsgebiet,



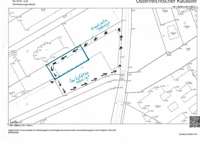
es gibt bereits eine befestigte Ringstraße für diese und die benachbarte Liegenschaft, die für PKW und LKW als Zu- und Abfahrt dient



zusätzlich sind bereits  befestigte Stellplätze vorhanden mit ca. 520m², Ringstraße und Parkplätze sind im Kaufpreis inkludiert 



Die zukünftige Nettonutzfläche beträgt ca. 3600m² auf 3 Etagen,



es ist eine Erweiterung möglich!



Das Baugrundstück ist aufgeschlossen: Wasser, Abwasser, Strom, Gas





Kaufpreis  1,2 Mio





branchenfrei, bestens geeignet für Motels, Hotels und Gastronomie, Gewerbebetriebe, Fachmarktzentren Büros Ordinationen



Das Objekt befindet sich im Gewerbegebiet Eisenstadt in unmittelbarer Nähe zum zum ARBÖ Pannennotruf,



sowie ca. 200 weiteren Gewerbebetrieben und Verkaufsmärkten



Perfekte Autobahn Anbindung



In unmittelbarer Nähe S31, B50



8 min mit dem Auto nach Eisenstadt Zentrum



4 min zum Bahnhof Eisenstadt





Bei Interesse kontaktieren Sie bitte



Mag Monika Feichtinger

Email: office@bar-immobilien.at

Tel: 0699 11 54 54 99



B.A.R! Immobilien & Verwaltung GmbH

Sterngasse 3/2/6

A- 1010 Wien




Weiter Objekte finden Sie unter www.bar-immobilen.at



Bitte beachten Sie, dass wir aufgrund der Nachweispflicht dem Eigentümern gegenüber ausschließlich Anfragen mit vollständigen Kontaktdaten (Name, Wohnadresse, Email, Telefonnummer) beantworten können! Es gelten die allgemeinen Geschäftsbedingungen. Obige Angaben basieren auf Informationen und Unterlagen des Vermieters und der Kommunalbehörde. Änderungen und Irrtümer vorbehalten.



Provision: Der guten Ordnung halber möchten wir festhalten, dass im Falle eines Abschlusses mit Ihnen oder einem von Ihnen namhaft gemachten Dritten unser Honorar (lt. Honorarverordnung für Immobilienmakler, BGBl. 262 und 297/1996) 3 Bruttomonatsmieten beträgt zzgl. der gesetzlichen MwSt.  




Infrastruktur / Entfernungen

Gesundheit
Arzt <1.000m
Apotheke <2.000m
Klinik <8.500m
Krankenhaus <2.500m

Kinder & Schulen
Schule <2.000m
Kindergarten <1.500m
Universität <1.000m
Höhere Schule <2.000m

Nahversorgung
Supermarkt <500m
Bäckerei <500m
Einkaufszentrum <500m

Sonstige
Bank <500m
Geldautomat <500m
Post <500m
Polizei <2.000m

Verkehr
Bus <500m
Autobahnanschluss <1.000m
Bahnhof <1.500m

Angaben Entfernung Luftlinie / Quelle: OpenStreetMap

Eckdaten Objektnr. 9133

Art: Grundstück - Betriebsbaugrund
Land: Österreich
Kaufpreis: 1.200.000,00
Provision: 3% des Kaufpreises zzgl. 20% USt.
Grundstücksfl.: 2.620,00 m²
Stellplätze: 52
Immobilie merken Exposé

Ausstattung

Parkplatz


Immobilie anfragen


Ihre persönliche Beratung

B.A.R! Immobilien & Verwaltungs Ges.m.b.H

Mag. Monika Feichtinger

B.A.R! Immobilien & Verwaltungs Ges.m.b.H

T + 43 1 535 02 83

H + 43 699 11 54 54 99

F + 43 1 535 02 83-83