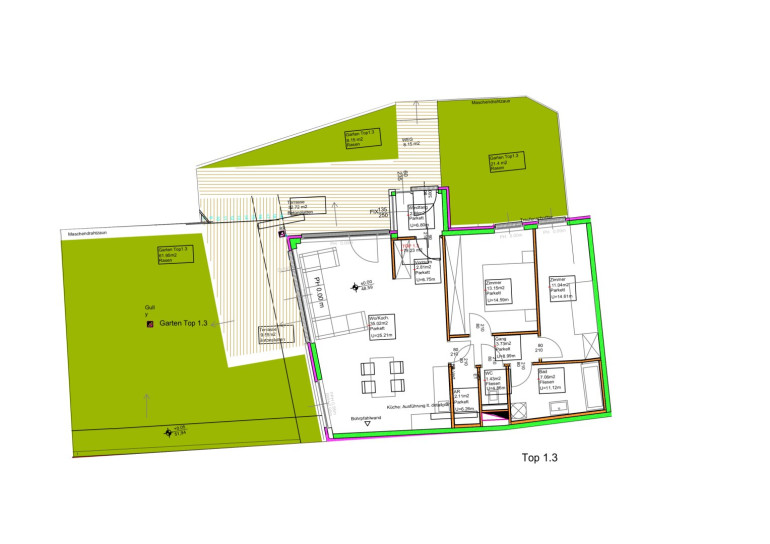
Innenhoflage - Sehr schöne Familienwohnung mit Terrasse und großer Gartenfläche (T 1.3 / EG)

Wohnung , 1230 Wien


Dank guter Anbindung an Bus, U-Bahn und Bahnhof sowie dem Autobahnanschluss genießen Sie beste Verkehrsanbindungen. Diese attraktive Wohnung in 1230 Wien besticht durch ihre hervorragende Lage nahe der Shopping City Süd (SCS).

Beschreibung der Immobilie

Innenhoflage - Sehr schöne Familienwohnung mit Terrasse und großer Gartenfläche (T 1.3 / EG)

1230 KETZERGASSE 99 - NÄHE U 6


Diese schöne, sehr gut aufgeteilte 3 Zimmer-Eigentumswohnung hat von allen Zimmern einen Zugang zum eignen Garten. Wohnen am Stadtrand - ein Konzept für jene, die ein Leben in einem überschaubaren Ort mit der Infrastruktur einer Großstadt suchen. Ein Highlight dieser Immobilie ist der liebevoll angelegte Garten mit einer einladenden Terrasse. Die Verbindung von Innen- und Außenbereich schafft eine harmonische Atmosphäre. Als Baufirma fungierte die STRABAG Bau AG.



Raumaufteilung:



- 1 Wohnküchenbereich mit Ausgang auf die große Terrasse und den Eigengarten

- 2 Schlafzimmer mit Ausgang auf in den  Eigengarten

- 1 Badezimmer 

- 1 WC

- 1 Vorzimmer

- 1 Abstellraum.



Ausstattung:



  • Inklusiver Küche mit allen Geräten
  • Kühlung im Sommer durch zusätzlich installierte Wärmepumpe
  • Moderne Hauszentralheizung - Anlagencontracting (Gas-Brennwertgerät/Wärmepumpe)
  • Parketten in allen Räumen
  • Großformatige Fliesen in den Sanitärbereichen
  • Weiße Innentüren
  • Hochwertige Ausführung durch STRABAG AG


Lage: 



Die Infrastruktur rund um das Projekt ist als sehr gut zu bezeichnen. Einkaufsmöglichkeiten, Ärzten, Schulen und Behörden und Orte der Freizeitgestaltung (Badeseen und SCS) in unmittelbarer Nähe, sowie die hervorragende Verkehrsanbindung ins Zentrum der Großstadt Wien durch die U6, zeichnen diesen außergewöhnlichen Wohnkomfort am Stadtrand von Wien aus.



Öffentliche Verkehrsanbindung:



U-Bahnstation und Busstationen befinden sich in unmittelbarer Nähe.



Siebenhirten:      U6, Badner Bahn, Bus 207,260,266,269,270 

Perfektastraße : Bus 61A, 64A

 



KFZ-Stellplätze in der Garage können zusätzlich angekauft werden ( €24.900,—)



Wir weisen ausdrücklich auf unser wirtschaftliches Naheverhältnis mit dem Abgeber/der Abgeberin hin! Irrtum und Änderungen vorbehalten! Die angeführten Bilder sind Visualisierungen. Abänderungen zur tatsächlichen Ausführung können resultieren. 

Infrastruktur / Entfernungen

Gesundheit
Arzt <500m
Apotheke <500m
Klinik <2.000m
Krankenhaus <3.000m

Kinder & Schulen
Schule <500m
Kindergarten <1.000m
Universität <6.500m
Höhere Schule <6.000m

Nahversorgung
Supermarkt <500m
Bäckerei <500m
Einkaufszentrum <1.500m

Sonstige
Geldautomat <500m
Bank <500m
Post <2.000m
Polizei <2.000m

Verkehr
Bus <500m
U-Bahn <500m
Straßenbahn <3.500m
Bahnhof <500m
Autobahnanschluss <1.000m

Angaben Entfernung Luftlinie / Quelle: OpenStreetMap

Eckdaten Objektnr. 1723103-3

Art: Wohnung
Land: Österreich
Baujahr: 2022
Zustand: Neuwertig
Alter: Neubau
Kaufpreis: 498.000,00
Provision: 3% des Kaufpreises zzgl. 20% USt.
Betriebskosten: 210,49 €
MwSt Gesamt: 21,05 €
Wohnfläche: 79,43 m²
Zimmer: 3
Bäder: 1
WC: 1
Terrassen: 1
Garten: 81,76 m²
Keller: 5,07 m²
Heizwärmebedarf: 34,65 kWh/m²a
fGEE: 0,88
Immobilie merken Exposé

Ausstattung

Gas, Zentralheizung, Wohnküche / offene Küche, Einbauküche, Personenaufzug, Badewanne


Immobilie anfragen


Ihre persönliche Beratung

Claudia Sailer

Ticon Immobilienservice

T +43 664 2122877

H +43 664 2122877

F +43 1 9618101