VIENNA TWENTYTWO I Kagran U-Bahn U1 I Hochwertig ausgestattete Traumwohnung mit Loggia I Fitnessraum I SAUNA & POOL

Wohnung , 1220 Wien


Öffentliche Verbindung: - U-Bahn U1 Richtung Leopoldau / Oberlaa (1 min Gehweg) - Straßenbahn 25, Haltestelle "Kagran" Richtung Aspern, Oberdorfstraße/Floridsdorf (3 min Gehweg) - Straßenbahn 26, Haltestelle "Kagraner Platz" Richtung Hausfeldstraße/Strebersdorf, Edmund-Hawranek-Platz (3 min Gehweg) - Straßenbahn 27, Haltestelle "Kagraner Platz" Richtung Aspern Nord/Strebersdorf, Edmund-Hawranek-Platz (3 min Gehweg) - Bus 93A, Haltestelle "Kagran" Richtung Kargran/Aspernstraße (3 min Gehweg) - Bus 22A, Haltestelle "Kagran" Richtung Kargran/Aspernstraße (3 min Gehweg) - nur 15 min bis zum Stadtzentrum -> U1 Richtung Oberlaa bis zum Stephansplatz Einkaufsmöglichkeiten: - Einkaufszentrum: Donau Zentrum (2 min Gehweg) inkl. Bipa, INTERSPAR, DM, Libro, Müller usw. In der Nähe: - John Reed Fitness (3 min Gehweg) - Kino CINEPLEXX (2 min Gehweg) - Vienna International School (3 min Gehweg) - Kirschblütenpark (5 min Gehweg)

Beschreibung der Immobilie

VIENNA TWENTYTWO I Kagran U-Bahn U1 I Hochwertig ausgestattete Traumwohnung mit Loggia I Fitnessraum I SAUNA & POOL

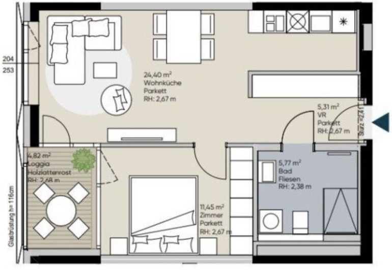
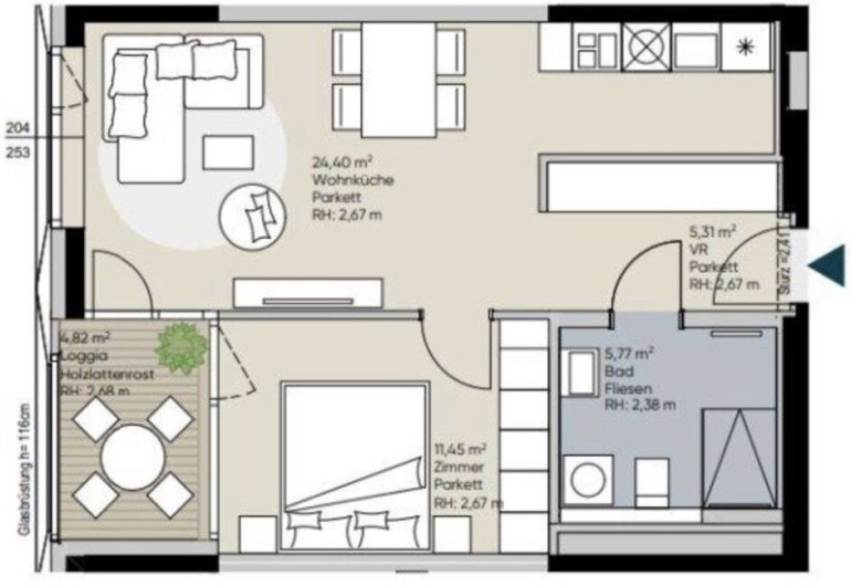
Top 105 | 2 Zimmer | ca. 47m² I 12. Obergeschoss 



Top 105 ist eine stylische Wohnung für Menschen, die Komfort schätzen. Die Wohnung ist logisch und durchdacht aufgeteilt: vom Vorraum mit Nische für Einbaumöbel gelangt man in das großzügige Wohnzimmer. Die Küche ist durch eine Trennwand vom Vorraum und Wohnbereich abgetrennt. Vom Wohnbereich aus erreicht man die Loggia mit ca. 4,8 m², ideal, um die tollen Ausblicke aus dem 12. Obergeschoss zu genießen. Das separat gelegene Schlafzimmer bietet Ruhe und Komfort. Das Bad mit Dusche befindet sich direkt daneben und macht den Alltag besonders angenehm.



Raumaufteilung:



  • Vorraum: ca. 5,31 m²
  • Wohnküche: ca. 24,40 m²
  • Zimmer: ca. 11,45 m²
  • Bad: ca. 5,77 m²
  • Loggia: ca. 4,82 m²


Highlights: 






  • Spectacular Rooftop Pool



  • Exclusive Gym  



  • Private Wellness Area 



  • Stylish Lobby




Wohnkomplex TwentyTwo:



Top 105 befindet sich im 12. Obergeschoss des Neubauprojekts „Vienna TwentyTwo Living“, das dem Objekt zahlreiche moderne Annehmlichkeiten bietet. Ein Fitnessraum, ein Rooftop Pool sowie ein Saunabereich stehen den Bewohnern zur Verfügung und bieten exklusive Möglichkeiten für Erholung und Freizeit.

Ein Kinderspielplatz, Partyräume und modern gestaltete Außenflächen runden das attraktive Gesamtangebot ab. Das Projekt wurde nachhaltig und umweltschonend errichtet, sodass die zukünftigen Bewohner die Vorteile modernen Wohnens sorgenfrei genießen können.



Mietwohnungen im 12. Stock, die verfügbar sind:



1) TOP 104: 78,68 m² Brutto Miete: EUR 2314,56 (inklusive USt., Betriebskosten und Verwaltung)



2) TOP 103: 49,68 m² Brutto Miete: EUR 1499,00 (inklusive USt., Betriebskosten und Verwaltung)



3) TOP 106: 50,56 m² Brutto Miete: EUR 1600,00 (inklusive USt., Betriebskosten und Verwaltung)



4) TOP 109: 50,56 m² Brutto Miete: EUR 1599,00 (inklusive USt., Betriebskosten und Verwaltung) 



5) TOP 110: 46,74 m² Brutto Miete: EUR 1349,00 (inklusive USt., Betriebskosten und Verwaltung)



6) TOP 112: 49,29 m² Brutto Miete: EUR 1499,00 (inklusive USt., Betriebskosten und Verwaltung)



Lage:



Für alle, die ein urbanes und modernes Leben führen möchten – mit allem Wichtigen direkt vor der Haustür – und dennoch gerne Zeit im Grünen oder am Wasser verbringen, ist diese Lage ein wahres Juwel. Das nahegelegene Donau Zentrum bietet eine Vielzahl an Einkaufs- und Unterhaltungsmöglichkeiten, darunter Kinos, Cafés und zahlreiche Restaurants. Nur einen Katzensprung entfernt liegt die Alte Donau, ideal zum Spazieren, Laufen, Radfahren oder Bootfahren – ein perfekter Ort zum Abschalten inmitten der Stadt. Sportbegeisterte kommen ebenfalls auf ihre Kosten: In der Umgebung befinden sich die Steffl Arena (Eislaufhalle) sowie mehrere Fitnessstudios. Die U1-Station Kagran, nur eine Minute zu Fuß entfernt, ermöglicht eine schnelle Verbindung ins Stadtzentrum – in nur 15 Minuten erreichen Sie den Stephansplatz.



Öffentliche Verkehrsanbindung:



- U-Bahn U1 Richtung Leopoldau / Oberlaa (1 min Gehweg)

- Straßenbahn 25, Haltestelle "Kagran" Richtung Aspern, Oberdorfstraße/Floridsdorf (3 min Gehweg)

- Straßenbahn 26, Haltestelle "Kagraner Platz" Richtung Hausfeldstraße/Strebersdorf, Edmund-Hawranek-Platz (3 min Gehweg)

- Straßenbahn 27, Haltestelle "Kagraner Platz" Richtung Aspern Nord/Strebersdorf, Edmund-Hawranek-Platz (3 min Gehweg)

- Bus 93A, Haltestelle "Kagran" Richtung Kargran/Aspernstraße (3 min Gehweg)

- Bus 22A, Haltestelle "Kagran" Richtung Kargran/Aspernstraße (3 min Gehweg) 

- nur 15 min bis zum Stadtzentrum -> U1 Richtung Oberlaa bis zum Stephansplatz 



Die Wohnung wird vorerst für 5 Jahre befristet vermietet.



Kostenübersicht:



Monatliche Gesamtmiete: EUR 1549,00 (inklusive USt., Betriebskosten und Verwaltung)



Mietvertragserrichtungskosten: EUR 300,00 (zzgl. 20% USt.)



Kaution: EUR 4.647,00 (3 BMM)



Gerne steht Ihnen Frau Dina Moiceanu für weitere Fragen bzw. flexibel gestaltbare Besichtigungstermine unter +43 677 61585215 zur Verfügung.  



www.ringsmuth-immobilien.at



Irrtum und Änderungen vorbehalten!








Der Immobilienmakler erklärt, dass er – entgegen dem in der Immobilienwirtschaft üblichen Geschäftsgebrauch des Doppelmaklers – einseitig nur für den Vermieter tätig ist.

Infrastruktur / Entfernungen

Gesundheit
Arzt <500m
Apotheke <500m
Klinik <2.500m
Krankenhaus <3.500m

Kinder & Schulen
Schule <500m
Kindergarten <500m
Universität <1.500m
Höhere Schule <1.500m

Nahversorgung
Supermarkt <500m
Bäckerei <500m
Einkaufszentrum <500m

Sonstige
Geldautomat <500m
Bank <500m
Post <500m
Polizei <500m

Verkehr
Bus <500m
U-Bahn <500m
Straßenbahn <500m
Bahnhof <500m
Autobahnanschluss <2.500m

Angaben Entfernung Luftlinie / Quelle: OpenStreetMap

Eckdaten Objektnr. 16376

Art: Wohnung
Land: Österreich
Alter: Neubau
Gesamtmiete: 1.549,00
Kaltmiete (netto): 1.408,18 €
Kaltmiete: 1.408,18 €
Provision: Gemäß Erstauftraggeberprinzip bezahlt der Abgeber die Provision.
MwSt Gesamt: 140,82 €
Wohnfläche: 46,93 m²
Nutzfläche: 51,75 m²
Zimmer: 2
Bäder: 1
Heizwärmebedarf:  B  25,60 kWh/m²a
Immobilie merken Exposé

Ausstattung

Parkett, Fliesen, Fußbodenheizung, Einbauküche, Personenaufzug, Dusche, Sauna, Swimmingpool


Immobilie anfragen


Ihre persönliche Beratung

Alexander Ringsmuth GmbH

Dina Moiceanu

Alexander Ringsmuth GmbH

T +4313709098

H +4367761585215