#SQ - ERSTBEZUG NÄHE MÄRZSTRASSE: DACHTERRASSENWOHNUNG IN RUHELAGE!

Wohnung , 1150 Wien,Rudolfsheim-Fünfhaus


Die Wohnung befindet sich im 15. Bezirk in unmittelbarer Nähe zu Schönbrunn. Sie sind in wenigen Minuten beim Westbahnhof und somit bei der Mariahilfer Straße und gleichzeitig sehr verkehrsgünstig zur Westeinfahrt gelegen. Öffentliche Verkehrsanbindung: U3, Straßenbahn 10, 49 sowie Bus 10A, 12A Die Infrastruktur bietet Ihnen alles für den täglichen Bedarf. So erreichen Sie fußläufig in wenigen Minuten den nahegelegenen Meiselmarkt sowie diverse Supermärkte, Restaurants, Cafés, Schulen, Kindergärten, Banken, Apotheken, uvm.

Beschreibung der Immobilie

#SQ - ERSTBEZUG NÄHE MÄRZSTRASSE: DACHTERRASSENWOHNUNG IN RUHELAGE!

Zum Verkauf gelangt ein Erstbezug, eine topsanierte 2-Zimmer-Wohnung mit 2 Terrassen im Dachgeschoss eines Altbaus, wenige Minuten zu Fuß entfernt von der nächsten U3-Station. Die Liegenschaft verfügt über einen Personenlift.



Im gesamten Gebäude werden im Dachgeschoss insgesamt 5 Einheiten verkauft, ca. 60 - 87m² zzgl. Außenflächen. Die Wohnungen sind mit sehr viel Liebe zum Detail fertiggestellt worden. Für die Ausstattung der Wohnungen wurden ausschließlich hochwertige Materialien verwendet. Kein Wunsch bleibt hier offen!



Eckdaten im Überblick:
Gewichtete WNFL: ca. 64,60m²

Wohnfläche: ca. 59,85m²  

Terrassen: ca. 9,49m²

Zimmer: 2

Küche: Anschlüsse verfügbar

Bad: 1

WC: 1

Lift: ja



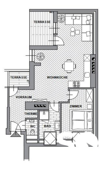
Raumaufteilung:
Vorraum

Wohnküche

Schlafzimmer

Bad mit Dusche

WC

2 Terrassen



Ausstattung:
3-fach verglaste Fenster und Fenstertüren, Aluminium

Beschattung (Raffstore)

FAKRO GREENVIEW Dachflächen-Schwingfenster mit hoher Energieeffizienz

Stahlsicherheitstüre WK3 mit Mehrfachverriegelung

Luftwärmepumpe (Vaillant)

Fußbodenheizung

Vorbereitung für Klimageräte in jedem Zimmer (Wohn- und Schlafzimmer)

Wohnräume/Küche/Esszimmer: Französisches Fischgrät

BAD, WC: Grande Paonazzetto | 9,5mm/ 60x120cm

Terrassenholz: Thermokiefer oder gleichwertiges

Bad: Deckenspots, Handtuchtrockner, Radio (GIRA)



Kosten:
Kaufpreis: EUR 399.000,--

Provision: 3% vom KP zzgl. gesetzl. MwSt.



Hinweis: Die Fotos im Exposee sind zT. von der spiegelverkehrten Wohnung vis-a-vis.



**Nähere Informationen zur Gebührenbefreiung finden Sie unter: https://www.bmj.gv.at/themen/Fokusthemen/Befreiung-von-der-Grundbuch-Eintragungsgebühr-bei-Erwerb-von-Wohnraum.html



Es stehen noch weitere Wohnungen im Dachgeschoß zum Verkauf!
Gerne stehen wir Ihnen für nähere Informationen zur Verfügung.


Hinweis gemäß Energieausweisvorlagegesetz: Ein Energieausweis wurde vom Eigentümer bzw. Verkäufer, nach unserer Aufklärung über die generell geltende Vorlagepflicht, sowie Aufforderung zu seiner Erstellung noch nicht vorgelegt. Daher gilt zumindest eine dem Alter und der Art des Gebäudes entsprechende Gesamtenergieeffizienz als vereinbart. Wir übernehmen keinerlei Gewähr oder Haftung für die tatsächliche Energieeffizienz der angebotenen Immobilie.


Wir weisen darauf hin, dass zwischen dem Vermittler und dem zu vermittelnden Dritten ein familiäres oder wirtschaftliches Naheverhältnis besteht.


Der Vermittler ist als Doppelmakler tätig.

Infrastruktur / Entfernungen

Gesundheit
Arzt <500m
Apotheke <500m
Klinik <1.000m
Krankenhaus <2.000m

Kinder & Schulen
Schule <500m
Kindergarten <500m
Universität <1.000m
Höhere Schule <1.500m

Nahversorgung
Supermarkt <500m
Bäckerei <500m
Einkaufszentrum <500m

Sonstige
Geldautomat <500m
Bank <500m
Post <500m
Polizei <500m

Verkehr
Bus <500m
U-Bahn <500m
Straßenbahn <500m
Bahnhof <500m
Autobahnanschluss <5.000m

Angaben Entfernung Luftlinie / Quelle: OpenStreetMap

Eckdaten Objektnr. 20959

Art: Wohnung
Land: Österreich
Zustand: Erstbezug
Kaufpreis: 399.000,00
Wohnfläche: 59,85 m²
Zimmer: 2
Bäder: 1
WC: 1
Terrassen: 2
Immobilie merken Exposé

Ausstattung

Parkett, Fußbodenheizung, Wohnküche / offene Küche, Personenaufzug, Bad mit Fenster, Dusche


Immobilie anfragen


Ihre persönliche Beratung

STADTQUARTIER Home GmbH

Mona Taghavi

STADTQUARTIER Real Estate Group

T +43650 2311113

H +43650 2311113