Großzügige Altbauwohnung im Herzen des Stuwerviertels

Wohnung - Etage, 1020 Wien


Beschreibung der Immobilie

Großzügige Altbauwohnung im Herzen des Stuwerviertels

Zum Verkauf gelangt eine beeindruckende, großzügig geschnittene Eigentumswohnung mit ca. 167 m² Wohnfläche in bester Lage des beliebten Stuwerviertels. Die Immobilie befindet sich im 1. Liftstock eines charmanten Eck-Gründerzeithauses aus dem Jahr 1896 und überzeugt durch ihren klassischen Altbaucharakter.



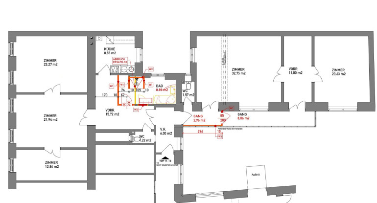
Die Wohnung verfügt über fünf Zimmer, eine separate Küche sowie eine optimale Westausrichtung in Kombination mit ruhiger Teil-Innenhoflage – eine seltene Gelegenheit für Liebhaber historischer Architektur, die großzügigen Wohnraum schätzen oder benötigen.



Die Räumlichkeiten erstrecken sich über zwei Wohnungsseiten, die beide vom zentralen Vorraum aus begehbar sind.

Auf der ruhigen Innenhofseite befinden sich zwei großzügige Zimmer sowie ein kleines Arbeitszimmer bzw. Schrankraum. Ein besonderes Highlight stellt die entzückende Glasveranda dar, die der Wohnung einen unverwechselbaren und charmanten Charakter verleiht.



Straßenseitig (Einbahnstraße) und nach Westen orientiert liegen drei helle Räume, die sich ideal als Wohn-, Ess- und Arbeitszimmer nutzen lassen. Die separate Küche, zwei Toiletten sowie ein großzügiges Badezimmer mit Fenster vervollständigen das durchdachte Raumangebot.



Die Wohnung präsentiert sich in einem gepflegten und charmanten Zustand. Die Kastenfenster wurden teilweise doppelt verglast, die Therme vor rund sieben Jahren erneuert und das Badezimmer vergrößert. Mit nur wenigen individuellen Adaptierungen lässt sich hier ein außergewöhnlich schönes Zuhause mit ganz eigenem Charakter schaffen. Die Glasveranda ist altersbedingt sanierungsbedürftig; eine entsprechende Sanierung ist erforderlich. Die Hausverwaltung holt derzeit bereits mehrere Angebote hierfür ein.



Lage:



Die Wohnung befindet sich im Herzen des charmanten Stuwerviertels, einem der aufstrebendsten und zugleich traditionsreichsten Grätzel Wiens. Direkt ums Eck liegt der Vorgartenmarkt – ein beliebter Treffpunkt für Genießer, mit frischem Obst und Gemüse, kleinen Feinkostläden und gemütlichen Restaurants.



Die U1-Station Vorgartenstraße liegt nahezu vor der Haustür – in nur wenigen Minuten erreicht man den 1. Bezirk und damit die Wiener Innenstadt.



Für Freizeit und Erholung ist ebenfalls bestens gesorgt: Die Donau mit ihren weitläufigen Uferbereichen und Bademöglichkeiten ist in kurzer Zeit zu Fuß oder mit dem Fahrrad erreichbar – ideal für Spaziergänge, sportliche Aktivitäten oder einen entspannten Sommertag am Wasser.


Wir weisen darauf hin, dass zwischen dem Vermittler und dem zu vermittelnden Dritten ein familiäres oder wirtschaftliches Naheverhältnis besteht.


Der Vermittler ist als Doppelmakler tätig.

Infrastruktur / Entfernungen

Gesundheit
Arzt <500m
Apotheke <500m
Klinik <500m
Krankenhaus <2.000m

Kinder & Schulen
Schule <500m
Kindergarten <500m
Universität <500m
Höhere Schule <2.500m

Nahversorgung
Supermarkt <500m
Bäckerei <500m
Einkaufszentrum <2.500m

Sonstige
Geldautomat <500m
Bank <500m
Post <1.000m
Polizei <500m

Verkehr
Bus <500m
U-Bahn <500m
Straßenbahn <500m
Bahnhof <500m
Autobahnanschluss <1.500m

Angaben Entfernung Luftlinie / Quelle: OpenStreetMap

Eckdaten Objektnr. 1575/795

Art: Wohnung - Etage
Land: Österreich
Baujahr: 1896
Zustand: Gepflegt
Alter: Altbau
Kaufpreis: 770.000,00
Provision: 3% des Kaufpreises zzgl. 20% USt.
Betriebskosten: 236,98 €
MwSt Gesamt: 29,30 €
Wohnfläche: 167,42 m²
Zimmer: 5,50
Bäder: 1
WC: 2
Heizwärmebedarf:  D  111,20 kWh/m²a
fGEE:  D  2,16
Immobilie merken Exposé

Ausstattung

Parkett, Fliesen, Etagenheizung, Einbauküche, Personenaufzug, Bad mit Fenster, Badewanne, Dusche


Immobilie anfragen


Ihre persönliche Beratung

Pia Estate GmbH

Pia Schelling

Pia Estate GmbH

T +43 660 508 36 35

H +43 660 508 36 35