Exklusives Theresiana-Penthouse: Eleganz & Großzügigkeit über den Dächern Wiens

Wohnung - Penthouse, 1180 Wien


Die Wohnung überzeugt nicht nur durch ihre hochwertige Ausstattung, sondern auch durch ihre ausgezeichnete Lage im beliebten 18. Bezirk. In unmittelbarer Nähe befinden sich der Anton-Baumann-Park, der Schubertpark sowie der charmante Kutschkermarkt – perfekte Orte für Erholung, Freizeit und Genuss. Zahlreiche Einkaufsmöglichkeiten entlang der Währinger Straße und Alser Straße decken den täglichen Bedarf bequem ab. Das Allgemeine Krankenhaus (AKH) ist in nur 5 Gehminuten erreichbar,ideal für Mitarbeitende des Spitals oder als Investment in eine zukunftssichere Lage. Ein großzügiger Spielplatz direkt vor der Haustür macht die Wohnung besonders attraktiv für Familien. Die öffentliche Anbindung ist hervorragend: Die U6-Station Michelbeuern-AKH sowie die Straßenbahnlinie 43 sind fußläufig in ca. 3 Minuten erreichbar. Ab dem Jahr 2026 wird die neue U5-Station AKH eine noch direktere Verbindung ins Stadtzentrum bieten und den Standort zusätzlich aufwerten.

Beschreibung der Immobilie

Exklusives Theresiana-Penthouse: Eleganz & Großzügigkeit über den Dächern Wiens

Willkommen in einem Zuhause, das mehr ist als nur eine Adresse. Es ist ein Statement von Stil, Klasse und Lebensqualität. Dieses außergewöhnliche Penthouse vereint den zeitlosen Charme eines Wiener Stilaltbaus mit modernem Luxus und beeindruckender Großzügigkeit auf einer einzigen Ebene, mitten im begehrten Dreieck von Währing, Hernals und Alsergrund.



Hier verschmelzen Licht, Raum und Design zu einem Wohngefühl, das Sie vom ersten Moment an begeistern wird.





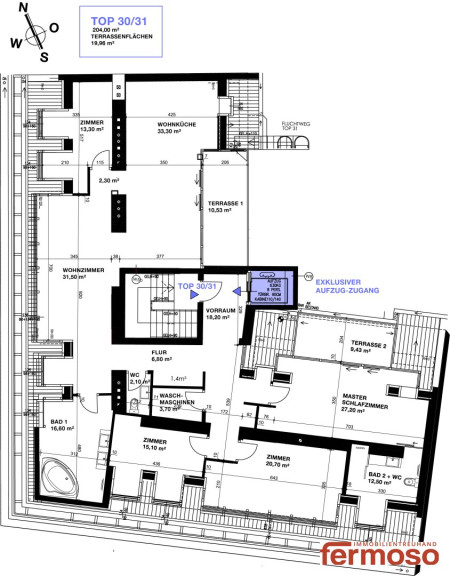
Highlights, die begeistern:

    •    Raumhohe Panoramafenster – Sonnenlicht aus drei Himmelsrichtungen

    •    Zwei traumhafte Terrassen mit Weitblick über Wien (je ca. 20 m²)

    •    Privater Liftzugang direkt in die Wohnung

    •    Loftartiges Wohnen auf einer Ebene – offen, hell, einzigartig

    •    Exklusive Materialien & Ausstattung auf höchstem Niveau





Luxusausstattung im Detail:

    •    Klimaanlage in mehreren Räumen

    •    Fußbodenheizung & dreifachverglaste Alufenster

    •    Elektrische Raffstores & Markisen

    •    Maßgefertigte Schano-Einbauküche & Einbauschränke inklusive

    •    Edler Nussbaum-Fischgrätparkett

    •    Sanitärausstattung von Grohe & Villeroy & Boch

    •    Hochsichere Brandschutz-Eingangstüre

    •    Kellerabteil vorhanden





Energie & Wirtschaftlichkeit:

    •    HWB: 39,99 kWh/m²a (Klasse B)

    •    Moderne Etagenheizung

    •    Betriebskosten (netto): ca. 471 €/Monat

    •    Rücklage: ca. 217 €/Monat





Ein Zuhause für Menschen mit Anspruch



Dieses Penthouse ist kein Standardobjekt – es ist ein architektonisches Unikat für alle, die Licht, Design und Weitblick lieben und höchste Ansprüche an Wohnqualität stellen.



Hier wohnen Sie über den Dächern Wiens-mit Stil, Ruhe und urbaner Eleganz.





Vereinbaren Sie noch heute Ihren privaten Besichtigungstermin

und erleben Sie, was Luxus in Wien wirklich bedeutet.

Noch nichts gefunden? Wir informieren Sie über geeignete Immobilienangebote noch vor allen anderen.
Legen Sie jetzt Ihren individuellen Suchagenten unter folgendem Link an. Wir schicken Ihnen passende Immobilien exklusiv vorab zu.
Suchagent anlegen - https://fermoso-immobilientreuhand.service.immo/registrieren/de


Wir weisen darauf hin, dass zwischen dem Vermittler und dem zu vermittelnden Dritten ein familiäres oder wirtschaftliches Naheverhältnis besteht.

Infrastruktur / Entfernungen

Gesundheit
Arzt <500m
Apotheke <500m
Klinik <500m
Krankenhaus <500m

Kinder & Schulen
Schule <500m
Kindergarten <500m
Universität <1.000m
Höhere Schule <500m

Nahversorgung
Supermarkt <500m
Bäckerei <500m
Einkaufszentrum <1.000m

Sonstige
Geldautomat <500m
Bank <500m
Post <500m
Polizei <500m

Verkehr
Bus <500m
U-Bahn <500m
Straßenbahn <500m
Bahnhof <500m
Autobahnanschluss <3.000m

Angaben Entfernung Luftlinie / Quelle: OpenStreetMap

Eckdaten Objektnr. 6449

Art: Wohnung - Penthouse
Land: Österreich
Kaufpreis: 1.841.000,00
Betriebskosten: 471,00 €
Wohnfläche: 204,00 m²
Zimmer: 6
Bäder: 2
WC: 2
Terrassen: 2
Heizwärmebedarf:  B  39,99 kWh/m²a
Immobilie merken Exposé

Ausstattung

Parkett, Fußbodenheizung, Einbauküche, Personenaufzug, DV-Verkabelung, Kabel/Satelliten-TV


Immobilie anfragen


Ihre persönliche Beratung

Fermoso Immobilientreuhand GmbH

Ilksev Karakas

Fermoso Immobilientreuhand GmbH

T +43 664 19 13 188

H +43 664 19 13 188