# SQ - ZINSHAUS MIT ERHEBLICHEM LEERSTANDSANTEIL NAHE U4 U-BAHNSTATION

Zinshaus Renditeobjekt - Wohn- und Geschäftshaus, 1200 Wien


Die Liegenschaft befindet sich in sehr zentraler Lage des 20. Wiener Gemeindebezirks mit guter Infrastruktur. In der unmittelbaren Umgebung stehen Geschäfte des täglichen Bedarfs, Supermärkte, Apotheken, Schulen, Kindergärten sowie verschiedene Restaurants, Cafés und Bars zur Verfügung. Die öffentliche Verkehrsanbindung ist sehr gut: Die Straßenbahnlinie 5 sowie die U4-Station Friedensbrücke sind schnell erreichbar. Die Wiener Innenstadt ist in etwa 15 Minuten mit öffentlichen Verkehrsmitteln und in rund 10 Minuten mit dem Auto erreichbar.

Beschreibung der Immobilie

# SQ - ZINSHAUS MIT ERHEBLICHEM LEERSTANDSANTEIL NAHE U4 U-BAHNSTATION

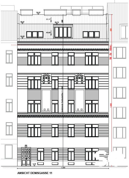
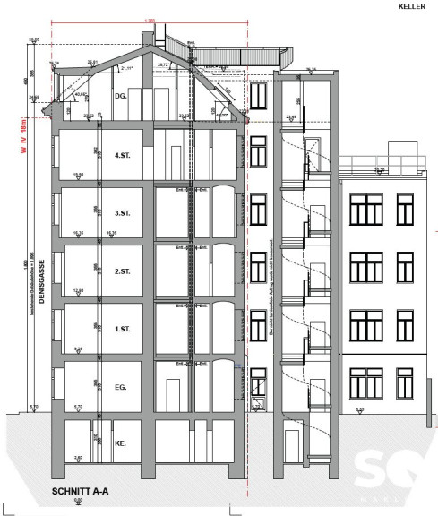
Zum Verkauf gelangt ein Zinshaus mit einem hohem Leerstand mit einem bereits ausgebauten Dachboden in sehr zentraler und ruhiger Lage des 20. Wiener Gemeinde bezirks. Dieses Zinshaus beinhaltet insgesamt 17 Wohnungen (15 Altbauwohnungen und 2 DG-Wohnungen) mit einer Wohnnutzfläche lt. Zinsliste von ca. 809 m². Derzeit befinden sich 5 Einheiten mit einer WNFL von ca. 238,31 m² (29 %) und einem durchschnittlichen Nettomieterlös von € 6 pro m² in einem unbefristeten Mietverhältnis. Alle weiteren Wohnungen sind bestandsfrei und befinden sich in einem gutem (vermietbaren) bis sanierungsbedürftigen Zustand. 





Eckdaten im Überblick:
 



  • Zinshaus mit hohem Leerstand in absoluter Ruhelage in 1200 Wien
  • 17 Wohneinheiten mit einem ausgebauten DG + Magazin im Keller
  • Wohnungsgrößen von ca. 35 m² bis ca. 70 m² ( 2-3 Zimmerwohnungen)
  • Schöne gegliederte Fassade
  • Wohnnutzfläche lt. Zinsliste: ca. 809,33 m²
  • Gesamtnutzfläche lt. Zinsliste: ca. 893,33 m²
  • Leerstand ca. 571,02 m² ( 70,6 %) + ca. 84 m² Magazin im Keller
  • Unbefristet: ca. 238,31 m² (29,4 %)
  • Sehr gute öffentliche Verkehrsanbindung
  • HMZ pro Jahr: derzeit ca. € 17.186,--


Kosten:



  • Kaufpreis: 2.190.000,--
  • Provision: 3% vom Kaufpreis zzgl. 20% Ust.


 



Haben wir Ihr Interesse geweckt? 



Dann kontaktieren Sie uns einfach via invest@stadtquartier.at oder unter der Telefonnummer: +43 1 796 15 58. 


Wir weisen darauf hin, dass zwischen dem Vermittler und dem zu vermittelnden Dritten ein familiäres oder wirtschaftliches Naheverhältnis besteht.


Der Vermittler ist als Doppelmakler tätig.

Infrastruktur / Entfernungen

Gesundheit
Arzt <500m
Apotheke <500m
Klinik <1.000m
Krankenhaus <1.500m

Kinder & Schulen
Schule <500m
Kindergarten <500m
Universität <500m
Höhere Schule <1.000m

Nahversorgung
Supermarkt <500m
Bäckerei <500m
Einkaufszentrum <1.500m

Sonstige
Geldautomat <500m
Bank <500m
Post <500m
Polizei <500m

Verkehr
Bus <500m
U-Bahn <500m
Straßenbahn <500m
Bahnhof <500m
Autobahnanschluss <1.500m

Angaben Entfernung Luftlinie / Quelle: OpenStreetMap

Eckdaten Objektnr. 20954

Art: Zinshaus Renditeobjekt - Wohn- und Geschäftshaus
Land: Österreich
Baujahr: 1900
Zustand: Projektiert
Alter: Altbau
Kaufpreis: 2.190.000,00
Kaufpreis / m²: 2.449,66 €
Provision: 3% des Kaufpreises zzgl. 20% USt.
Wohnfläche: 809,00 m²
Nutzfläche: 894,00 m²
Grundstücksfl.: 309,00 m²
Heizwärmebedarf:  D  109,70 kWh/m²a
fGEE: 1,87
Immobilie merken Exposé

Ausstattung

Gas, Etagenheizung


Immobilie anfragen


Ihre persönliche Beratung

STADTQUARTIER Home GmbH

STADTQUARTIER INVEST

STADTQUARTIER Real Estate Group

T +43 1 796 15 58

F +43 1 796 15 58 15