Mehrparteienhaus mit Donaupanorama – Rendite sichern und/oder selbst nutzen

Haus , 4382 Sarmingstein


Das Mehrparteienhaus befindet sich in Sarmingstein (Gemeinde St. Nikola an der Donau), mitten im Donaustru­dengau – einer der landschaftlich reizvollsten Regionen Oberösterreichs. Durch die erhöhte Situierung ergibt sich ein freier Blick auf die Donau und das umliegende Naturpanorama. Alle wesentlichen Einrichtungen befinden sich in kurzer Distanz: • Volksschule, Kindergarten, Nahversorger in St. Nikola bzw. Grein • Ärzte, Apotheke, Einkaufsmöglichkeiten in Grein • Bezirkshauptstadt Perg • Amstetten – mit Bahnanschluss Richtung Linz & Wien Die Lage verbindet Natur, Ruhe, Donaublick und gleichzeitig gute Verkehrsanbindung.

Beschreibung der Immobilie

Mehrparteienhaus mit Donaupanorama – Rendite sichern und/oder selbst nutzen

Dieses vielseitige Mehrparteienhaus besteht aus 3 vermieteten Wohneinheiten (ca. 231 m² Wohnfläche, bzw. ca. 404 m² Nutzfläche) sowie zusätzlichen Räumen mit weiterem Ausbaupotenzial (z. B. zusätzliche Wohnung im Dachgeschoss uvm.). Es eignet sich sowohl als Renditeobjekt, als auch für Eigennutzer, die Wohnen, Gewerbe und Vermieten kombinieren möchten. Die derzeitigen Mieteinnahmen belaufen sich auf etwa € 1.300,- pro Monat. Diese Einnahmen können durch Vermietung der Leerstände, Aus- und Umbaupotenzial etc. deutlich aufgebessert werden.



Das Gebäude wurde ursprünglich als Geschäftshaus errichtet und im Laufe der letzten Jahre in mehreren Etappen saniert. Die tragende Bauweise ist massiv, das Dachgeschoss und Teile des Innenbereichs wurden modernisiert. Die Immobilie befindet sich in gepflegtem Zustand. Die Beheizung erfolgt über eine Luftwärmepumpe (Bj. 2020) – damit bleiben die Betriebskosten niedrig und nachhaltige Energieversorgung ist gegeben. Ausbaureserve: Dachgeschoss (potenziell nutzbar)





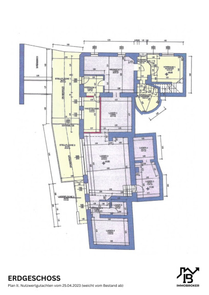
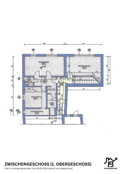
Raumaufteilung:




  • Top 1 im 1. OG (ca. 80 m²): Diele, Wohnküche, Schlafzimmer, Bad/WC, Wintergarten



  • Top 2 im Zwischengeschoss (ca. 61 m² + 30 m² Terrasse): Küche, Wohnzimmer, Schlafzimmer, Bad/WC



  • Top 3 ausbaubar im2. OG (ca. 60 m²): Diele, Küche, Bad/WC, Wohnzimmer, Schlafzimmer + Südbalkon (derzeit nicht so ausgeführt)



  • Top 4 im DG (ca. 30m²)



  • Top 5 im EG (ca. 144 m²): Vorraum, Werkstätte, Lager / Einstellraum (derzeit nicht genutzt)



  • Dachgeschoss ausbaubar






Außenbereich:




  • Südterrasse mit Donaublick



  • Überdachte Terrasse zum Bach/Wald






Die Immobilie bietet eine außergewöhnliche Kombination aus RenditeWohnqualität und Naturlage mit Donaublick.


Der Vermittler ist als Doppelmakler tätig.

Infrastruktur / Entfernungen

Gesundheit
Arzt <5.000m
Apotheke <6.500m

Kinder & Schulen
Schule <3.500m
Kindergarten <3.500m

Nahversorgung
Supermarkt <3.500m
Bäckerei <3.500m

Sonstige
Bank <5.000m
Geldautomat <5.000m
Post <3.500m
Polizei <7.000m

Verkehr
Bus <500m
Bahnhof <500m

Angaben Entfernung Luftlinie / Quelle: OpenStreetMap

Eckdaten Objektnr. 7834/264

Art: Haus
Land: Österreich
Baujahr: 1900
Zustand: Modernisiert
Alter: Altbau
Kaufpreis: 295.000,00
Provision: 3% des Kaufpreises zzgl. 20% USt.
Nutzfläche: 404,29 m²
Grundstücksfl.: 493,00 m²
Lagerfläche: 118,00 m²
Zimmer: 8
Terrassen: 2
Keller: 10,00 m²
Heizwärmebedarf:  E  140,60 kWh/m²a
fGEE:  C  1,63
Immobilie merken Exposé

Immobilie anfragen


Ihre persönliche Beratung

BL Immobroker GmbH

Ing. Michael Lindinger-Pesendorfer, BSc

LP Immobilien GmbH

T +43 732 29 99 27

H +43 676 81419652