gemütliche kompakte Wohnung mitten in Gunskirchen - neue Küche - sofort bezugsbereit

Wohnung , 4623 Gunskirchen , Raiffeisenplatz 3


Beschreibung der Immobilie

gemütliche kompakte Wohnung mitten in Gunskirchen - neue Küche - sofort bezugsbereit

Kompakte Wohnung im Herzen von Gunskirchen



Diese charmante Wohnung mit ca. 36 m² Wohnfläche liegt mitten im Zentrum von Gunskirchen und überzeugt durch ihre praktische Raumaufteilung sowie den gepflegten Zustand. Ideal für Singles oder Pendler/innen, die eine zentrale und zugleich leistbare Wohnlösung suchen.



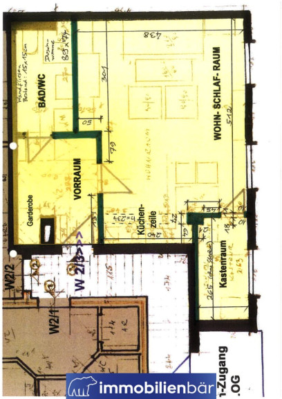
Raumaufteilung:




  • Vorraum



  • Badezimmer mit WC



  • Wohn- und Schlafbereich mit integrierter Küche



  • Separater Schrankraum




Die Wohnung wurde frisch ausgemalt und mit einer neuen, modernen Küche ausgestattet. Der offen gestaltete Wohn- und Schlafbereich schafft ein angenehmes Raumgefühl und bietet Platz für Wohnen, Schlafen und Kochen auf kompaktem Raum.



Durch die zentrale Lage sind Einkaufsmöglichkeiten, öffentliche Verkehrsmittel und Einrichtungen des täglichen Bedarfs bequem zu Fuß erreichbar.



Ein ideales Zuhause für alle, die Wert auf praktisches Wohnen mit kurzer Wegeführung legen.





Kosten:



Miete inkl. USt. € 449,88 

Betriebskosten inkl. USt. € 79,00

Heizkosten inkl. USt. € 33,12

Gesamtbelastung € 562,00



Kaution: 1686 €


Der Immobilienmakler erklärt, dass er – entgegen dem in der Immobilienwirtschaft üblichen Geschäftsgebrauch des Doppelmaklers – einseitig nur für den Vermieter tätig ist.

Infrastruktur / Entfernungen

Gesundheit
Arzt <150m
Apotheke <100m
Klinik <5.350m
Krankenhaus <7.575m

Kinder & Schulen
Schule <125m
Kindergarten <150m
Universität <6.950m

Nahversorgung
Supermarkt <200m
Bäckerei <75m
Einkaufszentrum <2.625m

Sonstige
Bank <75m
Geldautomat <125m
Post <100m
Polizei <125m

Verkehr
Bus <175m
Autobahnanschluss <3.550m
Bahnhof <300m
Flughafen <9.075m

Angaben Entfernung Luftlinie / Quelle: OpenStreetMap

Eckdaten Objektnr. 5753/516647889

Art: Wohnung
Land: Österreich
Baujahr: 1989
Zustand: Modernisiert
Alter: Neubau
Gesamtmiete: 562,00
Kaltmiete (netto): 408,98 €
Kaltmiete: 480,80 €
Provision: Gemäß Erstauftraggeberprinzip bezahlt der Abgeber die Provision.
Betriebskosten: 71,82 €
Heizkosten: 27,60 €
MwSt Gesamt: 53,60 €
Wohnfläche: 36,00 m²
Zimmer: 1
Bäder: 1
WC: 1
Heizwärmebedarf:  C  76,00 kWh/m²a
fGEE:  C  1,72
Immobilie merken Exposé

Immobilie anfragen


Ihre persönliche Beratung

Konzeptmühle GmbH - Immobilien Bär

Immobilien Bär - Stefan Artmayr

Konzeptmühle GmbH - Immobilien Bär

T +43 664 9253493

H stefan.artmayr@immobaer.at