#SQ - NÄHE U2 RATHAUS! 5-ZIMMER-ALTBAUWOHNUNG MIT BALKON

Wohnung , 1080 Wien


Die Wohnung befindet sich in ausgezeichneter Lage in unmittelbarer Nähe zum Rathaus. Öffentliche Verkehrsanbindung: Strassenbahn 2, Bus 13A, U2 Die Infrastruktur bietet Ihnen alles für den täglichen Bedarf. So erreichen Sie fußläufig in wenigen Minuten Supermärkte, Restaurants, Cafés, Schulen sowie das Theater in der Josefstadt.

Beschreibung der Immobilie

#SQ - NÄHE U2 RATHAUS! 5-ZIMMER-ALTBAUWOHNUNG MIT BALKON

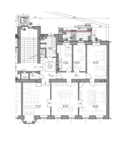
Zum Verkauf gelangt eine sehr schöne 5-Zimmer-Wohnung, ca. 164,47m² mit Balkon, ca. 11,30m².

Die Wohnung befindet sich im 2. Obergeschoß in einem schönen Gründerzeithaus mit gegliederter Fassade.

Das Gebäude wird demnächst umfassend saniert.



Folgende Arbeiten an den Allgemeinteilen werden durchgeführt und sind im Kaufpreis enthalten:



  • Sanierung der Straßen – und Hoffassade
  • Einbau eines Personenaufzugs
  • Sanierung des Stiegenhauses
  • Sanierung des Haustores und Hoftores
  • Sanierung/Begrünung Hof (Großteil ist nicht Allgemeinfläche)
  • Sanierung der Bleche
  • Sanierung der hofseitigen Fenster bzw. Herstellung der Balkontüren
  • Sanierung des Kellers (nur zum Teil Allgemeinfläche)
  • Sanierung des Stiegenhauses und Eingangsbereiches
  • Erneuerung des Daches (im Zuge des DG Ausbaus)
  • Erneuerung der Steigleitungsinfrastruktur, (Elektro, Wasser, Abwasser)
  • Herstellen einer Luftwärmepumpe zur Versorgung des gesamten Gebäudes (in der Variante 1. Zuleitung bis vor die Wohnungen – gilt auch für Wasser und Elektro neu)
  • Herstellen neuer Balkone gem. Baubewilligung


Die Bauarbeiten werden bis ca. Ende 2026 abgeschlossen sein.



Eckdaten im Überblick:



Gewichtete WNFL: ca. 170,12m²

Wohnfläche: ca. 164,47m² 

Balkon: ca. 11,30m²

Zimmer: 5

Küche: ja, komplett ausgestattet

Bad: 1

WC: 1

Abstellraum: 1



Video Link zur Wohnung: https://service.justimmo.at/media_api/private/orig/5GQ7iaJ7YArbwRgV8DO15N.mov/IMG_5251.mov


Raumaufteilung:
Vorraum

Wohnzimmer

4 Schlafzimmer

Küche, komplett ausgestattet

Bad mit Badewanne und Dusche

sep. WC

Balkon

Abstellraum



Ausstattung:
Parkettböden

Flügeltüren

Hohe Räumlichkeiten mit wunderschöner Stuckatur an den Decken



Kosten:
Kaufpreis: € 1.361.000,--

Provision: 3% vom KP zzgl. gesetzl. MwSt.



Es besteht die Möglichkeit die Wohnung gegen Aufpreis generalsaniert zu übernehmen.



Weitere Wohnungen stehen im Haus zum Verkauf! Gerne stehen wir Ihnen für nähere Informationen zur Verfügung.


Hinweis gemäß Energieausweisvorlagegesetz: Ein Energieausweis wurde vom Eigentümer bzw. Verkäufer, nach unserer Aufklärung über die generell geltende Vorlagepflicht, sowie Aufforderung zu seiner Erstellung noch nicht vorgelegt. Daher gilt zumindest eine dem Alter und der Art des Gebäudes entsprechende Gesamtenergieeffizienz als vereinbart. Wir übernehmen keinerlei Gewähr oder Haftung für die tatsächliche Energieeffizienz der angebotenen Immobilie.


Wir weisen darauf hin, dass zwischen dem Vermittler und dem zu vermittelnden Dritten ein familiäres oder wirtschaftliches Naheverhältnis besteht.


Der Vermittler ist als Doppelmakler tätig.

Infrastruktur / Entfernungen

Gesundheit
Arzt <500m
Apotheke <500m
Klinik <1.000m
Krankenhaus <1.000m

Kinder & Schulen
Schule <500m
Kindergarten <500m
Universität <500m
Höhere Schule <500m

Nahversorgung
Supermarkt <500m
Bäckerei <500m
Einkaufszentrum <1.000m

Sonstige
Geldautomat <500m
Bank <500m
Post <500m
Polizei <500m

Verkehr
Bus <500m
U-Bahn <500m
Straßenbahn <500m
Bahnhof <500m
Autobahnanschluss <4.000m

Angaben Entfernung Luftlinie / Quelle: OpenStreetMap

Eckdaten Objektnr. 20950

Art: Wohnung
Land: Österreich
Baujahr: 1900
Alter: Altbau
Kaufpreis: 1.361.000,00
Provision: 3% des Kaufpreises zzgl. 20% USt.
Wohnfläche: 164,47 m²
Zimmer: 5
Bäder: 1
WC: 1
Balkone: 1
Immobilie merken Exposé

Ausstattung

Parkett, Fliesen, Gas, Etagenheizung, Einbauküche, Personenaufzug, Badewanne, Dusche, Bad mit Fenster


Immobilie anfragen


Ihre persönliche Beratung

STADTQUARTIER Home GmbH

Mona Taghavi

STADTQUARTIER Real Estate Group

T +43650 2311113

H +43650 2311113