Traumhafte Doppelhaushälfte in Gampern – Ihr Erstbezug wartet!

Haus - Doppelhaushälfte, 4851 Witzling


Diese charmante Doppelhaushälfte in 4851 Gampernbietet Ihnen eine ideale Lage für Familie und Freizeit. Nur wenige Minuten von Vöcklabruck und Seewalchen entfernt, genießen Sie die Nähe zum Attersee mit seinen vielfältigen Freizeitmöglichkeiten. Die Infrastruktur ist hervorragend: Arzt, Apotheke, Schule und Kindergarten sind in der Nähe, ebenso wie Supermärkte, Bäckereien und Banken. Auch öffentliche Verkehrsanbindungen sowie Autobahnanschlüsse sind bequem erreichbar. Genießen Sie das Leben in dieser lebenswerten Umgebung!

Beschreibung der Immobilie

Traumhafte Doppelhaushälfte in Gampern – Ihr Erstbezug wartet!

Highlights:



-Traumhafte Lage

-moderne Bauweise

-exklusives Wohnen

-Top Wohnraumgefühl



Willkommen in Ihrem neuen Zuhause in Gampern, einer der malerischsten Regionen Oberösterreichs. Dieses charmante Doppelhaus bietet Ihnen nicht nur ein modernes Wohnerlebnis, sondern auch einen einzigartigen Lebensstil, der durch Natur, Komfort und Bequemlichkeit geprägt ist.



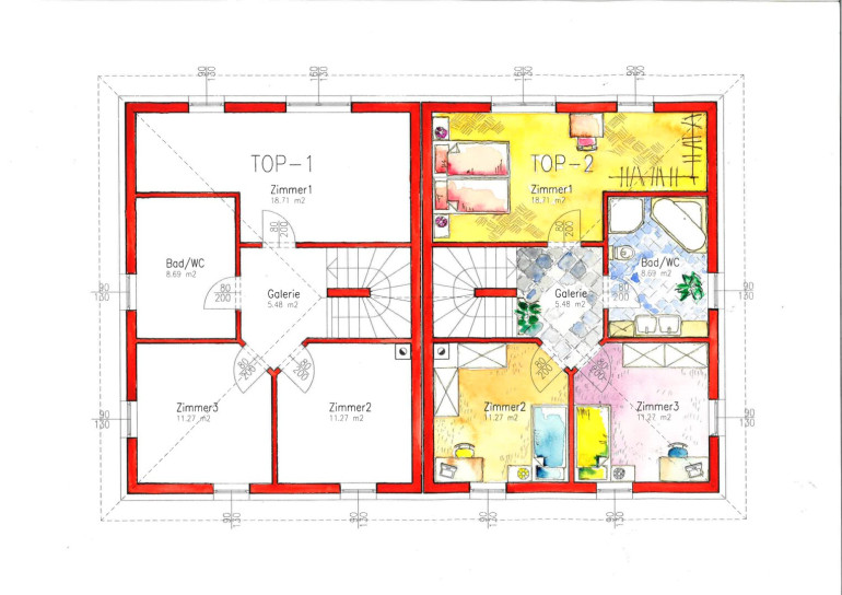
Mit einer großzügigen Wohnfläche von 120m² können Sie sich auf einen Erstbezug freuen, der keine Wünsche offen lässt. Das Objekt besticht durch eine durchdachte Raumaufteilung, die Ihnen viel Platz zur Entfaltung bietet. Der lichtdurchflutete Wohnbereich mit offener Küche lädt zum Verweilen und geselligen Zusammenkünften ein. Hier haben Sie die Möglichkeit, Ihre kulinarischen Fähigkeiten auszuleben und gleichzeitig den Ausblick auf den schönen See und die weitläufige Landschaft zu genießen.



Die Südterrasse ist der perfekte Ort, um die Sonnenstrahlen zu genießen und den Blick auf den See und die umliegenden Berge zu bewundern. Hier können Sie entspannen, den Tag ausklingen lassen oder einfach die Ruhe der Natur auf sich wirken lassen.



Zusätzlich zu den Wohnräumen bietet dieses Doppelhaus auch ein modernes Badezimmer mit einer Badewanne, in der Sie nach einem langen Tag entspannen können. Mit 330m2 Grundfläche können Sie sich Ihrer persönlichen Entfaltung widmen.



Die Lage dieser Immobilie ist ein weiterer großer Vorteil. Schörfling am Attersee bietet eine hervorragende Verkehrsanbindung, sodass Sie mit dem Bus bequem in die umliegenden Städte gelangen können. In unmittelbarer Nähe finden Sie zudem einen Supermarkt, der Ihnen die täglichen Besorgungen erleichtert.



Mit einem Kaufpreis von 389.900,00 € (Schlüsselfertigstellung optional möglich) ist dieses Objekt eine Investition in Ihr zukünftiges Wohlbefinden. Wenn Sie auf der Suche nach einem Ort sind, der Ihnen sowohl Ruhe als auch die Möglichkeit zur aktiven Freizeitgestaltung bietet, dann ist diese Immobilie genau das Richtige für Sie. Optional Garage bzw. Carport möglich.



Schlagen Sie zu und sichern Sie sich Ihr neues Zuhause in Gampern – ein Ort, an dem Lebensqualität großgeschrieben wird!





Wir freuen uns über Ihre unverbindliche Anfrage über die jeweilige Immobilienplattform oder einen Anruf über die oben angeführte Telefonnummer.




Wir möchten Sie informieren, dass ein Provisionsanspruch erst nach Unterzeichnung eines Miet- oder Kaufanbots besteht. Besichtigungen und Auskünfte sind selbstverständlich unverbindlich und kostenlos. Oben angeführte Angaben basieren auf Informationen und Unterlagen des Eigentümers und sind unsererseits ohne Gewähr. Widürfen gem. § 5 Maklergesetz darauf hinweisen, dass wir als Doppelmakler tätig sind und ein wirtschaftliches Naheverhältnis zu unserem Auftraggeber besteht


Wir weisen darauf hin, dass zwischen dem Vermittler und dem zu vermittelnden Dritten ein familiäres oder wirtschaftliches Naheverhältnis besteht.

Infrastruktur / Entfernungen

Gesundheit
Arzt <1.500m
Apotheke <5.000m
Klinik <4.500m
Krankenhaus <7.000m

Kinder & Schulen
Schule <1.000m
Kindergarten <1.000m
Höhere Schule <8.000m

Nahversorgung
Supermarkt <1.500m
Bäckerei <1.500m
Einkaufszentrum <9.500m

Sonstige
Bank <1.500m
Geldautomat <1.500m
Polizei <4.500m
Post <4.500m

Verkehr
Bus <500m
Bahnhof <3.000m
Autobahnanschluss <6.000m

Angaben Entfernung Luftlinie / Quelle: OpenStreetMap

Eckdaten Objektnr. 6352/2517

Art: Haus - Doppelhaushälfte
Land: Österreich
Baujahr: 2026
Zustand: Erstbezug
Alter: Neubau
Kaufpreis: 389.900,00
Wohnfläche: 120,00 m²
Grundstücksfl.: 330,00 m²
Zimmer: 6
Bäder: 1
WC: 2
Balkone: 1
Terrassen: 1
Heizwärmebedarf:  B  363,00 kWh/m²a
fGEE:  A  0,75
Immobilie merken Exposé

Ausstattung

Estrichboden, Fußbodenheizung, Bad mit Fenster, Badewanne, Dusche, Parkplatz


Immobilie anfragen


Ihre persönliche Beratung

AURELIUM REAL ESTATE GmbH

AURELIUM REAL ESTATE

AURELIUM REAL ESTATE GmbH

T +43 677 61510881

H +4367761616848