Geräumige Maisonette-Wohnung im Dachgeschoss in der Nähe von Schloss Schönbrunn

Wohnung - Dachgeschoß, 1140 Wien,Hietzing


Beschreibung der Immobilie

Geräumige Maisonette-Wohnung im Dachgeschoss in der Nähe von Schloss Schönbrunn

Diese elegante Maisonette-Wohnung erstreckt sich über die obersten Etagen eines Wohnhauses im 14. Wiener Bezirk – direkt gegenüber dem prachtvollen Schloss Schönbrunn.



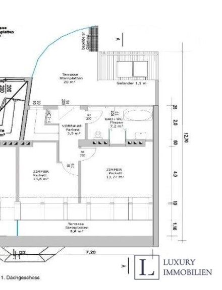
Mit einer Wohnfläche von rund 121 m² und zwei sonnigen Terrassen (insgesamt 28,6 m²) bietet sie ein großzügiges Raumgefühl und herrliche Ausblicke über die Stadt – perfekt für entspannte Stunden im Freien oder eine kleine grüne Oase mitten in Wien.



Die untere Ebene überzeugt mit einem offenen Wohn- und Essbereich samt Küche und Terrassenzugang, einem Schlafzimmer sowie einem modernen Bad mit Dusche und WC.

In der oberen Etage befinden sich zwei weitere Schlafzimmer, ein Badezimmer mit Badewanne und WC sowie die zweite Terrasse mit schönem Ausblick.



Beheizt wird die Wohnung umweltfreundlich über eine moderne Wärmepumpe, die für effiziente und nachhaltige Wärme sorgt.



Die Wohnung befindet sich in einem guten, jedoch renovierungsbedürftigen Zustand – eine Auffrischung oder kleinere Renovierungsarbeiten würden ihr neuen Glanz verleihen und ermöglichen, das Zuhause nach eigenem Geschmack zu gestalten.



Die allgemeinen Bereiche des Hauses, wie Stiegenhaus und Gänge, präsentieren sich gepflegt und in sehr gutem Zustand.



Die Lage ist ideal: nur wenige Schritte vom Schloss Schönbrunn und der U4 entfernt, mit schneller Verbindung ins Stadtzentrum. Einkaufsmöglichkeiten, Cafés und Grünanlagen sind ebenfalls bequem zu Fuß erreichbar.



Ein perfektes Zuhause für alle, die ruhiges Wohnen mit urbaner Lebensqualität verbinden möchten.

Infrastruktur / Entfernungen

Gesundheit
Arzt <500m
Apotheke <500m
Klinik <500m
Krankenhaus <2.000m

Kinder & Schulen
Schule <500m
Kindergarten <500m
Universität <500m
Höhere Schule <2.500m

Nahversorgung
Supermarkt <500m
Bäckerei <500m
Einkaufszentrum <1.500m

Sonstige
Geldautomat <500m
Bank <500m
Post <1.000m
Polizei <1.000m

Verkehr
Bus <500m
U-Bahn <500m
Straßenbahn <500m
Bahnhof <500m
Autobahnanschluss <4.000m

Angaben Entfernung Luftlinie / Quelle: OpenStreetMap

Eckdaten Objektnr. 1736

Art: Wohnung - Dachgeschoß
Land: Österreich
Alter: Altbau
Kaufpreis: 810.000,00
Provision: 29.160,00 € inkl. 20% USt.
Betriebskosten: 476,00 €
Wohnfläche: 121,00 m²
Zimmer: 4
Bäder: 2
WC: 2
Terrassen: 2
Heizwärmebedarf:  E  165,90 kWh/m²a
fGEE:  E  2,72
Immobilie merken Exposé

Immobilie anfragen


Ihre persönliche Beratung

Luxury Immobilien GmbH

Elena Shved

Luxury Immobilien GmbH

T +43 676 7731773

H +43 676 7731773