Wiener Erbe - Projekt Schulgasse 1180

Wohnung - Etage, 1180 Wien


Die Schulgasse liegt im Herzen des begehrten 18. Bezirks, in unmittelbarer Nähe zu Kutschkermarkt, Schubertpark und zahlreichen Einkaufsmöglichkeiten. Die Umgebung punktet mit erstklassiger Infrastruktur, familienfreundlichen Bildungseinrichtungen und einer exzellenten Verkehrsanbindung (Straßenbahnlinien 40, 41 und U6). Eine ideale Kombination aus urbanem Lebensgefühl und hoher Lebensqualität.

Beschreibung der Immobilie

Wiener Erbe - Projekt Schulgasse 1180

WIENER ERBE – Charmante Altbauwohnung mit modernem Komfort in der Schulgasse



Willkommen im Wiener Erbe – Projekt Schulgasse – einem stilvoll renovierten Altbau, der historischen Charme und modernen Wohnkomfort auf höchstem Niveau vereint. Hier erwartet Sie ein Zuhause, das Tradition und Innovation perfekt verbindet – mit durchdachten Grundrissen, nachhaltiger Technik und einer wunderschönen Atmosphäre zum Wohlfühlen.





HIGHLIGHTS:




  • Komplett renovierter Altbau mit hochwertiger Ausstattung



  • Effiziente Luftwärmepumpe und Fußbodenheizung 



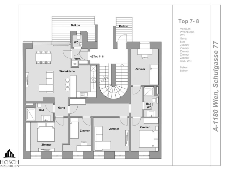
  • 121 m² Wohnfläche, 5 Zimmer, 2 Bäder, 2 WCs



  • 2 Balkone mit herrlichem Innenhof-Grünblick



  • Ruhige Lage in Währing mit Top-Infrastruktur und öffentlicher Anbindung






Diese traumhafte Wohnung in der Schulgasse liegt im 3. Stock eines sanierten Altbaugebäudes und beeindruckt mit ihrem durchdachten Grundriss und dem hellen, freundlichen Wohngefühl. Die Kombination aus liebevoll erhaltenem Altbau-Charme und modernen Details wie Parkett, eleganten Fliesen und hochwertiger Haustechnik macht diese Immobilie zu etwas ganz Besonderem.



Die effiziente Luftwärmepumpe in Kombination mit der Fußbodenheizung sorgt für ein nachhaltiges Heizsystem, das nicht nur umweltfreundlich, sondern auch kostensparend ist. So genießen Sie das ganze Jahr über ein angenehmes Raumklima. Auf dem Balkon können Sie die Ruhe der Umgebung und den Blick ins Grüne in vollen Zügen genießen – Ihr persönlicher Rückzugsort mitten in der Stadt.





DIE GEGENSTÄNDIGE WOHNUNG - 2 Balkone Highlight!



Kaufpreis: € 1.050.000,--

Wohnfläche: ca. 123,07 m²

Zimmer: 5

Stockwerk: 2. Stock

Baujahr: ca. 1900, renoviert: 2025



Diese (aktuell noch) zwei Wohnungen könnten auf Wunsch zusammengelegt werden zu einer großen Wohnung mit 2 Balkonen. Es gäbe eine Variante mit 4 und eine mit 5 Zimmern (siehe Pläne). 





Lage – Leben im grünen Herzen von Währing



Die Schulgasse liegt in einer der begehrtesten Wohngegenden des 18. Bezirks. Hier wohnen Sie ruhig und grün – und doch mitten im Leben. In unmittelbarer Nähe finden Sie alles, was Sie für den täglichen Bedarf benötigen: Supermärkte, Bäckereien, Apotheken, Ärzte, Kliniken, Schulen, Kindergärten und Universitäten. Auch ein Einkaufszentrum befindet sich in der Nähe.



Die Verkehrsanbindung ist hervorragend: Bus, U-Bahn, Straßenbahn und Bahnhof sind in wenigen Minuten erreichbar und verbinden Sie perfekt mit der ganzen Stadt. So sind Sie flexibel und schnell unterwegs – egal ob zur Arbeit, in die Innenstadt oder ins Grüne.





Erfolgshonorar: 3% vom Kaufpreis zzgl. 20% USt.



Herr Lucas Taufer steht Ihnen für alle Fragen und eine persönliche Besichtigung gerne zur Verfügung. Sie erreichen ihn unter 0660 7542528. Gerne wird er Ihnen auch bei einer passenden Finanzierung weiterhelfen!



Alle m² Angaben sind aktuell noch Richtwerte und die genaue Vermessung wird in den nächsten Wochen stattfinden.


Der Vermittler ist als Doppelmakler tätig.

Infrastruktur / Entfernungen

Gesundheit
Arzt <500m
Apotheke <500m
Klinik <500m
Krankenhaus <1.000m

Kinder & Schulen
Schule <500m
Kindergarten <500m
Universität <1.000m
Höhere Schule <500m

Nahversorgung
Supermarkt <500m
Bäckerei <500m
Einkaufszentrum <1.000m

Sonstige
Geldautomat <500m
Bank <500m
Post <500m
Polizei <500m

Verkehr
Bus <500m
U-Bahn <1.000m
Straßenbahn <500m
Bahnhof <1.000m
Autobahnanschluss <2.500m

Angaben Entfernung Luftlinie / Quelle: OpenStreetMap

Eckdaten Objektnr. 7398/11322720

Art: Wohnung - Etage
Land: Österreich
Baujahr: 2025
Kaufpreis: 1.050.000,00
Provision: 3% des Kaufpreises zzgl. 20% USt.
Wohnfläche: 123,07 m²
Zimmer: 5
Bäder: 2
WC: 2
Balkone: 2
Heizwärmebedarf:  B  37,10 kWh/m²a
fGEE:  A  0,74
Immobilie merken Exposé

Ausstattung

Fliesen, Parkett, Fußbodenheizung, Personenaufzug, Dusche


Immobilie anfragen


Ihre persönliche Beratung

Hösch Immobilien GmbH

Lucas Taufer

Hösch Immobilien GmbH

T +43 660 7542528