eine Villa wie Sie sie wollen !

Haus , 1190 Wien


Neustift am Walde, amerikanische Schule

Beschreibung der Immobilie

eine Villa wie Sie sie wollen !

Willkommen in 1190 Wien, einem der begehrtesten und beliebtesten Stadtteile Wiens! Hier befindet sich ein einmaliges Grundstück, auf dem ein Eigenheim mit 286m² Wohnfläche und 450m² Nutzfläche errichtet werden kann. Dieses traumhafte ca. 713m² große Grundstück hat großes Potential. Es besticht durch die großartige Lage direkt in Neustift am Walde, fußläufig zu den besten Heurigen der Stadt, umgeben vom Wienerwald und nicht weit von der amerikanischen Schule (10min zu Fuß) und zum Schwarzenbergpark. Nach Abriss und Rodung werden die Dimensionen noch viel besser erkennbar sein. 



Hier können Sie, als zukünftige Eigentümerüber, über vier Etagen ihre Wohnträume verwirklichen.



Ein Beispiel: Das Herzstück des Erdgeschosses ist zweifellos die geräumige Wohnküche, die eine beeindruckende Fläche von 50 m² umfasst. Dieser offene Bereich schafft eine einladende Atmosphäre und bietet ausreichend Platz für gemeinsame Mahlzeiten und gesellige Zusammenkünfte mit Familie und Freunden. Der Flur führt zu einem separaten WC, das praktisch für Gäste ist. Es gibt auch ein gemütliches Zimmer mit einer Fläche von 12m², dass sich perfekt als Schlafzimmer, Büro oder Hobbyraum eignet.



Angrenzend an die Wohnküche befindet sich die großzügige Terrasse (33,21 m²) mit Garten. der atemberaubende Garten, der eine großzügige Fläche von 465 m² umfasst. Hier haben Sie viel Platz, um Ihre grünen Daumenfähigkeiten zu entfalten oder einfach nur die Natur zu genießen. Der Garten bietet zahlreiche Möglichkeiten für Outdoor-Aktivitäten, Grillabende oder ruhige Momente der Entspannung. Außerdem besteht die Möglichkeit sich den Traum vom eigenen Pool zu erfüllen.



Im ersten Obergeschoss erwartet Sie eine Nutzfläche von 42 m². Es umfasst zwei komfortable Zimmer mit einer Größe von 12 m² und 18 m² die jeweils mit einem Bad en Suite ausgestattet sind. Am Flur befindet sich ebenfalls ein WC. Von beiden Zimmern gibt es einen Zugang zum Balkon. Hier können Sie auf 13.83 m² den Ausblick genießen und frische Luft schnappen.



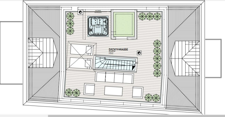
Im Dachgeschoss erwarten Sie drei weitere geräumige Zimmer. Das erste Zimmer hat eine Größe von 38 m², gefolgt von einem 22 m² großen Zimmer und einem 21 m² großen Zimmer. In der Mitte dieser Zimmer befindet sich ein großes Badezimmer mit einer Fläche von 10 m². Das Badezimmer ist bequem vom Flur aus zugänglich und bietet zusätzlichen Komfort und Privatsphäre. Über einen verglasten Flachdachaufstieg gelangt man auf eine 54,12 m² große Dachterrasse mit wunderschönem Weitblick.



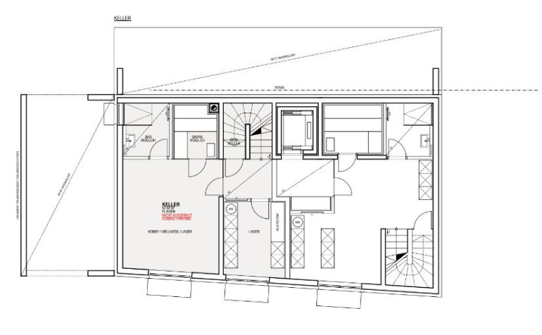
Ein geräumiger Keller mit einer Fläche von 52,92 m² bietet zusätzlichen Stauraum für Ihre Bedürfnisse. Hier gäbe es die Möglichkeit auf ein zusätzliches Bad, Sauna und einen Hobby- oder Wellnessraum.



Auf allen Ebenen dieser Familienvilla sorgen bodentiefe Fenster und Gaupen für eine Fülle an Tageslicht. Dadurch wird jeder Raum mit einer natürlichen Helligkeit durchflutet und schafft eine angenehme und einladende Atmosphäre.





Dieses Wohnhaus bietet eine erstklassige Ausstattung, die Ihren Wohnkomfort und Ihre Anforderungen erfüllt. Zu den Merkmalen gehören:



  • Ein Aufzug, der behindertenfreundlich ist und Ihnen einen barrierefreien Zugang zu allen Etagen ermöglicht
  • Die Bauausführung ist von hoher Qualität, mit einer Massivbauweise, Holz-Alu-Fenstern und Eichenparkettböden. Diese Materialien verleihen der Familienvilla ein anspruchsvolles und stilvolles Erscheinungsbild.
  • Zukunftsweisende Haustechnik wie Tiefenbohrungen und eine Wärmepumpe sorgen für eine effiziente und nachhaltige Energieversorgung. Dadurch werden die Heizkosten reduziert und ein umweltfreundliches Wohnen ermöglicht.
  • Eine geräumige Doppelgarage bietet Platz für bis zu 3 PKW und bietet zusätzlichen Stauraum für Fahrräder, Motorräder und andere persönliche Gegenstände. Dadurch haben Sie die Möglichkeit, Ihre Fahrzeuge sicher und bequem zu parken.


Diese Ausstattungsmerkmale tragen dazu bei, dass dieses Projekt nicht nur komfortabel, sondern auch funktional und zukunftsorientiert ist. Sie bieten Ihnen ein hohes Maß an Komfort und Bequemlichkeit in Ihrem täglichen Leben.



Wir freuen uns auf Ihre Anfrage per E-Mail an stagnet@expat-consulting.com oder telefonisch unter +43 660 703 84 64. Bitte beachten Sie: Die Eigentümer wünschen eine diskrete Abwicklung durch uns. Für unsere Angebote gelten unsere allgemeinen Geschäftsbedingungen. Alle Angaben stammen direkt vom Eigentümer, eine Haftung für deren Richtig- oder Vollständigkeit kann nicht übernommen werden. Wir weisen darauf hin, dass die Firma Expat Consulting GmbH kraft bestehenden Geschäftsgebrauch als Doppelmakler tätig ist (§5 Abs 3 Maklergesetz).



Bitte haben Sie dafür Verständnis, dass wir seit 13. Juni 2014 aufgrund einer neuen EU-Richtlinie (FAGG - Fern- und Auswärtsgeschäfte Gesetz) Detailinformationen, Besichtigungen sowie Zusendung von Exposés zu den angefragten Objekten erst dann umsetzen können, wenn Sie bestätigen, dass Sie unser sofortiges tätig werden wünschen und Sie über Ihre Rücktrittsrechte gemäß §11 FAGG von uns aufgeklärt wurden. Nachdem Sie uns Ihre Anfrage gesendet haben, erhalten Sie von uns alle wesentlichen Informationen per E-Mail. Gerne nehmen wir auch alle wesentlichen Unterlagen zur Erstbesichtigung mit oder erklären Ihnen die neuen Richtlinien persönlich.



Wir weisen darauf hin, dass auf Grund der Nachweispflicht gegenüber dem Eigentümer nur Anfragen mit Name und Telefonnummer bearbeitet werden können.






Infrastruktur / Entfernungen

Gesundheit
Arzt <1.500m
Apotheke <1.500m
Klinik <3.000m
Krankenhaus <3.000m

Kinder & Schulen
Schule <500m
Kindergarten <1.000m
Universität <3.500m
Höhere Schule <4.000m

Nahversorgung
Supermarkt <1.500m
Bäckerei <2.000m
Einkaufszentrum <4.000m

Sonstige
Geldautomat <2.500m
Bank <2.500m
Post <1.500m
Polizei <3.000m

Verkehr
Bus <500m
U-Bahn <4.000m
Straßenbahn <2.000m
Bahnhof <4.000m
Autobahnanschluss <5.500m

Angaben Entfernung Luftlinie / Quelle: OpenStreetMap

Eckdaten Objektnr. 27363

Art: Haus
Land: Österreich
Alter: Neubau
Kaufpreis: 4.400.000,00
Provision: 3% des Kaufpreises zzgl. 20% USt.
Wohnfläche: 286,00 m²
Nutzfläche: 450,00 m²
Grundstücksfl.: 713,00 m²
Zimmer: 8
Bäder: 3
WC: 5
Balkone: 1
Terrassen: 1
Stellplätze: 3
Garten: 415,00 m²
Immobilie merken Exposé

Ausstattung

Erdwärme, Fußbodenheizung, Personenaufzug, Südbalkon, Westbalkon, Badewanne, Dusche, Parkplatz, Swimmingpool, Wasch/Trockenraum


Immobilie anfragen


Ihre persönliche Beratung

EXPAT CONSULTING Real Estate & Relocation Services GmbH

Franz Eggenweber

EXPAT CONSULTING Real Estate & Relocation Services GmbH

T +43 1 328 8818-0

H +43 660 346 0418

F +43 1 328 8818-60