4-ZIMMER MAISONETTE MIT BALKON UND DACHTERASSE| PROVISIONSFREI

Wohnung , 1130 Wien,Hietzing


Beschreibung der Immobilie

4-ZIMMER MAISONETTE MIT BALKON UND DACHTERASSE| PROVISIONSFREI

4-ZIMMER MAISONETTE MIT BALKON UND DACHTERRASSE! PROVISIONSFREI!

Beschreibung
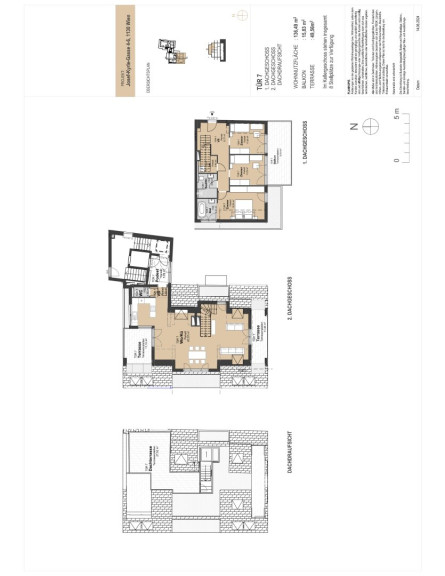
Diese außergewöhnliche Maisonette-Wohnung mitten im Grünen erstreckt sich über zwei Ebenen und bietet vier großzügige Zimmer, große Fensterfronten, mehrere Balkone sowie eine weitläufige Dachterrasse mit herrlichem Ausblick – ein Ort zum Entspannen, Genießen und Verweilen.

In der ersten Ebene (1. Dachgeschoss) befindet sich das ruhig gelegene Master Bedroom mit eigenem Bad (en suite) sowie zwei weitere Zimmer, die sich ideal als Kinder-, Gäste- oder Arbeitszimmer eignen. Alle drei Räume verfügen über einen eigenen Balkon und schaffen durch die klare Trennung von Wohn- und Schlafbereich ein Höchstmaß an Privatsphäre und Ruhe.

Über eine elegante Treppe gelangt man in den offen gestalteten Wohn- und Essbereich im zweiten Dachgeschoss. Hier sorgen großzügige Fensterflächen für ein helles, luftiges Ambiente und einen fließenden Übergang zum Balkon. Die moderne, offene Küche fügt sich harmonisch in den Raum ein und kann ganz nach Ihren individuellen Vorstellungen gestaltet werden – perfekt für alle, die gerne kochen und Gäste empfangen.

Die klar strukturierte Raumaufteilung ermöglicht kurze Wege und eine optimale Nutzung der Wohnfläche – ideal für Paare und Familien, die Wert auf Stil, Komfort und ein harmonisches Wohngefühl legen.

Ausstattung
- Zentralheizungsanlage mit Fußbodenheizung
- Warmwasseraufbereitung mit Luftwärmepumpe
- Hochwertige Allu-Kunststofffenster
- Smart Home System
- Vollklimatisierte Räume
- Echtholz-Parkettböden in allen Wohn- und Schlafräumen
- Exklusive Sanitärausstattung von Laufen PRO S und Hans Grohe Essence
- PV-Anlagen

Lage
Die Josef-Kyrle-Gasse bietet eine ideale Kombination aus Ruhe, Natur und städtischem Komfort. In der Nähe finden Sie Kindergärten, Schulen, Arztpraxen, Spielplätze und Sportanlagen. Der Lainzer Tiergarten, der Hörndlwald und der Rote Berg laden zu Spaziergängen und sportlichen Aktivitäten ein. Geschäfte, Restaurants und öffentliche Verkehrsmittel sind bequem zu Fuß erreichbar. Für Freizeit und Erholung sorgen außerdem das Hietzinger Bad und das Schönbrunner Bad – beliebte Treffpunkte, besonders in den Sommermonaten. In der Josef-Kyrle-Gasse genießen Sie das Beste aus zwei Welten: ein naturnahes Familienleben und zugleich eine schnelle Anbindung an die Wiener Innenstadt.

Infrastruktur
- Schnellbahn S80 von Wien Hütteldorf bis Wien Aspern Nord <500m
- Straßenbahnlinie 62 von Lainz bis Matthäusgasse <200
- Straßenbahnlinie 60 von Rodaun bis Westbahnhof <600m
- diverse Buslinien in unmittelbarer Nähe
- U-Bahn <2500m
- Autobahnanschluss <3500m

Verfügbarkeit und Hinweise
Das Objekt befindet sich derzeit in der fortgeschrittenen Phase des Innenausbaus.
Die Fertigstellung ist voraussichtlich im 1. Quartal 2026 vorgesehen.

Kaufpreis EUR 1.499.000,-
PROVISIONSFREI für den Käufer!

Wir weisen darauf hin, dass zwischen dem Vermittler und dem zu vermittelnden Dritten ein familiäres oder wirtschaftliches Naheverhältnis besteht. Der Vermittler ist als Doppelmakler tätig.

Infrastruktur / Entfernungen

Gesundheit
Arzt <500m
Apotheke <1.000m
Klinik <500m
Krankenhaus <500m

Kinder & Schulen
Schule <500m
Kindergarten <500m
Universität <2.000m
Höhere Schule <4.500m

Nahversorgung
Supermarkt <500m
Bäckerei <500m
Einkaufszentrum <3.500m

Sonstige
Geldautomat <500m
Bank <500m
Post <500m
Polizei <1.000m

Verkehr
Bus <500m
Straßenbahn <500m
U-Bahn <2.500m
Bahnhof <500m
Autobahnanschluss <3.500m

Angaben Entfernung Luftlinie / Quelle: OpenStreetMap

Eckdaten Objektnr. 1609/46506

Art: Wohnung
Land: Österreich
Baujahr: 2025
Zustand: Erstbezug
Alter: Neubau
Kaufpreis: 1.499.000,00
Wohnfläche: 136,49 m²
Zimmer: 4
Bäder: 2
WC: 2
Balkone: 1
Terrassen: 1
Heizwärmebedarf:  B  28,40 kWh/m²a
fGEE:  A  0,72
Immobilie merken Exposé

Ausstattung

Zentralheizung, Personenaufzug, Kabel/Satelliten-TV


Immobilie anfragen


Ihre persönliche Beratung

RE/MAX First - REM Immobilienmakler Gmbh & Co KG

Karin Prosenik-Resch

RE/MAX First - REM Immobilienmakler Gmbh & Co KG

T +43 1 997 1000

H +43 699 151 151 01