Altbau trifft Moderne – Wohnen über den Dächern

Wohnung - Dachgeschoß, 1040 Wien


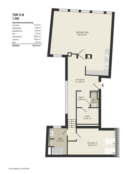
Beschreibung der Immobilie

Altbau trifft Moderne – Wohnen über den Dächern

Dachgeschoss-Wohnen im Palais – kompakt und elegant

Klare Struktur, offenes Wohnen



Diese Wohnung im Dachgeschoss eines historischen Palais verbindet funktionale Grundrisse mit zeitgemäßer Ausstattung. Im Zentrum steht die großzügige Wohnküche, die durch ihre offene Gestaltung viel Raum für Wohnen und Essen bietet. Parkettboden, moderne Küche und große Fensterflächen schaffen eine helle, angenehme Atmosphäre.



Private Rückzugsräume



Neben dem Wohnsalon bietet die Wohnung ein Schlafzimmer, das sich ruhig zur Rückseite orientiert. Ergänzt wird der Grundriss durch ein Badezimmer mit Glasdusche, ein separates WC, eine Garderobe sowie einen praktischen Abstellraum – kompakt organisiert und durchdacht auf einer Ebene.



Historisches Ambiente, moderne Infrastruktur



Das Palais selbst empfängt mit repräsentativem Entrée, Feststiege und Lift. So verbindet sich das architektonische Erbe der Gründerzeit mit der Bequemlichkeit moderner Wohnstandards.



Lage mit Qualität



Die Schwindgasse liegt im Botschaftsviertel, einem der exklusivsten Stadtteile Wiens. Hier treffen historische Palais auf internationale Institutionen, ruhige Wohnqualität auf urbane Vielfalt. In Gehweite befinden sich Karlskirche, Belvedere und Wiener Innenstadt. Cafés, Restaurants und Kulturangebote prägen das elegante Umfeld, die Anbindung an U-Bahn, Straßenbahn und Bus ist optimal.



Ein Zuhause mit Stil



Top 8 in Stiege 2 ist die ideale Stadtwohnung: übersichtlich, modern und eingebettet in ein historisches Palais. Perfekt für Eigennutzer, die die zentrale Lage und den komfortablen Schnitt schätzen – ebenso wie für Investoren, die ein werthaltiges Objekt in bester Lage suchen.


Wir weisen darauf hin, dass zwischen dem Vermittler und dem zu vermittelnden Dritten ein familiäres oder wirtschaftliches Naheverhältnis besteht.


Der Vermittler ist als Doppelmakler tätig.

Infrastruktur / Entfernungen

Gesundheit
Arzt <500m
Apotheke <500m
Klinik <500m
Krankenhaus <1.500m

Kinder & Schulen
Schule <500m
Kindergarten <500m
Universität <500m
Höhere Schule <500m

Nahversorgung
Supermarkt <500m
Bäckerei <500m
Einkaufszentrum <1.000m

Sonstige
Geldautomat <500m
Bank <500m
Post <500m
Polizei <500m

Verkehr
Bus <500m
U-Bahn <500m
Straßenbahn <500m
Bahnhof <500m
Autobahnanschluss <3.000m

Angaben Entfernung Luftlinie / Quelle: OpenStreetMap

Eckdaten Objektnr. 1609/46432

Art: Wohnung - Dachgeschoß
Land: Österreich
Baujahr: 1873
Zustand: Neuwertig
Alter: Altbau
Kaufpreis: 1.200.000,00
Provision: 3% des Kaufpreises zzgl. 20% USt.
Betriebskosten: 351,58 €
Heizkosten: 69,22 €
Wohnfläche: 109,78 m²
Zimmer: 2,50
Bäder: 1
WC: 1
Heizwärmebedarf:  C  91,90 kWh/m²a
fGEE:  C  1,64
Immobilie merken Exposé

Ausstattung

Personenaufzug, Kabel/Satelliten-TV


Immobilie anfragen


Ihre persönliche Beratung

RE/MAX First - REM Immobilienmakler GmbH & Co KG

Norbert Galfusz

RE/MAX First - REM Immobilienmakler Gmbh & Co KG

H +43 664 138 2089