Erstbezug: Großzügiger Familientraum mit unverbaubarem Grünblick!

Haus - Reihenhaus, 3434 Tulbing


Beschreibung der Immobilie

Erstbezug: Großzügiger Familientraum mit unverbaubarem Grünblick!

Objektübersicht

Inmitten der charmanten Gemeinde Wilfersdorf bei Tulbing (Bezirk Tulln) wartet ein ganz besonderes Zuhause auf seine neuen Bewohner: ein modernes und sehr großzügiges Einfamilienhaus mit klarer Formensprache, lichtdurchfluteten Räumen und einem Hauch von Luxus, der den Alltag besonders macht.

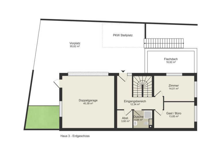
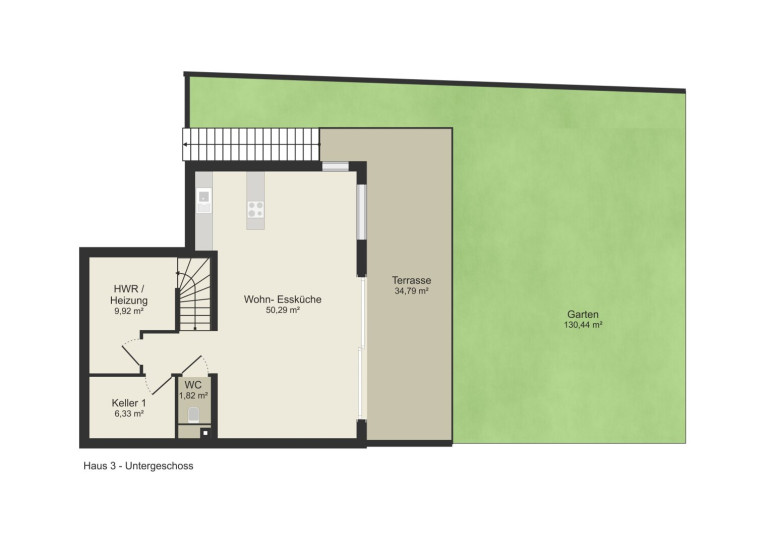
Auf ca. 175 m² Wohnfläche, verteilt auf drei Ebenen und fünf Zimmer (davon 4 Schlafzimmer, oder 3 Schlafzimmer und ein Arbeitsraum), entfaltet sich ein Lebensraum, der nicht nur großzügig, sondern auch stilvoll gestaltet ist. Aktuell wird das Haus belagsfertig übergeben und bietet viele Möglichkeiten individueller Gestaltung. Das 2023-2024 errichtete Haus begeistert mit einem durchdachten Raumkonzept, hochwertigen Materialien und einem eleganten, zeitgemäßen Design sowie einen unverbaubaren Fernblick auf das hügelige Grün des Wienerwalds.

Im Untergeschoss bildet der offene Wohn- und Essbereich mit moderner Küche das Herzstück des Hauses – mit direktem Zugang zur Terrasse und dem anschließenden, begrünten Garten, der zu jeder Tageszeit zum Verweilen einlädt. Zwei ruhige Schlafzimmer sowie ein stilvolles Duschbad mit WC befinden sich im Erdgeschoss – ideal für Gäste, Kinder oder Homeoffice.

Das Highlight des Hauses: ein großzügiger Master-Bedroom im Obergeschoss, der nicht nur mit Weitblick begeistert, sondern auch die Möglichkeit eines offenen Badezimmers mit freistehender Badewanne bietet – ein Ort des Rückzugs; zum Aufatmen, Genießen und Träumen. Von hier führt der Weg direkt auf eine große Südterrasse mit unverbaubarem Blick auf den Wienerwald – ein Luxus, den man spürt, sobald man die Tür öffnet. (Achtung: Wem dieses Schlafzimmer zu groß ist, -> es besteht die Möglichkeit, daraus zwei Räume zu machen, die immer noch großzügig bemessen sind.)

Ein Gäste-WC, kluge Stauraumlösungen sowie eine Doppelgarage mit direktem Zugang zum Haus und ein zusätzlicher Abstellplatz machen das Gesamtpaket komplett. Ein Zuhause, das Komfort, Ästhetik und Geborgenheit meisterhaft vereint.

Ein NÖ Landeskindergarten befindet sich einige Fußminuten weiter im Ort; die Volksschule ist in Tulbing.
Mit dem Auto sind Sie in 30 Minuten beim P&R Hütteldorf; öffentlich erreichen Sie mit Wien mit der Bahn (Tullnerfelder Bahnhof nach Meidling/Westbahnhof/Hauptbahnhof oder Tulln in Richtung Heiligenstadt/Franz-Josef-Bahnhof etc.)

💶 Kaufpreis: EUR 649.000,--
https://www.remax.at/index.php?page=objekt&t=2&srid=32965693&s=1&id=341083&p=3&lang=de

Wir weisen darauf hin, dass zwischen dem Vermittler und dem zu vermittelnden Dritten ein familiäres oder wirtschaftliches Naheverhältnis besteht.


Der Vermittler ist als Doppelmakler tätig.

Infrastruktur / Entfernungen

Gesundheit
Arzt <4.500m
Apotheke <6.000m
Klinik <7.000m
Krankenhaus <6.000m

Kinder & Schulen
Kindergarten <2.500m
Schule <2.000m
Universität <5.500m
Höhere Schule <6.000m

Nahversorgung
Supermarkt <1.000m
Bäckerei <5.000m
Einkaufszentrum <7.000m

Sonstige
Bank <6.000m
Geldautomat <2.000m
Post <2.500m
Polizei <4.500m

Verkehr
Bus <500m
Bahnhof <6.000m
Autobahnanschluss <10.000m
Flughafen <6.000m

Angaben Entfernung Luftlinie / Quelle: OpenStreetMap

Eckdaten Objektnr. 1609/46270

Art: Haus - Reihenhaus
Land: Österreich
Zustand: Erstbezug
Kaufpreis: 649.000,00
Provision: 3% des Kaufpreises zzgl. 20% USt.
Wohnfläche: 175,00 m²
Nutzfläche: 175,00 m²
Grundstücksfl.: 470,00 m²
Zimmer: 5
Bäder: 2
WC: 3
Balkone: 1
Terrassen: 1
Stellplätze: 1
Keller: 15,00 m²
Heizwärmebedarf:  B  25,00 kWh/m²a
fGEE:  A+  0,60
Immobilie merken Exposé

Ausstattung

Zentralheizung


Immobilie anfragen


Ihre persönliche Beratung

RE/MAX First - REM Immobilienmakler GmbH & Co KG

Dr. Brigitte Molnar

RE/MAX First - REM Immobilienmakler Gmbh & Co KG

H +43 676 301 26 16