Renoviertes Altbaubüro | repräsentative Adresse und Räumlichkeiten | sensationelle Lage Am Heumarkt

Büro / Praxis , 1030 Wien,Landstraße , Am Heumarkt 17


Beschreibung der Immobilie

Renoviertes Altbaubüro | repräsentative Adresse und Räumlichkeiten | sensationelle Lage Am Heumarkt

Renoviertes Büro mit hellem ausgebautem Keller und reizendem Innenhof in Toplage am Heumarkt!





Nach umfangreicher Renovierung gelangen diese wunderschönen Büro- bzw. Geschäftsräumlichkeiten in Toplage, Am Heumarkt 17 zur Vermietung – das Objekt zeichnet sich durch die Lage, Ausstattung und interessante Verwendungsmöglichkeiten aus.



Im EG findet man großzügige Büroräumlichkeiten, sowie Küche und WCs und einen Empfangsbereich – über eine innen liegende Stiege erreicht man den ausgebauten und mittels Fußboden beheizten geräumigen Keller, der zB als Ausstellungsfläche oder für Präsentationen dienen kann. Diese Immobilie ist unter anderem für Architekten, Photographen, Design Studios und ähnliche Unternehmen - die Platz und eine Ausstellungsfläche mit Tageslicht benötigen - sehr interessant. Der ehemalige Mieter war eine IT Firma, die diese besonderen Räumlichkeiten zu schätzen wussten! Ein schöner Innenhof lädt zu Pausen und zum Verweilen ein!





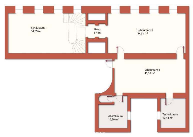
RAUMAUFTEILUNG:



Vorraum mit Marmorboden 19m²

WCs 4,5m²

Küche 8,5m²

Gang / Vorraum mit Marmorboden 16m²

Masterbüro mit Parkettboden 28m²

Büro 1 & 2 mit Parkettboden 26m² bzw. 14m²



Summe EG: ca. 116m²





Raum 1 55m²

Raum 2 55m²

Raum 3 45m²

Lager 16m²

Technik 12m²

Gang 5m²



Summe Ausstellungsfläche: ca. 188m²





TOP FEATURES:



-) hochwertige Parkettböden / Marmorböden

-) Fußbodenheizung mit Ziegelfußboden in der Ausstellungsfläche

-) Gegensprechanlage / Alarmanlage

-) Möglichkeit der Anbringung eines Firmenschriftzugs/ -logo am Haus







Die monatlichen Kosten teilen sich wie folgt auf:



Netto Miete, inkl. netto BK: 3.200 EUR pro Monat





Eine gute Anbindung an den öffentlichen Verkehr ist mit der U4 Stadtpark gegeben, die man in 3min fußläufig erreicht; ebenso in Gehweite ist die Station Landstraße mit Anschluß an U3/U4 sowie Schnellbahn und CAT Richtung Flughafen; in 5min erreichen sie die Ringstraße und in weiteren 5min. die Einkaufsmöglichkeiten in der Kärntner Strasse. Zahlreiche Supermärkte, Banken, Post, Apotheke sind ebenfalls fußläufig erreichbar.


Wir weisen darauf hin, dass zwischen dem Vermittler und dem zu vermittelnden Dritten ein familiäres oder wirtschaftliches Naheverhältnis besteht.


Der Vermittler ist als Doppelmakler tätig.

Infrastruktur / Entfernungen

Gesundheit
Arzt <200m
Apotheke <350m
Klinik <250m
Krankenhaus <625m

Kinder & Schulen
Schule <250m
Kindergarten <350m
Universität <450m
Höhere Schule <575m

Nahversorgung
Supermarkt <100m
Bäckerei <350m
Einkaufszentrum <575m

Sonstige
Geldautomat <300m
Bank <300m
Post <325m
Polizei <175m

Verkehr
Bus <50m
U-Bahn <150m
Straßenbahn <350m
Bahnhof <150m
Autobahnanschluss <2.525m

Angaben Entfernung Luftlinie / Quelle: OpenStreetMap

Eckdaten Objektnr. 1609/42483

Art: Büro / Praxis
Land: Österreich
Baujahr: 1894
Zustand: Erstbezug
Alter: Altbau
Kaltmiete (netto): 2.502,16 €
Kaltmiete: 3.200,00 €
Provision: 3 Bruttomonatsmieten
Betriebskosten: 697,84 €
MwSt Gesamt: 640,00 €
Nutzfläche: 310,00 m²
Zimmer: 6
WC: 2
Terrassen: 1
Keller: 10,00 m²
Heizwärmebedarf:  D  122,60 kWh/m²a
fGEE:  C  1,72
Immobilie merken Exposé

Ausstattung

Parkett, Gas, Etagenheizung, Alarmanlage, Teeküche


Immobilie anfragen


Ihre persönliche Beratung

RE/MAX First - REM Immobilienmakler GmbH & Co KG

Mag. Georg Mayer

RE/MAX First - REM Immobilienmakler Gmbh & Co KG

T +43 1 997 1000

H +43 660 122 58 00