Landhausfeeling in der Stadt - Ein Haus mit vielen Möglichkeiten!!!

Haus - Einfamilienhaus, 1130 Wien , Jenbachgasse


Beschreibung der Immobilie

Landhausfeeling in der Stadt - Ein Haus mit vielen Möglichkeiten!!!

Landhausfeeling in der Stadt - Ein Haus mit vielen Möglichkeiten!



Am Rande der Stadt, beim Lainzer Tiergarten, hier spürt man die Natur und die Jahreszeiten. Und wenn man will, ist man in 30-40 Minuten im Zentrum. Die perfekte Symbiose für Menschen, die ruhig, im Grünen wohnen wollen, aber doch nicht auf’s Land ziehen wollen!

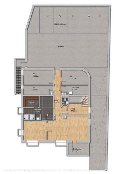
Ein großes, gepflegtes Haus mit vielfältigen Nutzungsmöglichkeiten! Auf einer Nutzfläche von ca. 700m² bietet es Raum für Familienleben, Arbeiten und kreativer Entfaltung. 



-    12 Zimmer

-    6 Bädern

-    6 WC's 

-    Sauna

-    Garage für 5-6 PKWs

-    Große (65m²) große Terrasse

-    Gepflegter Garten

-    Solaranlage für die Warmwasseraufbereitung

-    Fußbodenheizung



All das macht es zum idealen Ort für Mehrgenerationen-Wohnen - oder für die Kombination aus Privatleben und beruflicher Nutzung. 



Lage & Umgebung



Die Immobilie liegt in einer ruhigen Seitengasse im grünen Westen Wiens - ein Rückzugsort, nur Minuten vom Lainzer Tiergarten und dem Hörndlwald entfernt. Spaziergänge, Sport und Erholung beginnen direkt vor der Tür.



Gleichzeitig sind alle wichtigen Einrichtungen des täglichen Bedarfs, wie Schulen, Kindergärten, Einkaufsmöglichkeiten und Ärzte (auch das Krankenhaus Hietzing ist ganz in der Nähe) in unmittelbarer Umgebung.

Supermarkt: 700m

Die Anbindung an den öffentlichen Nahverkehr: Busline 56B fußläufig erreichbar.



Information
Wir ersuchen Sie um Verständnis, dass wir von Ihnen vor der Zusendung des Exposés die Bestätigung des sofortigen Tätigwerdens sowie die Aufklärung des Rücktrittsrechtes gemäß FAGG (Fern- und Auswärtsgeschäfte-Gesetz) benötigen. 




Die Angaben beruhen auf Informationen der Eigentümerin und/oder Dritter und sind daher ohne Gewähr. Änderungen vorbehalten!




Der Vermittler ist als Doppelmakler tätig.

Infrastruktur / Entfernungen

Gesundheit
Arzt <1.000m
Apotheke <1.000m
Klinik <1.250m
Krankenhaus <1.250m

Kinder & Schulen
Schule <1.000m
Kindergarten <1.250m
Universität <2.000m
Höhere Schule <5.750m

Nahversorgung
Supermarkt <1.000m
Bäckerei <1.250m
Einkaufszentrum <3.750m

Sonstige
Geldautomat <1.000m
Bank <1.000m
Post <2.000m
Polizei <2.000m

Verkehr
Bus <250m
U-Bahn <3.000m
Straßenbahn <1.500m
Bahnhof <2.000m
Autobahnanschluss <4.750m

Angaben Entfernung Luftlinie / Quelle: OpenStreetMap

Eckdaten Objektnr. 1609/46565

Art: Haus - Einfamilienhaus
Land: Österreich
Baujahr: 2007
Zustand: Gepflegt
Kaufpreis: 1.990.000,00
Provision: 3% des Kaufpreises zzgl. 20% USt.
Wohnfläche: 405,00 m²
Nutzfläche: 700,00 m²
Grundstücksfl.: 766,00 m²
Zimmer: 12
Bäder: 6
WC: 6
Terrassen: 1
Keller: 145,00 m²
Heizwärmebedarf:  C  59,00 kWh/m²a
fGEE:  B  0,90
Immobilie merken Exposé

Ausstattung

Gas, Fußbodenheizung, Kamin, Zentralheizung, Kabel/Satelliten-TV, Garage, Sauna


Immobilie anfragen


Ihre persönliche Beratung

Mag. Ursula Rapottnig Immobilien

Mag. Ursula Rapottnig

RE/MAX First - REM Immobilienmakler Gmbh & Co KG

H +43 664 151 30 55