TOP LAGE SUCHT NEUEN GLANZ! Sanierungsbedürftige 2 Zimmer Wohnung

Wohnung - Dachgeschoß, 1130 Wien


Beschreibung der Immobilie

TOP LAGE SUCHT NEUEN GLANZ! Sanierungsbedürftige 2 Zimmer Wohnung

TOP LAGE SUCHT NEUEN GLANZ!



In einer der begehrtesten Wohngegenden des 13. Wiener Bezirks wartet diese charmante Dachgeschosswohnung auf eine liebevolle Sanierung. Die Wohnung befindet sich in der Nähe des Hackinger Schlossparks, einer ruhigen und zugleich zentral gelegenen Straße in Hietzing, umgeben von historischen Villen und viel Grün.



Mit einer Wohnfläche von ca. 55m² bietet diese gut geschnittene Wohnung eine ideale Grundlage für die Umsetzung Ihrer Wohnträume. Die lichtdurchfluteten Räume und die vorteilhafte Aufteilung lassen viel Spielraum für individuelle Gestaltungsmöglichkeiten.



Die Wohnung benötigt eine Renovierung, um wieder im neuen Glanz zu erstrahlen. Für kreative Köpfe und handwerklich Begabte ist dies die perfekte Gelegenheit, eine Immobilie in Bestlage nach eigenen Vorstellungen zu gestalten.



Die Umgebung bietet eine hervorragende Infrastruktur und Anbindung an öffentliche Verkehrsmittel. Einkaufsmöglichkeiten, Schulen, Kindergärten sowie zahlreiche Freizeitmöglichkeiten befinden sich in unmittelbarer Nähe. Der nahegelegene Lainzer Tiergarten und der Schönbrunner Schlosspark laden zu entspannenden Spaziergängen und sportlichen Aktivitäten ein.



Nutzen Sie diese seltene Gelegenheit und verleihen Sie dieser Wohnung neuen Glanz in einer der besten Lagen Wiens!



ECKDATEN:

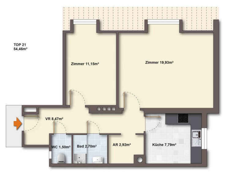
Wohnfläche: ca. 55m²

RAUMPROGRAMM

Wohnzimmer 19,93m², Schlafzimmer 11,15m², Küche 7,79m², Vorzimmer 8,47m², Bad 2,70m², AR 2,92m², WC 1,50m²

Stockwerk: Dachgeschoss OHNE LIFT

Zustand: Sanierungsbedürftig

Lage: Ruhige und zentrale Lage in Hietzing

Lage/Infrastruktur: das Gebäude befindet sich in einer ruhigen Einbahnstraße. Durch die zentrale Lage sind in wenigen Gehminuten zahlreiche Einkaufsmöglichkeiten für den täglichen Bedarf, Geschäfte sowie Restaurants sehr gut erreichbar.



Öffentliche Verkehrsmittel: nach ca. 3 Fahrminuten mit der Buslinie 53A erreichen Sie den Bahnhof Hütteldorf (U4, Eisenbahn, div. Buslinien);





Wir bitten Sie um Verständnis, dass wir aufgrund der Nachweispflicht gegenüber dem Eigentümer nur Anfragen mit vollständiger Angabe der Anschrift bearbeiten können. Der Interessent wird auf die erweiterten Richtlinien des Konsumentenschutzes im Sinne des FAGG hingewiesen, die es dem Makler nur auf ausdrücklichen Wunsch des Interessenten gestatten, innerhalb der 14-tägigen Rücktrittsfrist einen Besichtigungstermin zu vereinbaren. Es gelten die AGBs der Immobilienwirtschaft. Die Angaben beruhen auf Informationen der Eigentümerin und/oder Dritter und sind daher ohne Gewähr. Änderungen vorbehalten!



Kontaktieren Sie uns für weitere Informationen oder einen Besichtigungstermin.

Infrastruktur / Entfernungen

Gesundheit
Arzt <1.000m
Apotheke <1.000m
Klinik <2.000m
Krankenhaus <500m

Kinder & Schulen
Schule <500m
Kindergarten <1.000m
Universität <1.000m
Höhere Schule <5.000m

Nahversorgung
Supermarkt <500m
Bäckerei <500m
Einkaufszentrum <4.000m

Sonstige
Geldautomat <1.000m
Bank <1.000m
Post <1.000m
Polizei <1.500m

Verkehr
Bus <500m
Straßenbahn <1.500m
U-Bahn <500m
Bahnhof <1.000m
Autobahnanschluss <3.500m

Angaben Entfernung Luftlinie / Quelle: OpenStreetMap

Eckdaten Objektnr. 1609/41750

Art: Wohnung - Dachgeschoß
Land: Österreich
Baujahr: 1962
Zustand: Teil_vollrenovierungsbed
Kaufpreis: 225.000,00
Provision: 3% des Kaufpreises zzgl. 20% USt.
Betriebskosten: 99,56 €
MwSt Gesamt: 12,78 €
Wohnfläche: 55,00 m²
Zimmer: 2
Bäder: 1
WC: 1
Heizwärmebedarf: 46,20 kWh/m²a
fGEE: 1,89
Immobilie merken Exposé

Ausstattung

Gas, Zentralheizung


Immobilie anfragen


Ihre persönliche Beratung

Premier Choix Property GmbH

Gerald Höchtel

RE/MAX First - REM Immobilienmakler Gmbh & Co KG

H +43 664/933 40 49

F +43 1/876 03 60