Komfortable 3-Zimmer-Wohnung in Wels – 94 m², ideal für Paare oder Familien - ab Jänner 2026 zu einem attraktiven Mietpreis!

Wohnung , 4600 Wels , Dragonerstraße 44


Beschreibung der Immobilie

Komfortable 3-Zimmer-Wohnung in Wels – 94 m², ideal für Paare oder Familien - ab Jänner 2026 zu einem attraktiven Mietpreis!

Oberösterreich / Wels / Dragonerstraße 44:



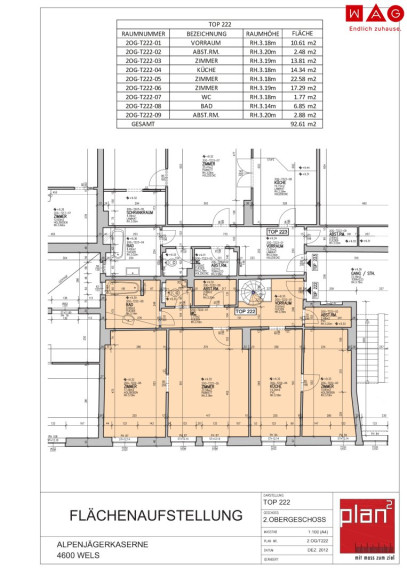
Diese großzügige 3-Zimmer-Wohnung im 2. Obergeschoss eines gepflegten Mehrparteienhauses bietet eine Gesamtfläche von 94 m² und ist ideal für Paare oder Familien, die ein modernes und zentrales Zuhause suchen. Die Wohnung überzeugt durch ihre praktischen Raumaufteilungen und ihre Helligkeit.

 



Die Wohnung ist wie folgt aufgeteilt:




  • Vorraum (10,61 m²)



  • Abstellräume (jeweils 2,48 m² und 2,88 m²)



  • Wohnzimmer (13,81 m²)



  • Küche (14,34 m²)



  • Zimmer 1 (22,58 m²)



  • Zimmer 2 (17,29 m²)



  • Bad (6,85 m²)



  • WC (1,77 m²)




Die Wohnung ist aufgrund der großzügigen Raumhöhen (ca. 3,18 m) besonders lichtdurchflutet und vermittelt eine angenehme und luftige Atmosphäre. Dank der durchdachten Raumaufteilung und der gut belichteten Fensterflächen ist jede Ecke der Wohnung optimal genutzt.



Lagebeschreibung:
Die Wohnung befindet sich in der Dragonerstraße 44 in Wels und besticht durch ihre zentrale Lage. Das Stadtzentrum sowie verschiedene Einkaufsmöglichkeiten sind nur wenige Minuten entfernt. Öffentliche Verkehrsmittel wie Busse und der Wels Bahnhof sind ebenfalls in unmittelbarer Nähe, wodurch eine gute Anbindung an den öffentlichen Nahverkehr gewährleistet ist.

Für den täglichen Bedarf finden Sie zahlreiche Supermärkte, Bäckereien und Apotheken in der Nähe. Die Umgebung bietet auch zahlreiche Freizeitmöglichkeiten, darunter Parks und Grünflächen, die zu Spaziergängen und Erholung einladen.



Mietkonditionen:
Miete inkl. Betriebskosten und Mwst.: 953,13 € monatlich (ohne Strom und Heizung)

Kaution/BKZ: 3.812,52 €








Der Immobilienmakler erklärt, dass er – entgegen dem in der Immobilienwirtschaft üblichen Geschäftsgebrauch des Doppelmaklers – einseitig nur für den Vermieter tätig ist.

Sie sind an weiteren Wohnungs- bzw. Gewerbeangeboten interessiert? Ein vielfältiges Angebot finden Sie auf unserer Website.

Zur WAG-Immobiliensuche: SUCHE

Zur WAG-Wohnungsanmeldung: Wohnungsanmeldung

Gerne beraten wir Sie persönlich über unser vielfältiges Angebot, rufen Sie uns einfach an! Und das natürlich ohne Vermittlungsgebühren und provisionsfrei!

Angaben sind ohne Gewähr auf Richtigkeit und Vollständigkeit. Druckfehler vorbehalten.

Infrastruktur / Entfernungen

Gesundheit
Arzt <425m
Apotheke <650m
Klinik <450m
Krankenhaus <2.150m

Kinder & Schulen
Schule <300m
Kindergarten <425m
Universität <1.200m

Nahversorgung
Supermarkt <400m
Bäckerei <975m
Einkaufszentrum <2.950m

Sonstige
Bank <350m
Geldautomat <700m
Post <875m
Polizei <175m

Verkehr
Bus <25m
Autobahnanschluss <2.275m
Bahnhof <425m
Flughafen <3.525m

Angaben Entfernung Luftlinie / Quelle: OpenStreetMap

Eckdaten Objektnr. 6650/28558

Art: Wohnung
Land: Österreich
Möbliert: Teil
Gesamtmiete: 953,13
Kaltmiete (netto): 690,76 €
Kaltmiete: 866,48 €
Provision: Gemäß Erstauftraggeberprinzip bezahlt der Abgeber die Provision.
Betriebskosten: 175,72 €
MwSt Gesamt: 86,65 €
Wohnfläche: 94,00 m²
Zimmer: 3
Bäder: 1
WC: 1
Heizwärmebedarf:  C  63,00 kWh/m²a
fGEE:  C  1,17
Immobilie merken Exposé

Ausstattung

Parkett, Fliesen, Zentralheizung, Fernwärme, Bad mit Fenster, Badewanne, Kabel/Satelliten-TV, Wasch/Trockenraum


Immobilie anfragen


Ihre persönliche Beratung

Team Vermietung EBS

WAG Wohnungsanlagen GmbH

T 0503386016