Leistbares Wohnen mit modernem Komfort: Neubauwohnung Top 3

Wohnung - Etage, 6432 Sautens


Bernegg, 6432 Sautens

Beschreibung der Immobilie

Leistbares Wohnen mit modernem Komfort: Neubauwohnung Top 3

Top modernes Neubauprojekt


Im beliebten Wohngebiet von Sautens entsteht eine exklusive Kleinwohnanlage mit nur sechs modernen Wohneinheiten, die höchsten Ansprüchen an Komfort, Qualität und Energieeffizienz gerecht wird. Das Projekt verbindet zeitgemäße Raumgestaltung mit nachhaltiger Bauweise und einer besonders sonnigen Lage, die das Wohnen hier zu einem außergewöhnlichen Erlebnis macht.



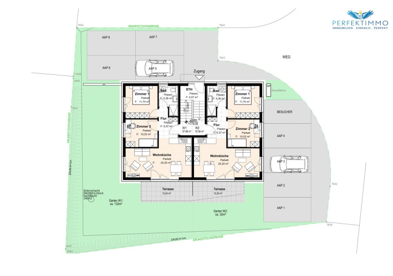
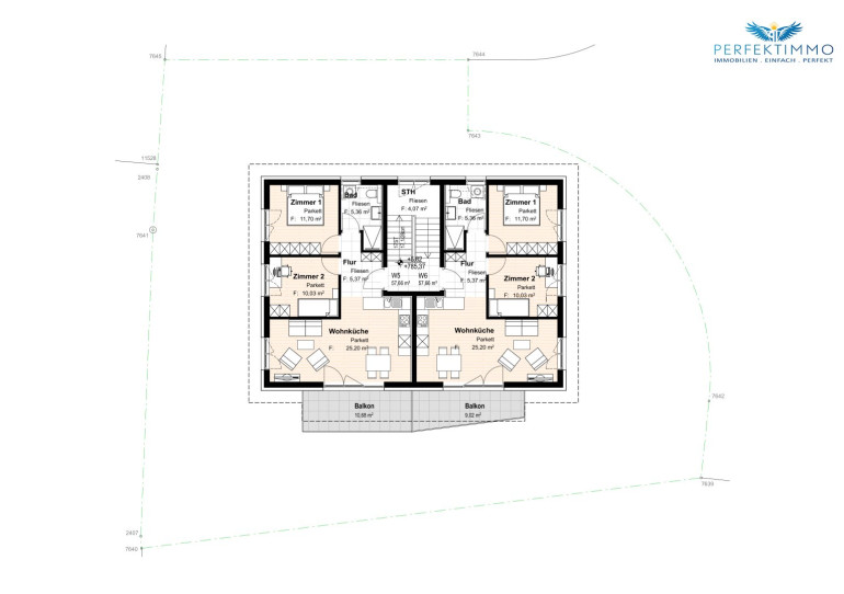
Die Anlage umfasst sechs durchdacht geplante 3-Zimmer-Wohnungen mit einer Wohnfläche von jeweils über 57 m². Jede Einheit überzeugt durch eine funktionale Raumaufteilung, großzügige Fensterflächen und eine helle, freundliche Atmosphäre. Zu den Erdgeschosswohnungen gehört jeweils eine private Terrasse mit Gartenanteil, die Wohnungen in den oberen Etagen verfügen über sonnige Balkone mit schönem Ausblick. So entsteht für jede Wohneinheit ein harmonischer Übergang zwischen Innen- und Außenraum.



Ein besonderes Plus ist der großzügige Stauraum: Jede Wohnung verfügt über ein geräumiges Kellerabteil, das ausreichend Platz für Sportgeräte, Saisonartikel oder persönliche Dinge bietet. Im Außenbereich entstehen acht Kfz-Abstellplätze oder wahlweise Carports, die den Wohnungen gegen Aufpreis zugeordnet werden können, sowie ein zusätzlicher Besucherparkplatz. Damit ist für ausreichend Komfort und Flexibilität bei der Nutzung gesorgt.



Errichtet wird die Kleinwohnanlage in massiver Bauweise aus Stahlbeton, Beton und Ziegelmauerwerk und bietet somit Langlebigkeit, Stabilität und ausgezeichneten Schall- sowie Wärmeschutz. Die Gebäudehülle wird mit einem modernen Wärmedämmverbundsystem ausgestattet, das gemeinsam mit den dreifach verglasten Isolier-Wärmeschutzfenstern für ein angenehmes Raumklima und niedrige Heizkosten sorgt.



Auch bei der Haustechnik wird auf moderne und energieeffiziente Lösungen gesetzt. Eine Fußbodenheizung sorgt für gleichmäßige Wärmeverteilung und hohen Wohnkomfort, während die Beheizung über eine Luftwärmepumpe erfolgt – umweltfreundlich, zukunftssicher und wirtschaftlich im Betrieb. Ergänzend dazu wird eine Photovoltaikanlage installiert, die einen Teil des Strombedarfs deckt und so zur Reduzierung der laufenden Kosten beiträgt. Damit bietet das Projekt ein nachhaltiges Energiekonzept, das Komfort und Umweltbewusstsein perfekt miteinander verbindet.



Für die mediale Ausstattung wird eine zentrale SAT-Anlage errichtet, die standardmäßig einen TV-Anschluss pro Wohneinheit vorsieht. Auf Wunsch kann diese Ausstattung erweitert werden, um individuelle Anforderungen zu erfüllen. Im gesamten Bau wird auf hochwertige Materialien geachtet: Die Böden erhalten eine Trittschalldämmung, die eine angenehme Raumakustik gewährleistet. In den Wohn- und Schlafräumen wird edles Eichenparkett verlegt, das mit seiner natürlichen Optik und Haptik für eine warme Wohnatmosphäre sorgt. In den Sanitärräumen kommen ausgewählte, hochwertige Fliesen zum Einsatz, die modernes Design und Funktionalität harmonisch verbinden.




Ein weiterer Vorteil für zukünftige Eigentümer ist die Möglichkeit zur individuellen Mitgestaltung. Käuferinnen und Käufer können eigene Sonderwünsche äußern, sofern diese technisch realisierbar sind und den gesetzlichen Rahmenbedingungen entsprechen. Die erste Planänderung ist dabei sogar kostenfrei! Auf diese Weise entsteht Wohnraum, der nicht nur hochwertig, sondern auch individuell und einzigartig ist.



Der Baubeginn ist bereits erfolgt und die Fertigstellung ist für September 2026 geplant. Interessierte können sich ihre bevorzugte Wohnung sichern und von einer frühen Kaufentscheidung profitieren. Durch die überschaubare Größe der Anlage entsteht ein harmonisches, familiäres Wohnumfeld mit einer angenehmen Nachbarschaft – ideal für Paare, kleine Familien oder Singles, die ein ruhiges Zuhause mit hoher Lebensqualität suchen.

Sautens selbst zählt zu den besonders beliebten Wohnlagen im vorderen Ötztal. Die Kombination aus naturnaher Lage und guter Erreichbarkeit macht Sautens zu einem idealen Wohnort für alle, die Ruhe und Lebensqualität suchen, ohne auf Komfort verzichten zu wollen.



Ob als Eigenheim oder als wertbeständige Kapitalanlage – dieses Projekt bietet eine einmalige Gelegenheit, in ein nachhaltiges und modernes Zuhause zu investieren. Unter Umständen ist es möglich, eine Erwerbsförderung in Anspruch zu nehmen - entweder ca. € 9.650,00 als Barscheck oder ca. € 27.000,00 in Form eines Kredits!



Sichern Sie sich jetzt Ihre neue Wohnung in dieser exklusiven Wohnanlage in Sautens und genießen Sie ein Leben in sonniger Lage, umgeben von Natur, Komfort und Qualität.

TOP 3: 3-Zimmer-Wohnung mit Balkon





In Sautens entsteht eine exklusive Kleinwohnanlage mit nur sechs modernen 3-Zimmer-Wohnungen, die höchsten Ansprüchen an Komfort, Qualität und Energieeffizienz gerecht wird. Jede Einheit überzeugt durch eine durchdachte Raumaufteilung, helle Wohnbereiche und großzügige Außenflächen – im Erdgeschoss mit Terrasse und Garten, in den oberen Etagen mit sonnigen Balkonen. Zur Ausstattung gehören zudem Kellerabteile, gesondert erwerbbare Kfz-Abstellplätze oder Carports und eine hochwertige Bauausführung mit langlebigen Materialien und edlen Oberflächen.



Das nachhaltige Energiekonzept mit Luftwärmepumpe, Fußbodenheizung und Photovoltaikanlage sorgt für ein angenehmes Raumklima und niedrige Betriebskosten. Frühzeitige Käuferinnen und Käufer profitieren von der Möglichkeit individueller Mitgestaltung. Der Baubeginn ist bereits erfolgt – ideal für Familien, Paare oder Singles, die in einem ruhigen, sonnigen Wohnumfeld im vorderen Ötztal ein modernes Zuhause mit hoher Lebensqualität suchen.





LAGEBESCHREIBUNG:



Der Neubau bietet eine ruhige und sonnige Umgebung mit herrlichem Blick auf die Ötztaler Bergwelt. Infrastruktur wie Einkaufsmöglichkeiten, Restaurants und Skiverleih sind in der Nähe vorhanden. Für Freizeitaktivitäten stehen zahlreiche Angebote zur Verfügung, darunter Wandern, Klettern, Radfahren, Rafting und Canyoning sowie Schwimmen im nahegelegenen Sautener Schwimmbad im Sommer sowie Skifahren, Rodeln und Schneeschuhwandern im Winter. Zudem befindet sich die AREA 47, Österreichs größter Outdoor-Freizeitpark, in der Nähe - genauso wie der malerische Piburger See. Beide Freizeitparadiese sind mit dem Auto in weniger als 10 Minuten zu erreichen!

 



ECKDATEN:



Objekttyp: Wohnung



Stockwerk: Obergeschoß



Zimmer: 3



Baubeginn: bereits erfolgt!



Personenaufzug: Nein



Heizung | Befeuerung: Fußbodenheizung | Zentralheizung | Luftwärmepumpe



Energieausweis: HWB Ref, SK: 37,2 kWh/m²a (Klasse B) | fGEE, SK: 0,56 (Klasse A+) | gültig bis 23.09.2035





RAUMAUFTEILUNG:



Flur: 5,37 m²



Wohnküche: 25,20 m²



Zimmer: 10,03 m²



Zimmer: 11,70 m²



Bad/WC: 5,36 m²



Wohnfläche: 57,66 m²





ZUBEHÖR:



Balkon: 10,68 m²



Lager: inklusive



KFZ-Abstellplatz: optional



Ausführung: schlüsselfertig



Verfügbarkeit: nach Vereinbarung






KAUF TOP 3:



Kaufpreis Wohnung:    € 284.000,00



Kaufpreis KFZ-Abstellplatz: à € 15.000,00



Kaufpreis Carport: à € 25.000,00





Haben wir Ihr Interesse geweckt? Gerne schicken wir Ihnen das Exposé zu und stehen wir Ihnen für weitere Informationen zur Verfügung!





IHRE ANSPRECHPARTNERIN:



Frau Barbara Lechleitner

geprüfte Immobilienmaklerin

Mobil: +43 650 9805332

E-Mail: b.lechleitner@perfektimmo.at

www.perfektimmo.at




NEBENKOSTEN:



Maklerhonorar: 3,6 % inkl. USt

Vertragserrichtungskosten: ca. 2 % netto zzgl. USt zzgl. Barauslagen

Grunderwerbsteuer: 3,5 %

Grundbuchseintragung: 1,1 %  - Unter Umständen könnte hier eine Befreiung gemäß dem Beschluss der Österreichischen Bundesregierung für die Eintragung des Eigentumsrechts sowie die Eintragung einer eventuellen Pfandurkunde möglich sein.




Alle Angaben nach bestem Wissen. Irrtum und Zwischenverkauf vorbehalten. Dieses Exposé ist eine Vorinformation, als Rechtsgrundlage gilt alleine der abgeschlossene Kaufvertrag. §15 der Maklerverordnung gilt als vereinbart.



Weitere tolle Angebote finden Sie unter: https://www.perfektimmo.at/angebote


Der Vermittler ist als Doppelmakler tätig.

Infrastruktur / Entfernungen

Gesundheit
Arzt <500m
Apotheke <2.000m

Kinder & Schulen
Schule <1.000m
Kindergarten <1.000m

Nahversorgung
Supermarkt <500m
Bäckerei <500m

Sonstige
Bank <500m
Geldautomat <2.500m
Post <3.500m
Polizei <1.500m

Verkehr
Bus <500m
Autobahnanschluss <4.000m
Bahnhof <3.500m

Angaben Entfernung Luftlinie / Quelle: OpenStreetMap

Eckdaten Objektnr. 6566/1747

Art: Wohnung - Etage
Land: Österreich
Baujahr: 2025
Alter: Neubau
Kaufpreis: 284.000,00
Provision: 3% des Kaufpreises zzgl. 20% USt.
Wohnfläche: 57,66 m²
Zimmer: 3
Bäder: 1
WC: 1
Balkone: 1
Heizwärmebedarf:  B  37,20 kWh/m²a
fGEE:  A+  0,56
Immobilie merken Exposé

Ausstattung

Fliesen, Parkett, Fußbodenheizung, Südbalkon, Bad mit Fenster, Dusche, Parkplatz


Immobilie anfragen


Ihre persönliche Beratung

PERFEKT IMMO GmbH

Barbara Lechleitner

PERFEKT IMMO GmbH

T ​+43 650 9805332

H ​+43 650 9805332