***PROVISIONSFREI! Randlage direkt neben den Weingärten - MIT KELLER!

Haus - Einfamilienhaus, 7051 Großhöflein


Beschreibung der Immobilie

***PROVISIONSFREI! Randlage direkt neben den Weingärten - MIT KELLER!

Die Vorzüge der Stadt – die Ruhe vom Land 


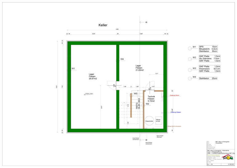
Umgeben von den schönen Weingärten entstehen in der entzückenden Weinbaugemeinde Großhöflein, 12 moderne Einfamilienhäuser in hochwertiger Holzmassivbauweise. Die 114 m2 großen Häuser sind bzw. werden von regionalen Firmen errichtet, sind zweigeschoßig, bieten 4-5 Zimmer und punkten mit sehr durchdachten Grundrissen. Die südwestlich ausgerichteten Häuser haben einen Dichtbetonkeller im Ausmaß von ca. 56 m2. Dort befindet sich der Technikraum mit ca. 6 m2, ein Lagerraum mit ca. 20 m2 sowie ein weiterer Kellerraum mit ca. 30 m2.



Haus 8 wird in der mittleren Reihe am äußersten Rand, direkt neben den Weingärten, errichtet. Von diesem Haus haben Sie seitlich einen wunderschönen und unverbauten Blick ins Grüne. Nach individueller Planung der Zwischenwände und Schlüsselfertigstellung ist Ihr Haus innerhalb weniger Monate bezugsbereit.



Im Erdgeschoß sind jeweils Vorraum, Bad mit Dusche, Waschbecken und Toilette sowie eine große Wohnküche mit Ausgang auf die überdachte Terrasse und den Garten angeordnet. Die an die Küche angrenzende, mögliche Speis ist für passionierte Hobbyköche sicher das Highlight.

Liegt Ihr Schwerpunkt eher bei einem zusätzlichen Zimmer im Erdgeschoß kann hier zB ein Büro geschaffen werden – egal wie Ihre Bedürfnisse sind, hier findet jeder sein ideales Erdgeschoß.


Das Obergeschoß bietet 3 geräumige Schlafzimmer, davon das Elternschlafzimmer mit direktem Zugang auf den Balkon und herrlichem Blick in die umliegenden Weingärten. Im zentral begehbaren Bad sind Badewanne, Waschbecken und Toilette vorgesehen. Im darüber befindlichen Spitzboden besteht unheimlich viel Stauraum für die nicht alltäglichen Dinge des Lebens.



Jedes Haus hat 2 Autoabstellplätze im Freien, wovon 1 Stellplatz als Carport ausgeführt wird.



BAUWEISE
Niedrigenergiebauweise mit ökologisch nachhaltigen Baustoffen**
Dichtbetonkeller

Internorm Kunststoff-Alufenster 3-fach verglast, Ug Glas 0,6 W/m2

Luftwasser Wärmepumpe / Fußbodenheizung und (Fußbodenkühlung gegen Aufpreis)

Kaminanschluss im Wohnzimmer

Riesige Terrassen / Balkone und Eigengärten

PV vorbereitet (Leerverrohrung / Dachdurchführung)

Energieausweis Haus 1-8 HWB 36/B, fGEE 0,59/A+

Energieausweis Haus 9-12 HWB 37/B, fGEE 0,59/A+

**diesem Angebot liegt eine sehr informative Broschüre über „Bauen mit Brettsperrholz“ bei, aus welcher Sie umfangreiche Informationen über die nachhaltige Bauweise entnehmen können.


ECKDATEN
Belagsfertige Ausführung – Schlüsselfertigstellung gegen Aufpreis möglich (ACHTUNG: DIE FOTOS ZEIGEN TEILWEISE DIE SCHLÜSSELFERTIGE AUSFÜHRUNG)
Alle Fenster mit elektrischen Raffstores im Erdgeschoß und Außenrollläden im Obergeschoß

Kaminanschluss im Wohnzimmer

Stellplatz / E-Auto Ladestation (Vorrichtung / Wanddurchführung)

Bezugsbereit innerhalb von ca. 6 Monaten

Wasseranschlüsse im Außenbereich (Balkon, Terrasse)



LAGE / INFRASTRUKTUR / VERKEHR
Von Großhöflein ist man mit dem Auto in 8 Minuten im 5 km entfernten Eisenstadt. In der lebendigen Landeshauptstadt finden Sie eine perfekte Infrastruktur mit sämtlichen Einkaufsmöglichkeiten, diversen Dienstleistern, Ärzten, Gastronomie, Kultur und vieles mehr.

Öffentlich sind Sie mit dem Zug in 55 Minuten in Wien und mit dem Auto in 30 Minuten über die A3 an der Wiener Stadtgrenze.



BILDUNGSEINRICHTUNGEN
Kindergarten / Kinderkrippe sowie Volksschule befinden sich direkt im Ort.

In Eisenstadt ist das Bildungsangebot an Schulen enorm. Sie finden hier für Ihre Kinder Volksschulen, Mittelschulen, Sonderschule, Polytechnische Schule, Berufsschule, Höhere Schulen (HASCH, HAK, HTL, Landwirtschaftliche Schule), Fachhochschulen und Musikschule.



FREIZEIT
Die Sportangebote in und um Eisenstadt sind grenzenlos. Sei es Schwimmen im Freibad im Schlosspark, Besuch des Sportzentrums, Eislaufen, klettern, laufen, Mountainbiken, Skaterpark und vieles mehr. Wer die Kultur liebt, findet im Schloss Esterhazy einen prallen Veranstaltungskalender. Zahlreiche Wirtshäuser, Heurige, Restaurants bieten eine lebendige Gastronomie und hervorragende Weine aus der Region.



SERVICE
Finanzierungsberatung

Einrichtungsberatung



PROVISIONSFREI DIREKT VOM BAUTRÄGER!


Nebenkosten:

3,5 % Grunderwerbsteuer, temporäre Gebührenbefreiung* bei dringendem Wohnbedürfnis gemäß § 25a, ansonsten 1,1 % Eintragungsgebühr, 1,5 % + 20 % Ust. Vertragserrichtung und treuhändische Abwicklung durch den Rechtsanwalt Mag. Markus Dax sowie Barauslagen, PROVISIONSFREIER VERKAUF!


*Wegfall von Grundbuch- und Pfandrechtseintragungsgebühr mit Konjunkturpaket 2024:

Befristete Abschaffung der Grundbuchseintragungs- und Pfandrechtseintragungsgebühr für den Erwerb von Wohnraum. Diese Maßnahme, gültig für zwei Jahre, betrifft die Anschaffung von Eigentum (nur bei Neubauten oder Neuschaffung zur Selbstnutzung) bis zu einem Betrag von jeweils € 500.000. Übersteigt der Betrag diese Grenze, werden die Gebühren bis zu diesem Betrag erlassen. Weitere Voraussetzung für diese Gebührenbefreiung ist die Befriedigung eines dringenden Wohnbedürfnisses.






Infrastruktur / Entfernungen

Gesundheit
Arzt <2.000m
Apotheke <3.000m
Klinik <6.500m
Krankenhaus <3.000m

Kinder & Schulen
Schule <1.500m
Kindergarten <2.000m
Universität <3.500m
Höhere Schule <4.500m

Nahversorgung
Supermarkt <1.500m
Bäckerei <2.000m
Einkaufszentrum <3.000m

Sonstige
Bank <2.500m
Geldautomat <3.000m
Post <500m
Polizei <3.500m

Verkehr
Bus <500m
Autobahnanschluss <1.500m
Bahnhof <2.000m

Angaben Entfernung Luftlinie / Quelle: OpenStreetMap

Eckdaten Objektnr. 5663/109

Art: Haus - Einfamilienhaus
Land: Österreich
Baujahr: 2026
Zustand: Erstbezug
Alter: Neubau
Kaufpreis: 529.000,00
Provision: provisionsfrei
Wohnfläche: 114,09 m²
Nutzfläche: 171,32 m²
Zimmer: 4
Bäder: 2
WC: 2
Balkone: 1
Terrassen: 1
Stellplätze: 2
Garten: 116,68 m²
Keller: 57,23 m²
Heizwärmebedarf:  B  36,00 kWh/m²a
fGEE:  A+  0,59
Immobilie merken Exposé

Ausstattung

Fußbodenheizung, Kamin, Wohnküche / offene Küche, Südbalkon, Dusche, Bad mit Fenster, Badewanne, Carport, Parkplatz


Immobilie anfragen


Ihre persönliche Beratung

Brigitte Handler

Brigitte Handler Immobilien Consulting

T +43 664 344 1471

H +43 664 344 1471