Ihr Wohntraum im Lavanttal - das neue Wohnbauprojekt am Rikliweg: Haus A / TOP 4

Wohnung , 9400 Wolfsberg , Rikliweg


absolut ruhig, Aussichtslage, großer Balkon/Terrasse, Grünblick, Grünlage, Orts-/Stadtrand, repräsentativ, sonnig, TG/Garage, Zentrum-Nähe

Beschreibung der Immobilie

Ihr Wohntraum im Lavanttal - das neue Wohnbauprojekt am Rikliweg: Haus A / TOP 4

Jetzt ist es soweit:
Das neue Wohnbauprojekt am Rikliweg in Wolfsberg bietet die einzigartige Gelegenheit, das Leben inmitten der Natur mit urbanen Annehmlichkeiten zu verbinden. Direkt an die malerische Rikli-Villa angrenzend entsteht ein Projekt, das Eleganz und Funktionalität vereint und den Anspruch an hohe Lebensqualität wiederspiegelt.
Die raffinierten und modernen Raumlösungen tragen dazu bei, dass jeder Quadratmeter optimal genutzt wird, während die hochwertigen Materialien für ein behagliches Wohnambiente sorgen.
Wenn Sie Wert auf Qualität und innovative Exklusivität legen, dann ist das die Chance ein Teil dieses außergewöhnlichen Projektes zu werden!
Lassen Sie sich von den Möglichkeiten inspirieren und finden Sie Ihren Wohntraum im Lavanttal - dem Paradies Kärntens!

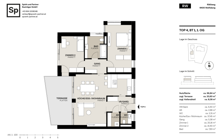
Die Wohnung TOP 4 im Haus A liegt im 1. OG, verfügt über eine Diele, ein wunderschönes Kü- Wohn- Esszimmer, ein großes, helles Schlafzimmer, ein Kinderzimmer, ein Bad mit WC, ein zweites WC und einen Abstellraum.
Die großzügige Terrasse mit 21 m² runden dieses Immobilienangebot noch ab. Zur Immobilie gehören auch ein Kellerabteil und zwei Abstellplätze in der Tiefgarage.

Die Anlage besteht aus drei Häusern mit insgesamt nur 16 Wohnungen, wovon die Einheiten im Erdgeschoß über großzügige Grünflächen im Eigentum verfügen, alle anderen haben sehr schöne Balkone oder Terrassen. Die Wohnungsgrößen bewegen sich von ca. 66 m² bis ca. 150 m². Lift und eine Tiefgarage sind selbstverständlich vorhanden.
Kaufnebenkosten:
 3,5% Grunderwerbssteuer
 1,1% Grundbucheintragungsgebühr (für Bertrag über € 500.000,--)
 Kaufvertragskosten

Für genauere Informationen stehen wir Ihnen gerne zur Verfügung.
Bitte haben Sie Verständnis, dass wir aufgrund der Nachweispflicht gegenüber dem Eigentümer nur Anfragen mit vollständiger Anschrift und Telefonnummer beantworten können!



Eckdaten Objektnr. 910/00413

Art: Wohnung
Land: Österreich
Baujahr: 2026
Alter: Neubau
Kaufpreis: 534.000,00
Provision: provisionsfrei
Wohnfläche: 97,00 m²
Zimmer: 3
Bäder: 1
WC: 2
Terrassen: 1
Immobilie merken Exposé

Ausstattung

Parkett, Zentralheizung, Personenaufzug


Immobilie anfragen


Ihre persönliche Beratung

Karl Kostmann

T 0664/5423830

H 0664/5423830

F 04352/37295

Dieser Makler ist ein offizielles Mitglied des IR – ir.at Mehr Erfahren


Makler für Immobilien - KIB GmbH

Wir sind ein Immobilienunternehmen in Wolfsberg und wir bieten Ihnen Immobilien aller Art an - mit Schwerpunkt auf Wohnungen, Häuser und Grundstücken.