Traumhaftes Mehrfamilienhaus mit zwei Wohneinheiten in Schwoich zu kaufen!

Haus - Mehrfamilienhaus, 6334 Schwoich


Die Gemeinde Schwoich liegt idyllisch auf einem sonnigen Hochplateau südlich von Kufstein im Tiroler Unterland. Eingebettet zwischen Wiesen, Wäldern und den beeindruckenden Gipfeln des Wilden Kaisers, bietet Schwoich eine perfekte Kombination aus naturnaher Ruhe und guter Infrastruktur. Mit rund 2.500 Einwohnern hat sich der Ort seinen ländlichen Charme bewahrt, ohne auf modernen Komfort zu verzichten. Einkaufsmöglichkeiten, Kindergarten, Volksschule, Gasthäuser und Freizeiteinrichtungen befinden sich direkt im Ort. Die Bezirkshauptstadt Kufstein mit weiterführenden Schulen, Kliniken, Bahnhof und zahlreichen Geschäften ist in wenigen Fahrminuten erreichbar. Auch die Autobahnanbindung (A12 Inntalautobahn) sorgt für eine schnelle Verbindung nach Innsbruck, München oder Salzburg. Schwoich ist ein Paradies für Naturliebhaber und Sportbegeisterte: Zahlreiche Wander- und Radwege, Langlaufloipen, Skigebiete sowie der nahegelegene Hintersteiner See laden zu ganzjährigen Freizeitaktivitäten ein. Kurz gesagt: Schwoich steht für Lebensqualität, Ruhe und Naturverbundenheit – mit gleichzeitig hervorragender Erreichbarkeit und attraktiver Aussichtslage im Herzen Tirols.

Beschreibung der Immobilie

Traumhaftes Mehrfamilienhaus mit zwei Wohneinheiten in Schwoich zu kaufen!

Traumhaftes Mehrfamilienhaus in absoluter Ruhelage in Schwoich, Tirol



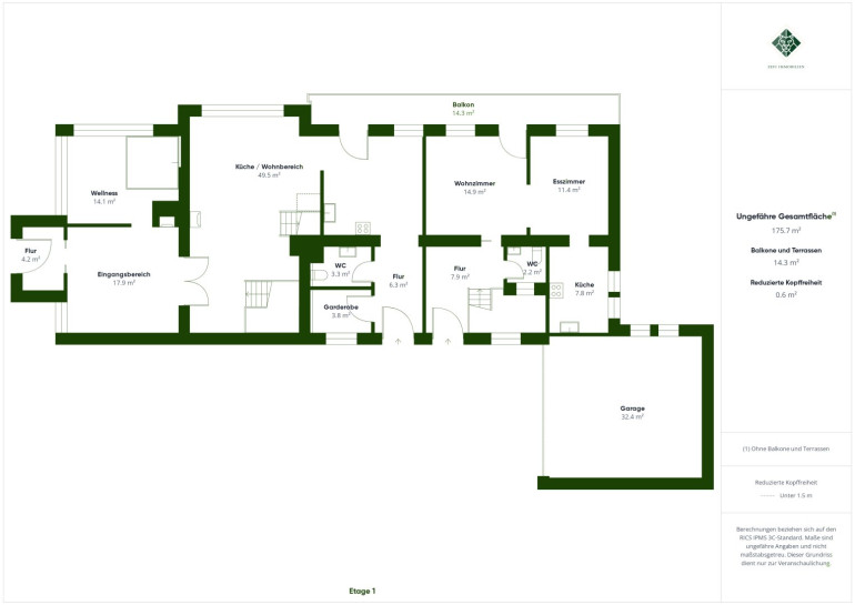
In idyllischer Sackgassenlage von Schwoich, umgeben von Natur und Ruhe, befindet sich dieses außergewöhnliche Mehrfamilienhaus auf einem großzügigen Grundstück von 958 m². Das Haus überzeugt mit einer Gesamtwohnfläche von ca. 250 m², aufgeteilt auf zwei separate Wohneinheiten – ideal für Eigennutzung und gleichzeitige Vermietung oder als Mehrgenerationenhaus.




Wohnung 1 – Großzügig, hochwertig und voller Charme über 200 m² Wohnnutzfläche



Diese Hauptwohnung besticht durch ihre offene, durchdachte Raumgestaltung und bietet höchsten Wohnkomfort auf mehreren Ebenen:




  • Eingangsbereich mit separater Garderobe



  • Gäste-WC



  • Moderne Küche mit Zugang zum Balkon und herrlichem Ausblick



  • Großzügiges Wohnzimmer mit gemütlichem Schwedenofen



  • Galerie mit offener Raumgestaltung



  • Wintergarten - Büro-/Homeofficezimmer (mit separatem Eingang zur Wohnung)



  • Wellnessraum mit Whirlpool



  • Außergewöhnlicher Weinkeller




Im Untergeschoss:




  • Zwei Schlafzimmer, eines davon großzügig gestaltet mit begehbarem Kleiderschrank, eigenem Badezimmer und direktem Zugang zum Garten



  • Ein zweites Badezimmer



  • Zugang zum extravaganten Weinkeller/Stüberl – perfekt für gesellige Abende



  • Technikraum mit moderner Pelletsheizung





Wohnung 2 – Eigenständige Einheit mit großem Potenzial - 96 m²



Die zweite, komplett möblierte Wohnung eignet sich ideal als Ferienwohnung oder zur dauerhaften Vermietung. Sie bietet eine komfortable Raumaufteilung über zwei Ebenen:



Erdgeschoss:




  • Eingangsbereich mit Garderobe und Flur



  • Gäste-WC



  • Wohnzimmer



  • Esszimmer



  • Küche mit Zugang zum Balkon




Untergeschoss:




  • Zwei Schlafzimmer



  • Zwei Badezimmer



  • Direkter Zugang zum Garten




Diese Einheit bietet sowohl für Mieter als auch für Gäste ein Höchstmaß an Wohnqualität und Privatsphäre.




Außenbereich und Ausstattung




  • Doppelgarage sowie drei zusätzliche Stellplätze im Freien



  • Gepflegter Garten mit viel Platz zum Entspannen und Wohlfühlen



  • Absolute Ruhelage in einer Sackgasse – keine Durchfahrt, kein Verkehrslärm





Technische Ausstattung & Renovierungen (2025)




  • Neue Fenster



  • Fassadenanstrich und Dämmung



  • Neue Photovoltaikanlage für energieeffizienten Betrieb



  • Moderne Pelletsheizung – umweltfreundlich, effizient und zukunftssicher





Besonderheiten




  • Hochwertige Materialien und liebevolle Gestaltung



  • Großzügige, lichtdurchflutete Räume



  • Kombination aus traditionellem Tiroler Charme und modernem Wohnkomfort



  • Vielseitige Nutzungsmöglichkeiten: Eigenheim, Vermietung oder Mehrgenerationenhaus



  • Perfekte Lage für Naturliebhaber – ruhig, sonnig und dennoch zentrumsnah





Fazit:
Dieses Haus in Schwoich vereint Ruhe, Komfort und Vielseitigkeit auf höchstem Niveau. Ob als großzügiges Familienanwesen, Anlageobjekt oder Kombination aus Wohnen und Vermieten – hier erwartet Sie ein Zuhause mit Herz, Stil und nachhaltiger Technik in einer der schönsten Lagen Tirols.

Noch nichts gefunden? Wir informieren Sie über geeignete Immobilienangebote noch vor allen anderen.
Legen Sie jetzt Ihren individuellen Suchagenten unter folgendem Link an. Wir schicken Ihnen passende Immobilien exklusiv vorab zu.

Suchagent anlegen - https://zefi-immobilien.service.immo/registrieren/de


Der Vermittler ist als Doppelmakler tätig.

Infrastruktur / Entfernungen

Gesundheit
Arzt <2.500m
Apotheke <3.000m
Klinik <9.500m
Krankenhaus <2.500m

Kinder & Schulen
Schule <1.000m
Kindergarten <1.500m
Höhere Schule <3.000m
Universität <4.500m

Nahversorgung
Supermarkt <1.000m
Bäckerei <3.000m
Einkaufszentrum <3.000m

Sonstige
Bank <1.000m
Geldautomat <3.000m
Post <4.500m
Polizei <4.000m

Verkehr
Bus <500m
Autobahnanschluss <2.500m
Bahnhof <2.500m
Flughafen <2.500m

Angaben Entfernung Luftlinie / Quelle: OpenStreetMap

Eckdaten Objektnr. 5390/1057

Art: Haus - Mehrfamilienhaus
Land: Österreich
Baujahr: 1977
Zustand: Modernisiert
Möbliert: Teil
Alter: Neubau
Kaufpreis: 1.499.000,00
Kaufpreis / m²: 4.871,63 €
Provision: 53.964,00 € inkl. 20% USt.
Wohnfläche: 280,00 m²
Nutzfläche: 307,70 m²
Grundstücksfl.: 986,00 m²
Zimmer: 8,50
Bäder: 4
WC: 6
Balkone: 2
Terrassen: 2
Stellplätze: 4
Garten: 100,00 m²
Keller: 20,00 m²
Heizwärmebedarf:  C  48,30 kWh/m²a
fGEE:  A  0,75
Immobilie merken Exposé

Ausstattung

Fliesen, Laminatboden, Solarenergie, Fußbodenheizung, Zentralheizung, Einbauküche, Wohnküche / offene Küche, Badewanne, Dusche, Kabel/Satelliten-TV, Garage, Parkplatz, Carport


Immobilie anfragen


Ihre persönliche Beratung

Zefi Immobilien GmbH

Mike Rettkowski

Zefi Immobilien GmbH

T 05332 22818

H +43 681 84168667