Elegantes Traumhaus mit Terrasse unweit der American International School

Haus , 1180 Wien , Sommerhaidenweg


Neustift am Walde, American International School

Beschreibung der Immobilie

Elegantes Traumhaus mit Terrasse unweit der American International School

In exklusiver Ruhelage, nahe der American International School, gelangt eine großzügige Doppelhaushälfte in Neustift am Walde zum Verkauf. Das im Jahr 2008 errichtete Haus bietet einen herrlichen Ausblick in die umliegenden Weingärten und den Wienerwald. Auf insgesamt 3 Etagen und 197m2 lässt sich hier perfekt der eigene Wohntraum verwirklichen. Die Gartenebene könnte mit ihrem eigenen Hauseingang auch gut als kleine Einlegerwohnung funktionieren.



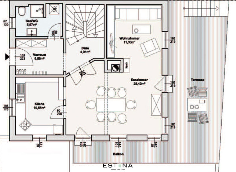
Sie betreten das Familiendomizil über den zentralen Vorraum auf der Wohnebene. Von dort erreichen Sie alle weiteren Räume und Stockwerke:



Wohnebene:



  • Luftiger Wohn- und Essbereich mit gemütlichem Kamin und großer Gartenterrasse
  • optisch leicht abgetrennt und in das Wohnzimmer blickend liegt die geräumige Küche
  • Duschbad mit Gästetoilette.
  • über eine Treppe sowie einen Wiesenstreifen gelangt man von der Terrasse direkt in den Wienerwald


Schlafebene:



  • 3 Schlafzimmer
  • Tageslichtbadezimmer inkl. Toilette
  • Aufgang zur riesigen Sonnenterrasse am Dach – der perfekte Platz um mit einem Glas Wein im Jacuzzi den Ausblick zu genießen


Gartenebene:



  • Zugang über die Treppe im Haus oder direkt über einen eigenen Hauseingang mit viel Stauraum im Flur
  • Großer Wohnraum mit Blick zum schönen Garten
  • Zimmer
  • Badezimmer inkl. Toilette, das aktuell als Waschküche dient
  • Gemütlicher Garten mit Morgensonne und praktischem Geräteschuppen


Das Haus selbst ist mit Alarmanlage, Radiatoren und Fußbodenheizung, Telefon/TV und Internetverkabelung ausgestattet. In der Hauseinfahrt steht den Bewohnern ein Doppelparkplatz zur Verfügung.



Das Haus liegt auf einem ca. 280 m² großen Pachtgrund des Stifts Klosterneuburg und wird als Superädifikat übergeben. Die halbjährlichen Pachtkosten für den Stiftsgrund belaufen sich derzeit auf ca. € 3.647. Beheizt wird die Immobilie mittels Gasheizung. Die Heizkosten belaufen sich derzeit jährlich auf ca. € 1.397.



Lage:
Das Haus liegt unmittelbar am herrlichen Naherholungsgebiet Wienerwald und ist ein wahres Paradies für Naturliebhaber, Jogger und Radfahrer. Bei einem gemütlichen Spaziergang erreicht man in wenigen Gehminuten, Neustift am Walde, wo bekannte Heurige wie der "Fuhrgassl-Huber" und der "Heuriger Wolff" zu finden sind.



Im Umfeld finden Sie eine Vielzahl an Kindergärten und Schulen, insbesondere die unmittelbare Nähe zur American International School (AIS) ist hervorzuheben. Die öffentliche Anbindung ist durch die Linien 43A, 43B und 35A gegeben. Das Wiener Zentrum ist bequem unter einer halben Stunde sowohl mit dem Auto als auch den öffentlichen Verkehrsmitteln erreichbar. 



Kosten: 
Kaufpreis: € 1.490.000,00 

Vermittlungshonorar: € 53.640,00 inkl. 20% USt.



Kontakt:
Bei Fragen oder zur Vereinbarung eines Besichtigungstermins wenden Sie sich bitte an Frau Bettina Zaininger unter zaininger@estina.at oder mobil unter 0676 555 66 60. 

Eckdaten Objektnr. 25643

Art: Haus
Land: Österreich
Baujahr: 2008
Alter: Neubau
Kaufpreis: 1.490.000,00
Provision: 53.640,00 € inkl. 20% USt.
Betriebskosten: 86,36 €
Wohnfläche: 197,51 m²
Grundstücksfl.: 280,00 m²
Zimmer: 7
Bäder: 3
WC: 3
Terrassen: 3
Stellplätze: 2
Heizwärmebedarf:  C  50,50 kWh/m²a
fGEE:  B  0,97
Immobilie merken Exposé

Ausstattung

Gas


Immobilie anfragen


Ihre persönliche Beratung

ESTINA Immobilien GmbH

Mag. Bettina Zaininger

WH2 Immobilienverwertungs GmbH

H +43 676 555 66 60