Traumhaft wohnen wie in NY-City (unmöbliert)

Wohnung - Etage, 1100 Wien


Beschreibung der Immobilie

Traumhaft wohnen wie in NY-City (unmöbliert)

Das K6 Wohnhaus ist ein innovatives Wohnprojekt der ARTEC und Neumann Architekten, das 2007 erfolgreich realisiert wurde und stellt einen Meilenstein für moderne Architektur in Wien Favoriten dar. Es besteht aus 267 Wohnungen, einer Seniorenwohngemeinschaft, Büro- und Geschäftsflächen, Ärzte, Fitness-Studio, Restaurants und einigen Geschäften. Auf drei Untergeschoßen sind Parkgaragenplätze vorhanden.





Die Westaussicht mit unverbaubarem Blick aus allen Wohnräumen ist das Highlight dieser Wohnung.



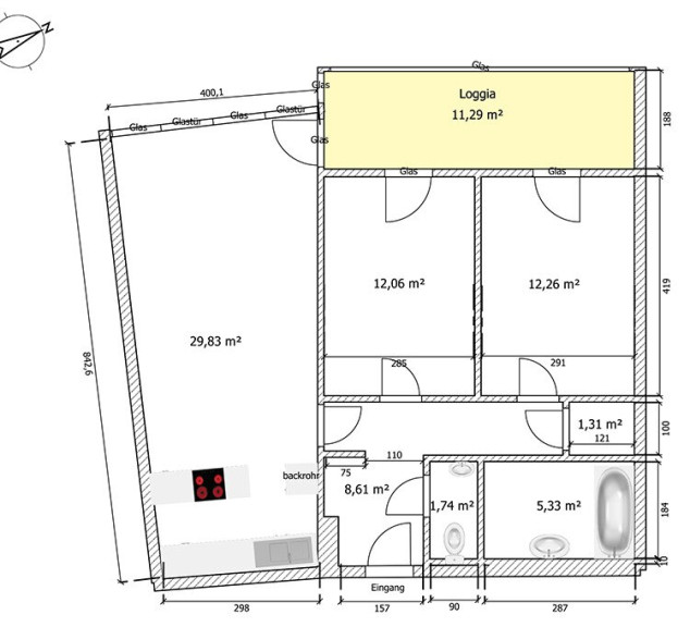
Raumaufteilung und Ausstattung:



  • großzügige Wohnküche (29,83 m²) mit sämtlichen Geräten
  • 1 Schlafzimmer (12,06 m²) 
  • 1 Schlafzimmer (12,26 m²) jedes mit Zugang zur Loggia (11 m²)
  • Bad mit Badewanne (5,33 m²)
  • separates WC (1,74 m²)
  • Loggia mit Infrarotkabine
  • Abstellraum (1,31 m²)
  • Vorraum (8,61 m²)


       eigenes Kellerabteil in der Wohnebene



Die großzügigen Glasflächen sind durch elektrische Außenjalousien beschattet.



Ein Tiefgaragenplatz kann separat angemietet werden (€ 97 p.m.)



Fahrradraum im Haus







Exzellente Anbindung an das öffentliche Verkehrsnetz:



  • U-Bahn Linie U1, Südtirolerplatz; ca 2 km
  • Matzleindsorfer Platz: ca 400 m (Straßenbahnlinien 1, 6, 18, 62, S-Bahn, 14A)
  • Wien Hauptbahnhof: ca 2,5 km mit Fern- und Regionalverbindungen, S-Bahnen, diversen Bus- und Straßenbahnverbindungen, Vienna Airport Lines zum Flughafen Wien Schwechat
  • Buslinie 7A: ca 200 m
  • Buslinie 14A: ca 850 m



Der Vermittler ist als Doppelmakler tätig.

Infrastruktur / Entfernungen

Gesundheit
Arzt <500m
Apotheke <500m
Klinik <500m
Krankenhaus <500m

Kinder & Schulen
Schule <500m
Kindergarten <500m
Universität <1.500m
Höhere Schule <1.500m

Nahversorgung
Supermarkt <500m
Bäckerei <500m
Einkaufszentrum <2.000m

Sonstige
Geldautomat <1.000m
Bank <1.000m
Post <1.000m
Polizei <1.000m

Verkehr
Bus <500m
U-Bahn <1.000m
Straßenbahn <500m
Bahnhof <500m
Autobahnanschluss <3.000m

Angaben Entfernung Luftlinie / Quelle: OpenStreetMap

Eckdaten Objektnr. 5998/603

Art: Wohnung - Etage
Land: Österreich
Baujahr: 2007
Alter: Neubau
Kaufpreis: 396.000,00
Betriebskosten: 180,96 €
MwSt Gesamt: 19,68 €
Wohnfläche: 79,50 m²
Zimmer: 3
Bäder: 1
WC: 1
Stellplätze: 1
Heizwärmebedarf:  B  32,18 kWh/m²a
fGEE:  B  1,00
Immobilie merken Exposé

Ausstattung

Parkett, Einbauküche, Personenaufzug, Westbalkon, Badewanne


Immobilie anfragen


Ihre persönliche Beratung

VM Estates GmbH

GUDRUN BOGNER

VM Estates GmbH

T +43 1 30 84 175

H +43 676 3536 778