Exklusives Weinberg-Refugium: unverbaubarer Panoramablick in absoluter Ruhelage I hightech Pool I Dachterrasse mit Whirlpool I Erdwärme, Solarpaneele, Fußbodenheizung, Kühldecke

Haus - Einfamilienhaus, 1190 Wien


Hackenberg, Neustift am Walde, Krottenbachstraße Einkaufsmöglichkeiten: Restaurants, Heurigen, Supermärkte in der Nähe.  Öffentliche Verkehrsanbindung: 252 Meter bis zur Busstation 39A Neustift/Agnesgasse 218 Meter bis zur Busstation 35A Neustift/Agnesgasse 309 Meter bis zur Busstation 43B Neustift/Agnesgasse

Beschreibung der Immobilie

Exklusives Weinberg-Refugium: unverbaubarer Panoramablick in absoluter Ruhelage I hightech Pool I Dachterrasse mit Whirlpool I Erdwärme, Solarpaneele, Fußbodenheizung, Kühldecke

In einer der besten Lagen des 19. Bezirksruhig gelegen am Hackenberg – präsentiert sich dieses freistehende Einfamilienhaus als seltene Gelegenheit für anspruchsvolles Wohnen. Auf drei Wohnebenen bietet die Liegenschaft vier helle Zimmer mit unverbaubarem Blick über die umliegenden Weinberge. Der gepflegte Garten mit Pool bietet Rückzug und Privatsphäre, während die großzügige Dachterrasse mit Whirlpool, eindrucksvolle Ausblicke und stimmungsvolle Sonnenuntergänge über Wien ermöglicht. Im Inneren überzeugt das Haus durch eine durchdachte Raumplanung, hochwertige Ausführung und eine Einrichtung mit klarer Linie und Liebe zum Detail ein modernes Wohnambiente mit hoher Qualität.



Im Erdgeschoss befindet sich die großzügige, lichtdurchflutete Wohnbereich, ausgestattet mit einer maßgefertigten Tischlerküche und angrenzender Speis. Bodentiefe Glasfronten eröffnen den direkten Zugang zur sonnigen Terrasse und dem eleganten Pool, ein Gäste-WC komplettiert diese Ebene. Im ersten Obergeschoss erwarten Sie zwei Schlafzimmer mit Zugang zu einem Balkon, ein Schrankraum sowie ein Badezimmer mit WC – perfekte Rückzugsbereiche für Ruhe und Komfort. Der vollwertig ausgebaute Wohnkeller bietet ein weiteres Schlafzimmer mit Garderobenraum und Zugang zum Garten, ein Badezimmer mit WC, einen praktischen Abstellraum sowie einen separaten Raum mit Saunaanschluss. Die uneinsichtige, weitläufige Dachterrasse mit Whirlpool eröffnet einen unvergleichbaren Panoramablick über die Weinberge und die Umgebung.



Die Immobilie ist mit einer energiesparenden Wärmepumpe und einer Solaranlage ausgestattet, die ein besonders ressourceneffizientes Wohnen ermöglichen. Pufferspeicher sorgen dafür, dass die Sonnenenergie optimal genutzt wird. Für höchsten Komfort sorgen Fußboden- und Deckenkühlung, die eine gleichmäßige und angenehme Verteilung von Wärme und Kälte in allen Räumen gewährleisten. Bodentiefe, dreifach verglaste Fenster sind mit elektrischen Raffstores ausgestattet und verbinden Ästhetik mit Funktionalität. Die durchdachte Ambientebeleuchtung im Innen- und Außenbereich rundet die exklusive Wohnatmosphäre ab. Der hochmoderne Pool überzeugt durch minimalistisches Design und zehn unterschiedliche Funktionen, während der Whirlpool Platz für vier Personen bietet und höchsten Entspannungswert garantiert. Alle Terrassenflächen sind mit hochwertigen Steinteppich ausgestattet. Das gesamte Haus mit maßgefertigten Tischlerschränken bietet großzügigen Stauraum bei klarer Linienführung.



Dieses Architektenhaus verbindet Eleganz, Komfort und modernste Technik auf höchstem Niveau – ein einzigartiges Zuhause für Genießer, die Wert auf Qualität, Stil und Ruhe legen.





Highlights auf einen Blick:



  • Top-Ruhelage am Hackenberg 
  • Panoramablick: Unverbaubarer Ausblick über die Weinberge
  • Außenbereich: Großzügiger Garten mit Pool und uneinsichtiger Dachterrasse
  • Dachterrasse mit Whirlpool, Terrassenflächen mit hochwertigem Steinteppich
  • Maßgefertigte Tischlerküche, angrenzende Speis, Zugang zur Terrasse
  • Ausgebauter Wohnkeller
  • Energiesparende Wärmepumpe und Solaranlage mit Pufferspeichern
  • Fußbodenheizung und Deckenkühlung für gleichmäßige Temperaturverteilung
  • Bodentiefe, dreifach verglaste Fenster mit elektrischen Raffstores
  • Durchdachte Innen- und Außenbeleuchtung
  • durchdachte, maßgefertigte Tischlerschränke




Das Haus teilt sich wie folgt auf:



GARTENGESCHOSS



  • Wohnraum, ca. 26,51m² mit Zugang zur Terrasse 
  • Küche, ca. 7,29m²  
  • Speis, ca. 3,19m²  
  • Gäste-WC, ca. 1,49m²  
  • Terrasse, ca. 31,93m² 


1.OBERGESCHOSS



  • Zimmer, ca. 14,57m² mit Zugang zum Balkon
  • Zimmer, ca. 8,99m² mit Zugang zum Balkon
  • Vorraum, Garderobe, ca. 4,75m²  
  • Badezimmer mit WC, ca. 4,44m²    
  • Gang, ca. 3,98m²    


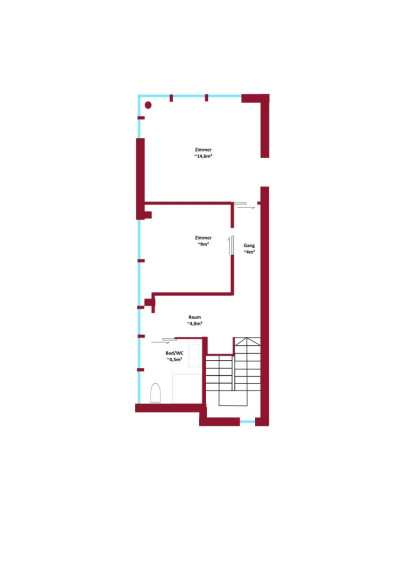
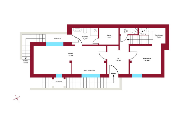
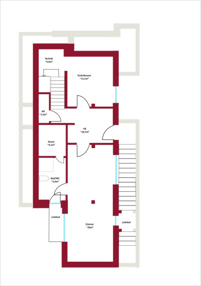
KELLERGESCHOSS



  • Zimmer, ca. 25,89m² mit Zugang zum Garten und Terrasse
  • Badezimmer ca. 5,64m² 
  • Saunaraum, ca. 4,10m²
  • Vorraum, ca. 10,73m²
  • Abstellraum, ca. 1,45m²
  • Technikraum, ca. 5,60m²
  • Technikraum, ca. 11,08m²


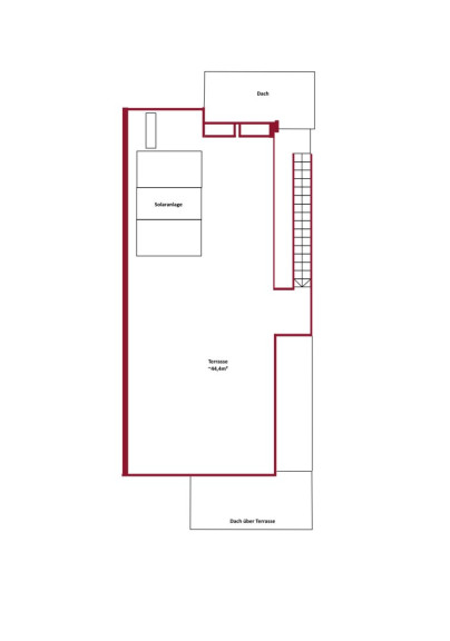
DACHGESCHOSS



  • Dachterrasse, ca. 44,44m² 



Einkaufsmöglichkeiten:



Restaurants, Heurigen, Supermärkte in der Nähe. 





Öffentliche Verkehrsanbindung:



ca. 252 Meter bis zur Busstation 39A Neustift/Agnesgasse



ca. 218 Meter bis zur Busstation 35A Neustift/Agnesgasse



ca. 309 Meter bis zur Busstation 43B Neustift/Agnesgasse





Kaufpreis:



Der Kaufpreis beträgt 1.890.000,-- Euro. Im Kaufpreis ist eine ausweisbare Umsatzsteuer enthalten, die unter gewissen Vorbehalten von Vorsteuerabzugsberechtigten steuerlich genutzt werden kann! Ebenso ist ein Mietkauf möglich, wobei der Mindestbarerlag € 600.000,-- beträgt! Für detaillierte Informationen bitte Anfragen! 





Gerne steht Ihnen Frau Elina Strautmane für weitere Fragen bzw. flexibel gestaltbare Besichtigungstermine unter 0664 99523313  zur Verfügung.  



www.ringsmuth-immobilien.at



Irrtum und Änderungen vorbehalten!


Hinweis gemäß Energieausweisvorlagegesetz: Ein Energieausweis wurde vom Eigentümer bzw. Verkäufer, nach unserer Aufklärung über die generell geltende Vorlagepflicht, sowie Aufforderung zu seiner Erstellung noch nicht vorgelegt. Daher gilt zumindest eine dem Alter und der Art des Gebäudes entsprechende Gesamtenergieeffizienz als vereinbart. Wir übernehmen keinerlei Gewähr oder Haftung für die tatsächliche Energieeffizienz der angebotenen Immobilie.


Der Vermittler ist als Doppelmakler tätig.

Infrastruktur / Entfernungen

Gesundheit
Arzt <500m
Apotheke <500m
Klinik <2.500m
Krankenhaus <3.000m

Kinder & Schulen
Schule <1.000m
Kindergarten <500m
Universität <2.500m
Höhere Schule <2.500m

Nahversorgung
Supermarkt <500m
Bäckerei <1.000m
Einkaufszentrum <3.500m

Sonstige
Geldautomat <1.500m
Bank <1.500m
Post <500m
Polizei <2.000m

Verkehr
Bus <500m
Straßenbahn <1.500m
U-Bahn <3.500m
Bahnhof <3.000m
Autobahnanschluss <4.500m

Angaben Entfernung Luftlinie / Quelle: OpenStreetMap

Eckdaten Objektnr. 16355

Art: Haus - Einfamilienhaus
Land: Österreich
Zustand: Neuwertig
Kaufpreis: 1.890.000,00
Provision: 3% des Kaufpreises zzgl. 20% USt.
Wohnfläche: 139,00 m²
Grundstücksfl.: 363,00 m²
Zimmer: 4
Balkone: 1
Terrassen: 2
Garten: 139,50 m²
Keller: 63,00 m²
Immobilie merken Exposé

Ausstattung

Parkett, Fliesen, Steinboden, Solarenergie, Erdwärme, Fußbodenheizung, Einbauküche, Bad mit Fenster, Badewanne, Dusche, Swimmingpool, Wasch/Trockenraum


Immobilie anfragen


Ihre persönliche Beratung

Alexander Ringsmuth GmbH

Elina Strautmane

Alexander Ringsmuth GmbH

T +43 1 3709098

H +43 664 99523313