Gewerbeobjekt in guter Frequenzlage- zusätzlich großzügiger Weinkeller möglich

Einzelhandel , 2340 Mödling


Beschreibung der Immobilie

Gewerbeobjekt in guter Frequenzlage- zusätzlich großzügiger Weinkeller möglich

Planen Sie aktuell eine Geschäftseröffnung und suchen dazu ein passendes Lokal?



Zur sofortigen Übernahme bereit steht ein gepflegtes Geschäftslokal mit angenehm hoher Raumhöhe und großzügiger Fensterfront in Richtung Straße, welche eine angenehme Lichtatmosphäre mit sich bringt. Es ist in einem sanierten Stilhaus in Mödling gelegen. Sie erhalten ein funktionales und helles Raumangebot, das sich perfekt für verschiedene Geschäftsideen eignet-  perfekt als Eisgeschäft, attraktive Verkaufs-/ Präsentationsfläche, Atelier, Vinothek oder dergleichen nutzbar.



Dieses attraktive Geschäftslokal besticht durch seine zentrale Lage und hervorragende Erreichbarkeit

Durch die vielseitige Gestaltungsmöglichkeiten können Sie hier Ihre Visionen verwirklichen und Ihr Unternehmen zum Blühen bringen!



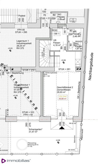
Raumaufteilung Geschäftslokal (siehe Plan anbei):
großer Verkaufsraum, ca 29,93 m², zu betreten über den straßenseitigen Eingang

kleiner Vorraum, ca 4,18 m²

Küchenbereich- eingerichtet mit einer recht einfachen Küche

Waschraum, ca 2,48 m²

WC, ca 1,67 m²



kleiner Schanigartenbereich vor dem Geschäftslokal, im Ausmaß von ca 12 m²



Ausstattung: Gaszentralheizung, einfache Küche verbleibt im Objekt (siehe Bild)



Mietdauer: 10 Jahre mit Verlängerungsoption mit allfälliger Verlängerungsoption

Miete: € 950.- zzgl Ust und anteilige BK 

Kaution: 3 Bruttomieten

Vermittlungshonorar: 3 Bruttomieten zzgl 20% Ust

Übernahme: sofort möglich



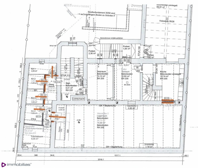
Ein weiteres Highlight ist der Gewölbekeller/ Weinkeller (trocken, kein unangenehmer Geruch) , der nicht nur zusätzlichen Stauraum bietet, sondern auch die perfekte Voraussetzung für Weinliebhaber darstellt. Nutzen Sie diesen besonderen Raum, um exklusive Weine anzubieten oder Ihre eigene Kollektion zu lagern.

Der großzügige Weinkeller/ Gewölbekeller verfügt über eine Gastroküche (eingerichtet) und kann zusätzlich angemietet werden. Dieser Bereich ist sowohl über das Geschäftslokal zu betreten, aber auch vom Gangbereich der Liegenschaft zugängig. Wird nur das Geschäftslokal angemietet, nicht aber der Gewölbekeller so wird der Zugang über das Geschäftslokal geschlossen werden. 



Raumaufteilung Weinkeller (siehe Plan anbei): 
Gastroküche, ca 12,74 m²

anschließender Gewölbekeller, ca 74,90 m²



Gesamtmiete für das Geschäftslokal und den Weinkeller:



Miete netto: € 2000.- zzgl Ust 

BK: € 161,50.- zzgl Ust

Heizung/ WW: € 120.- zzgl Ust (Akonto)

Miete warm: € 2 682.- brutto inkl Ust, BK und Heizung/WW



Mietdauer: 10 Jahre mit Verlängerungsoption mit allfälliger Verlängerungsoption

Kaution: 3 Bruttomieten

Vermittlungshonorar: 3 Bruttomieten zzgl 20% Ust

Übernahme: sofort möglich



Die Verkehrsanbindung könnte nicht besser sein: In unmittelbarer Nähe finden Sie eine Bushaltestelle sowie den Bahnhof, der eine schnelle Anbindung an die umliegenden Städte ermöglicht. Dies sorgt nicht nur für eine hohe Kundenfrequenz, sondern auch für eine einfache Erreichbarkeit für Ihre Mitarbeiter.



Nutzen Sie die Chance, in dieser aufstrebenden Region präsent zu sein und Ihr Geschäft in einem ansprechenden Umfeld zu etablieren. Vereinbaren Sie noch heute einen Besichtigungstermin und überzeugen Sie sich selbst von den zahlreichen Vorteilen dieser einzigartigen Immobilie! Seien Sie der nächste Erfolg in dieser lebendigen Nachbarschaft!



Für alle weiteren Fragen stehe ich Ihnen gerne zur Verfügung:

Andrea Höferstock
T: 0699/1 4444 700
E: office@immobilias.at


Viele weitere Angebote finden Sie auf unserer Homepage www.immobilias.at



Bitte beachten Sie, dass wir aufgrund der Nachweispflicht gegenüber dem Eigentümer nur Anfragen mit vollständiger Anschrift und  Telefonnummer bearbeiten können und auch nur in diesem Falle Auskünfte über Objektunterlagen und die genauen Liegenschaftsadresse geben dürfen.



Wir bitten um größtmögliche Diskretion und ersuchen Sie, Innenbesichtigungen und Verhandlungen ausschließlich über uns durchzuführen. Der Vollständigkeit halber halten wir fest, dass wir Ihnen bei Anmietung/ Ankauf eines von uns namhaft gemachten Objektes durch Sie oder einen durch Sie namhaft gemachten Dritten bzw. bei beidseitiger Willensübereinstimmung eine Vermittlungsprovision in der Höhe von 3 Bruttomonatsmieten bei Gewerbeimmobilien, 2 Bruttomonatsmieten bei Wohnimmobilien bzw. 3 % des Kaufpreises zuzüglich der gesetzlichen Umsatzsteuer in Rechnung stellen (Honorarverordnung für Immobilienmakler, BGBl. Nr. 262 und 297/1996).



Dieses Angebot ist unverbindlich und freibleibend. Die Angaben erfolgen aufgrund der Informationen und Unterlagen, die uns vom Eigentümer und/oder Dritten zur Verfügung gestellt werden und sind ohne Gewähr. Im übrigen gelten die allgemeinen Geschäftsbedingungen sowie die Verordnung des BM für wirtschaftliche Angelegenheiten über Standes- und Ausübungsregeln für Immobilienmakler, BGBl 297/96.

Noch nichts gefunden? Wir informieren Sie über geeignete Immobilienangebote noch vor allen anderen.
Legen Sie jetzt Ihren individuellen Suchagenten unter folgendem Link an. Wir schicken Ihnen passende Immobilien exklusiv vorab zu.

Suchagent anlegen - https://immobilias-realitaeten.service.immo/registrieren/de

!! Wir möchten Sie informieren – Maklervertrag Bestimmungen !!

(FAGG - Fern- u. Auswärtsgeschäfte-Gesetz - VRUG - Verbraucherrechte Richtlinie-Umsetzungsgesetz) 

Alleine durch die Unterfertigung dieses Maklervertrages und die Besichtigung von Objekten entstehen Ihnen keinerlei Kosten.
Erst mit dem Abschluss eines Kaufvertrages und/ oder eines Mietvertrages tritt unsere Verdienstlichkeit ein und es wird die Provisionszahlungspflicht iSd Provisionsvereinbarung dieses Vertrages ausgelöst!
Wenn der Kaufvertrag/ Mietvertrag nicht zustande kommt, bleibt unsere Tätigkeit für Sie vollkommen kostenlos!

Bitte haben Sie dafür Verständnis, dass wir Ihnen seit dem 13. Juni 2014 aufgrund der neuen EU-Richtlinie Unterlagen und Informationen zu unseren Objekten erst dann übersenden können, wenn Sie bestätigen, dass Sie unser vorzeitiges Tätigwerdenwünschen und über Ihre Rücktrittsrechte aufgeklärt wurden. Hierfür erhalten Sie nach Ihrer Anfrage eine Email mit den entsprechenden Unterlagen und einem Link, um diese Punkte zu bestätigen.

Vielen Dank!

Bitte beachten Sie, dass wir aufgrund der Nachweispflicht gegenüber dem Eigentümer und um Ihre Rechte zu wahren nur Anfragen mit vollständigen Kontaktdaten (Name, Anschrift und Telefonnummer) bearbeiten können und auch nur in diesem Falle Auskünfte über Objektunterlagen und die genauen Liegenschaftsadresse geben dürfen. Wir bitten um größtmögliche Diskretion und ersuchen Sie, Innenbesichtigungen und Verhandlungen ausschließlich über uns durchzuführen.

Nebenkosten lt. Nebenkostenübersicht

Der Vollständigkeit halber halten wir fest, dass wir Ihnen bei Anmietung/Ankauf eines von uns namhaft gemachten Objektes durch Sie oder einen durch Sie namhaft gemachten Dritten bzw. bei beidseitiger Willensübereinstimmung eine Vermittlungsprovision in der Höhe von 3 Bruttomonatsmieten bei Gewerbeimmobilien, 2 Bruttomonatsmieten bei Wohnimmobilien bzw. 3 % des Kaufpreises zuzüglich der gesetzlichen Umsatzsteuer in Rechnung stellen (Honorarverordnung für Immobilienmakler, BGBl. Nr. 262 und 297/1996).

Dieses Angebot ist unverbindlich und freibleibend. Die Angaben erfolgen aufgrund der Informationen und Unterlagen, die uns vom Eigentümer und/oder Dritten zur Verfügung gestellt werden und sind ohne Gewähr.

Im Übrigen gelten die allgemeinen Geschäftsbedingungen sowie die Verordnung des BM für wirtschaftliche Angelegenheiten über Standes- und Ausübungsregeln für Immobilienmakler, BGBl 297/96.

Alle Angaben im Angebot basieren auf Informationen und Unterlagen des Eigentümers und erfolgen nach bestem Wissen, jedoch ohne Gewähr auf Richtigkeit

Infrastruktur / Entfernungen

Gesundheit
Arzt <500m
Apotheke <500m
Klinik <1.500m
Krankenhaus <500m

Kinder & Schulen
Kindergarten <500m
Schule <500m
Höhere Schule <2.000m
Universität <10.000m

Nahversorgung
Supermarkt <500m
Bäckerei <500m
Einkaufszentrum <500m

Sonstige
Bank <500m
Geldautomat <1.000m
Post <1.500m
Polizei <1.500m

Verkehr
Bus <500m
U-Bahn <5.000m
Bahnhof <500m
Straßenbahn <5.000m
Autobahnanschluss <2.000m

Angaben Entfernung Luftlinie / Quelle: OpenStreetMap

Eckdaten Objektnr. 12287

Art: Einzelhandel
Land: Österreich
Baujahr: 1912
Zustand: Gepflegt
Möbliert: Teil
Alter: Altbau
Kaltmiete (netto): 950,00 €
Kaltmiete: 950,00 €
Provision: 3 Bruttomonatsmieten zzgl. 20% USt.
MwSt Gesamt: 190,00 €
Nutzfläche: 38,26 m²
Zimmer: 1
WC: 1
Heizwärmebedarf:  D  111,80 kWh/m²a
fGEE:  C  1,72
Immobilie merken Exposé

Ausstattung

Gas, Zentralheizung


Immobilie anfragen


Ihre persönliche Beratung

Immobilias Realitäten e.U.

Andrea Höferstock

Immobilias Realitäten e.U.

T +43 699 1 4444 700

H +43 699 1 4444 700