,,Der Benediktiner‘‘ – Stilvoller 3-Zimmer-Erstbezug - Nähe Kutschkermarkt
Wohnung
,
1180
Wien
Beschreibung der Immobilie
,,Der Benediktiner‘‘ – Stilvoller 3-Zimmer-Erstbezug - Nähe Kutschkermarkt
,,Der Benediktiner‘‘ – Stilvoll Wohnen im Herzen von WähringIn der begehrten Wohngegend des 18. Bezirks, in der Abt-Karl-Gasse 19 / Ecke Schulgasse 51, präsentiert sich das revitalisierte Wohnhaus "Der Benediktiner“ – eine gelungene Verbindung aus klassischem Wiener Altbau und modernem Wohnkomfort. Die geplante Fertigstellung ist das 1. Quartal 2026.
Im neu ausgebauten Dachgeschoss befinden sich insgesamt 6 exklusive Wohnungen, davon 3 stilvolle Maisonettwohnungen. Besonders hervorzuheben ist die Top 23, die mit einer großzügigen Dachterrasse und einem atemberaubenden 360-Grad-Blick über Wien beeindruckt – ein einzigartiges Wohngefühl hoch über den Dächern der Stadt.
Das liebevoll generalsanierte Gründerzeithaus wurde umfassend modernisiert und erstrahlt in neuem Glanz. Das bestehende Gebäude umfasst 16 hochwertige Wohnungen mit Größen zwischen ca. 37 m² und 131 m², viele davon mit Freiflächen wie Eigengärten, Balkonen, Terrassen oder Loggien.
Ausstattung und Architektur
Das Objekt überzeugt durch eine hochwertige Bauweise und ein stimmiges Ausstattungskonzept, das Altbauflair mit zeitgemäßen Standards verbindet:
Edle Echtholzparkettböden in den Wohnräumen
Fußbodenheizung mittels moderner Luft-Wärmepumpe
Großformatige Feinsteinzeugfliesen in Bad und WC
Hochwertige Sanitärausstattung und Design-Armaturen
Kunststofffenster mit 3-fach-Verglasung und außenliegendem Sonnenschutz
Kellerabteile, Fahrrad- und Kinderwagenräume im Haus
Helle, durchdachte Grundrisse, großzügige Freiflächen und ein harmonisches Design sorgen für ein exklusives Wohngefühl mit zeitloser Eleganz.
Lage und Umgebung
Die Liegenschaft befindet sich im beliebten Cottageviertel von Währing – einer der begehrtesten Wohnlagen Wiens. Die Umgebung bietet eine hervorragende Infrastruktur mit zahlreichen Einkaufsmöglichkeiten, dem Kutschkermarkt, gemütlichen Cafés, Schulen und Gesundheitseinrichtungen in unmittelbarer Nähe.
Auch die öffentliche Verkehrsanbindung ist ausgezeichnet:
Straßenbahnlinien 40, 41 und 42
U-Bahn-Linie U6 (Station Währinger Straße/Volksoper) in wenigen Minuten erreichbar
Kontaktieren Sie uns noch heute für weitere Informationen oder einen Besichtigungstermin!
Eckdaten Objektnr. 141/84373
| Art: | Wohnung |
| Land: | Österreich |
| Kaufpreis: | 464.000,00 € |
| Provision: | 3% |
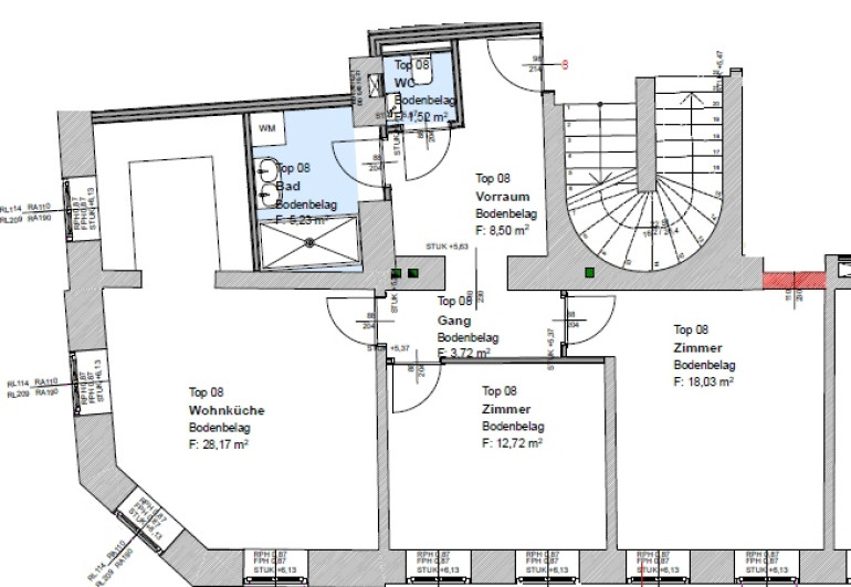
| Wohnfläche: | 77,89 m² |
| Zimmer: | 3 |
| Bäder: | 1 |
| WC: | 1 |
| Heizwärmebedarf: | B 37,20 kWh/m²a |
| fGEE: | A 0,76 |
Ausstattung
Personenaufzug
Ihre persönliche Beratung
Dieser Makler ist ein offizielles Mitglied des IR – ir.at Mehr Erfahren
