Hötting - Bestlage, 2 -Zimmer Altbauwohnung, guter Zustand mit einem TG-Platz

Wohnung , 6020 Innsbruck


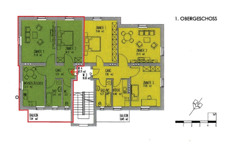
Vor 20 Jahren im Jahre 2005 wurde diese alte Villa neu adaptiert und bietet 6 Eigentümern/ Mietern einen wunderbaren Wohnflair. In aller bester Lage von Hötting und doch sehr nahe am Zentrum (Frau Hitt Straße) wird diese Altbauwohnung im Baurecht verkauft. Gut geschnitten mit 2 sehr schönen extra begehbaren Zimmern (Süd-West) Ausrichtung, geräumiger Vorraum, Bad, WC und nordseitiger Küche mit Balkon. Im 1. OG gelegen mit äußerst angenehmen Miteigentümern bzw. Mietern.

Beschreibung der Immobilie

Hötting - Bestlage, 2 -Zimmer Altbauwohnung, guter Zustand mit einem TG-Platz

In einer der gefragtesten Lagen Innsbrucks – im beliebten Stadtteil Hötting und äußerst Stadtnah aufgrund des kleinen Gehweges direkt zur Kirche in Mariahilf– erwartet Sie diese ca. 66 m² große, in gutem Zustand befindliche 2-Zimmer-Wohnung. Die durchdachte Raumaufteilung bietet ein großzügiges Wohn-/Esszimmer, ein gemütliches Schlafzimmer sowie eine moderne Küche. Die Ost-ausgerichteten Fenster bieten viel Morgensonne und bieten eine angenehme Wohnatmosphäre.



Wie schon oben erwähnt wurde diese Villa vor mehr als 20 Jahren aus Ihrem Dornröschenschlaf befreit und im wahrsten Sinn des Wortes neu adaptiert. Ab dem Jahre 2005 konnte dann eingezogen werden! Der Keller, die Heizungsanlage (Gasheizung) wurde neu adaptiert- es gibt auch selbstverständlich eine FI (Schutzschalter Elektrik). Die alten Eichenparketten, teils intarsiert (siehe Wohnzimmer) wurden abgeschliffen und neu versiegelt. Es wurde für jeden einzelnen Eigentümer eine tolle und somit äußerst angenehme Wohnatmosphäre geschaffen. Die im 1. Obergeschoss befindliche Wohnung ist sowohl nach Nordost (Küche), Südost (Wohnzimmer) und nach Süden (Schlafzimmer) ausgerichtet. Hinweis: Die Wohnung ist nicht barrierefrei!



Der 7,5m² große Balkon lädt zum längeren Verweil, eignet sich auch für ein Frühstück mit fantastischen Blick auf das Panorama der Nordkette (siehe Bilder) ! 



Eine tolles Detail am Rande ist die Mitbenützung des grossen nach Süden ausgerichteten Gemeinschaftsgarten





Wie schnell sind Sie von Ihrer neuen Wohnung aus im Zentrum:  - fussläufig nur 10 Gehminuten in die Altstadt, nur 5 Gehminuten im äusserst trendingen Innsbruck Stadtteil Mariahilf/St. Nikolaus mit seinen vielen Lokalen, Galerien und kleinen Geschäften - auch die Markthalle ist zum greifen Nahe - der Vorplatz der Markthalle bietet neben Wochenmärkten und Schaustellern, Konzerte und viele weitere Veranstaltungen! Bauernmärkte finden etwas unterhalb der alten Innbrücke jeden Samstag im Monat bei jedem Wetter am St. Nikolauser Platzl statt (Gehzeit ebenfalls zur 10 Minuten)! 



Die bestandsfreie Übergabe könnte jederzeit nach Absprache erfolgen.



Das Baurecht läuft noch bis 2095 –  ein ideales Objekt für Ihre persönliche Eigennutzung - 70 Jahre!



Auf die aktuell monatliche anfallenden Kosten darf noch verwiesen werden:



Betriebskosten monatlich brutto inkl. 20% Ust. € 177,28, Heizkosten inkl. 20% Ust. monatlich € 60, Rücklage von monatlich € 80,98 (keine Steuer) und dem monatlichen Baurechtszins von € 295,03 inkl. 

Infrastruktur / Entfernungen

Gesundheit
Arzt <500m
Apotheke <500m
Klinik <1.500m
Krankenhaus <1.000m

Kinder & Schulen
Schule <500m
Kindergarten <500m
Universität <500m
Höhere Schule <500m

Nahversorgung
Supermarkt <500m
Bäckerei <500m
Einkaufszentrum <500m

Sonstige
Bank <500m
Geldautomat <500m
Polizei <500m
Post <500m

Verkehr
Bus <500m
Straßenbahn <500m
Autobahnanschluss <2.000m
Bahnhof <1.000m
Flughafen <3.500m

Angaben Entfernung Luftlinie / Quelle: OpenStreetMap

Eckdaten Objektnr. 1721/83

Art: Wohnung
Land: Österreich
Kaufpreis: 450.000,00
Wohnfläche: 66,00 m²
Immobilie merken Exposé

Immobilie anfragen


Ihre persönliche Beratung

Immobilientreuhand Dr. Pollo GMBH

Dr. Roland Pollo

Immobilientreuhand Dr. Pollo GmbH - TESTACCOUNT

T +43 512 257046-4

H +43 699 15414646