# SQ - LIVING LIKE BEETHOVEN - VILLA IN GRINZING - DENKMALGESCHÜTZTES EINFAMILIENHAUS IN TOP LAGE

Haus - Einfamilienhaus, 1190 Wien


Inmitten von Grinzing, unweit zu den Weinhängen von Nußdorf und in der Nähe der Hohen Warte liegt das Beethoven-Haus. Sie sind auch in kürzester Zeit mit dem Auto oder mit dem Bus am Weingut Cobenzl, auf der Höhenstraße sowie im Wienerwald. Zahlreiche Restaurants, Heurige und Lokale sind zu Fuß erreichbar. Apotheke gegenüber, nächster Supermarkt und weitere Geschäfte zu Fuß in 10 min. erreichbar. Im Zentrum ist man mit dem Auto in ca. 15 min. Sehr gute öffentliche Anbindung durch Bus 38a und mit der Straßenbahn 37 (Hohe Warte – Schottentor) ohne Umsteigen direkt ins Zentrum in ca. 20. Min.

Beschreibung der Immobilie

# SQ - LIVING LIKE BEETHOVEN - VILLA IN GRINZING - DENKMALGESCHÜTZTES EINFAMILIENHAUS IN TOP LAGE

In bester Grinzinger Lage gelangt eine geschichtsträchtige Villa zum Verkauf.
In diesem, zum Teil denkmalgeschütztem und historischen Wohnhaus (Baujahr ca. 1790), hat bereits Beethoven zeitgleich mit Grillparzer gelebt!



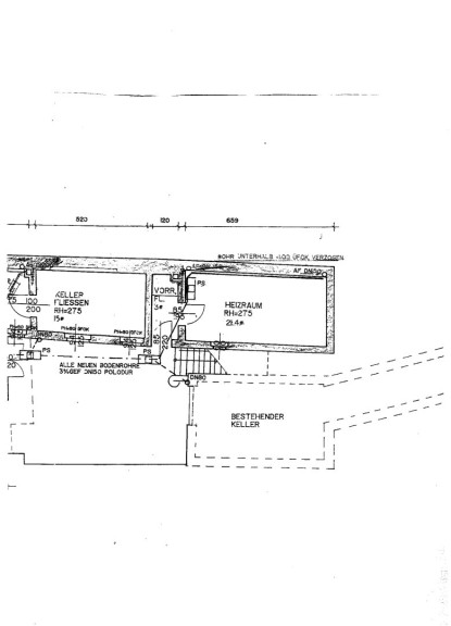
Die historische Fassade ist denkmalgeschützt. Hinter dem Wohnhaus erstreckt sich ein ca. 650m2 großer Eigengarten. Zum Innenhof des Hauses ausgerichtet liegen zwei Terrassen (und der Innenhof) auf unterschiedlichen Ebenen. Außerdem gehören zur Liegenschaft ein sehr großer historischer Weinkeller sowie ein Saunabereich. Das Haus befindet sich in gutem Zustand.



Gliederung des Hauses


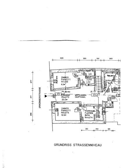
Straßenseitig betritt man die Villa und gelangt in einem großzügigen Vorraum. Von hier aus gelangt man rechts in ein straßenseitiges ebenerdiges Schlafzimmer mit eigener Dusche, links in weiteres straßenseitiges ebenerdiges Schlaf/-bzw. Arbeitszimmer sowie in einen großzügigen Wirtschaftsraum, geradeaus befindet sich der Innenhof. Über die denkmalgeschützte Stiege geht man in den Wohnbereich im 1. Stock. Dort befindet sich im denkmalgeschützten Teil des Hauses ein Wohnzimmer (straßenseitig) mit offenem Kamin und angrenzendem Lesezimmer mit Balkon (hofseitig) , rückwärtig ein Esszimmer (hofseitig), dahinter die Küche (Einbauküche) mit Ausgang zu einer weiteren Terrasse (hofseitig) Ebenso hofseitig, befindet sich der sehr ruhige Master-Bedroom mit angrenzendem Marmor-Bad und Zugang auf die hofseitige Terrasse. Eine Holzstiege führt hinauf ins ausgebaute Dachgeschoss: dort befinden sich weitere 2 Schlafzimmer mit einem gemeinsamen Bad, die auch hofseitig ausgerichtet sind.



Eckdaten:



  • Baujahr: 1790
  • Wohnfläche: ca. 295m²
  • Zimmer ges.: 9
  • 3 hofseitige Schlafzimmer
  • 2 straßenseitige Schlaf/Arbeits/Gästezimmer
  • 1 Wohnzimmer
  • 1 Lesezimmer
  • 1 Esszimmer
  • 1 Küche
  • Bäder: 3
  • WCs: 3 separate + weiteres WC im Master-Bedroom
  • Boden: Parkettboden
  • Terrassen: 2 + Innenhof
  • Garten: ca. 650m²



Möblierung: zum Teil maßangefertigte Einbauten (z.B. Bibliothekwand im Wohnzimmer, Lesezimmer, Esszimmer, Küche, Schafzimmer samt eingebauten Schränken, Schränke im ausgebauten Dachgeschoss), ansonsten unmöbliert

Heizung: Gas-Zentralheizung, Fußbodenheizung im Bad

weitere Flächen: großer Weinkeller, Saunabereich (Zugang über Innenhof), Wirtschaftraum mit Waschmaschinenanschluß

Parkplatz: kein eigener Parkplatz vorhanden, eventuell möglich im näheren Umkreis zu mieten





Kaufpreis:



  • Gesamtkaufpreis: € 3.950.000,--
  • Provision: 3% vom Kaufpreis zzgl. 20% Ust.



Für Fragen und Besichtigungen kontaktieren Sie bitte Frau Mona Taghavi, BA unter 0650/231 1113 oder unter taghavi@stadtquartier.at


Weitere Objekte finden Sie unter www stadtquartier at



Obige Angaben basieren auf Informationen und Unterlagen des Eigentümers. Der guten Ordnung halber möchten wir festhalten, dass im Falle eines Abschlusses mit Ihnen oder einem von Ihnen namhaft gemachten Dritten unser Honorar (lt. Honorarverordnung für Immobilienmakler, BGBl. 262 und 297/1996) 2 Bruttomonatsmieten zzgl. der gesetzlichen MwSt. beträgt. Wir weisen auf ein wirtschaftliches Naheverhältnis zum Eigentümer hin. Es gelten unsere allgemeinen Geschäftsbedingungen. Irrtum vorbehalten.







English:


Beethoven-house in Grinzing!


In a prime location in Grinzing, you will find this beautiful and historic villa (built around 1790). Historical documents prove that Beethoven lived in the building together with Grillparzer.

The historic facade and parts of the house are landmarked. A approx. 600m² large garden is adjacent to the main building. Facing the courtyard there are two terraces and a balcony at different levels. The property includes a very large historic wine cellar and a sauna. The house is already in good condition.



location



The „Beethoven-house“ is situated in the heart of Grinzing, near the vineyards of „Nußdorf“ and near the „Hohen Warte“. The Cobenzl Vineyard, the Höhenstraße and the Vienna Woods are also in closer reaching distance. Numerous restaurants and taverns are within walking distance. A Pharmacy, a supermarket and other alimentary shops are reachable by foot.

It is also only a 15 minute car ride to the center of Vienna. Nevertheless you will also find the following means of transport at your disposal: the bus 38 and the tram 37 (from:Hohewarte – to:Schottentor), offering a direct connection to the center in around 20 min.





Facts and Figures



Living area: approx 295m2

rooms: 9

Bedrooms: 5 (3 located to the courtyard, 2 located to the street)

Living room, kitchen, dining room, reading room

Floor: hardwood floor

WC: 3 + another toilet in the separate master bedroom

Bathrooms: 3

Terraces: 2 and balcony

Garden: approx 650m2

Furnishing: partially built-in furniture (for example a library wall in the living room), otherwise unfurnished

Heating: gas central heating, underfloor heating in the bathroom

other areas: wine cellar, sauna (access via courtyard), room for washing maschine

Parking: No parking available, it may be possible in the near vicinity



Purchase Price: € 3.950.000,--



Commission 3% from Purchase Price + 20% VAT


Hinweis gemäß Energieausweisvorlagegesetz: Ein Energieausweis wurde vom Eigentümer bzw. Verkäufer, nach unserer Aufklärung über die generell geltende Vorlagepflicht, sowie Aufforderung zu seiner Erstellung noch nicht vorgelegt. Daher gilt zumindest eine dem Alter und der Art des Gebäudes entsprechende Gesamtenergieeffizienz als vereinbart. Wir übernehmen keinerlei Gewähr oder Haftung für die tatsächliche Energieeffizienz der angebotenen Immobilie.


Wir weisen darauf hin, dass zwischen dem Vermittler und dem zu vermittelnden Dritten ein familiäres oder wirtschaftliches Naheverhältnis besteht.

Infrastruktur / Entfernungen

Gesundheit
Arzt <500m
Apotheke <500m
Klinik <500m
Krankenhaus <1.500m

Kinder & Schulen
Schule <500m
Kindergarten <1.000m
Universität <1.000m
Höhere Schule <500m

Nahversorgung
Supermarkt <1.000m
Bäckerei <1.000m
Einkaufszentrum <1.500m

Sonstige
Geldautomat <1.000m
Bank <1.000m
Post <1.000m
Polizei <1.000m

Verkehr
Bus <500m
U-Bahn <1.500m
Straßenbahn <500m
Bahnhof <1.000m
Autobahnanschluss <1.500m

Angaben Entfernung Luftlinie / Quelle: OpenStreetMap

Eckdaten Objektnr. 20922

Art: Haus - Einfamilienhaus
Land: Österreich
Baujahr: 1790
Zustand: Gepflegt
Möbliert: Teil
Alter: Altbau
Provision: 3% des Kaufpreises zzgl. 20% USt.
Wohnfläche: 296,00 m²
Nutzfläche: 296,00 m²
Grundstücksfl.: 880,00 m²
Gesamtfläche: 296,00 m²
Zimmer: 9
Bäder: 3
WC: 4
Balkone: 1
Terrassen: 3
Garten: 650,00 m²
Immobilie merken Exposé

Ausstattung

Fliesen, Parkett, Gas, Zentralheizung, Einbauküche, Sauna


Immobilie anfragen


Ihre persönliche Beratung

STADTQUARTIER Home GmbH

Mona Taghavi

STADTQUARTIER Real Estate Group

T +43650 2311113

H +43650 2311113