BÜROKOMPLEX - Büroetage im SÜDSTADT ZENTRUM 2344 MARIA ENZERSDORF
                                                            Halle / Lager / Produktion
                                - Produktion,
                            
                            
                                
                                                                            2344
                                    
                                                                            Maria Enzersdorf
                                    
                                    
                                
                                                                    
                                        
                                    
                                
                            
                        
                        Beschreibung der Immobilie
BÜROKOMPLEX - Büroetage im SÜDSTADT ZENTRUM 2344 MARIA ENZERSDORF
BÜROKOMPLEX - Büroetage im SÜDSTADT ZENTRUM 2344 MARIA ENZERSDORF
Vielfältige Nutzungsmöglichkeiten für Büros, Studenten-, Arbeiterwohnheim, Labore, Ärztezentrum,...
Gesamtfläche 1.107,85m² im 3. Liftstock mit tollem Ausblick, gesamtes Geschoß bestehend aus drei Flügeln (Nordflügel: 314,38m², Südflügel: 317,98m², Westflügel 372,14m²) und gemeinsamen Eingangsbereich mit 103,35m²
AUFTEILUNG UND AUSSTATTUNG
- ca. 30 Büros
 - Teeküchen
 - sanitäre Anlagen
 - Klimaanlage
 - Fernwärme
 - Technikraum im 4. Stock 13,70m²
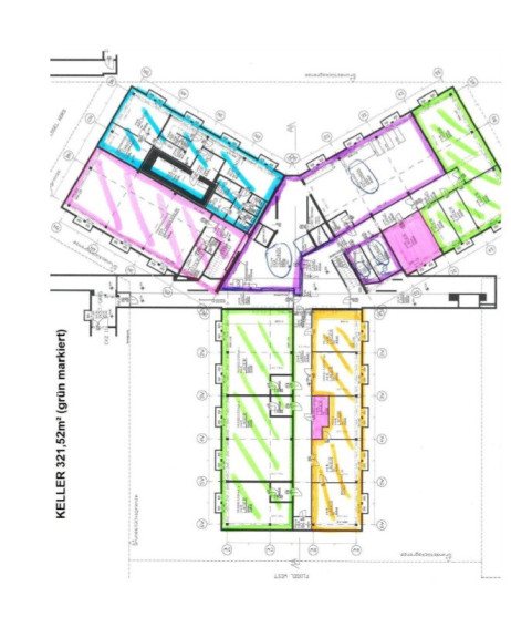
 - Keller 321,52m² (grün markierter Bereich auf dem Grundrissplan): aufgeteilt in mehrere einzelne Lager
 - 3 PKW Abstellplätze im Freien: gesamt 55m²
 
BEBAUUNGSBESTIMMUNGEN
- Bauland Kerngebiet (ab dem 1. OG), Bebauungsdichte 35%, offene
 - Bauweise, Bauklasse VI
 - Umwidmung auf Bauland
 - Wohngebiet ist möglich!
 
Rücklagen im Haus ca. 1.000.000 EUR
HWB 46, fGEE 1,48
Betriebskosten inkl. Rücklagen, Heizung, Lift, USt. € 8.189
LAGE UND INFRASTRUKTUR
Das 5 stöckige Gebäude, das sog. Y Gebäude, in welchem sich die zu verkaufende Liegenschaft befindet, liegt südlich von Wien (Autobahnabfahrt A2 Shopping City Süd). Angrenzend gibt es ein Einkaufszentrum, welches 2020 neu gebaut wurde (u.a. mit einem Billa Supermarkt, Apotheke, Bäckerei, Fleischhauer, Postpartner, Trafik, Frisöre, Boutique, etc.).
Die Verkehrsverbindungen sind optimal. Von einer Bushaltestelle unmittelbar vor dem EKZ gelangen Sie entweder nach Mödling (Schnellbahn) oder zur U6 (Siebenhirten) und zur U4 (Hietzing). Die ebenfalls in unmittelbarer Nähe befindliche Badener Bahn bringt S ie in 30 min entweder nach Baden oder nach Wien/Staatsoper. Die Shopping City Süd (SCS) ist eine Badener Bahn Station oder 5 Autominuten entfernt.
KONDITIONEN
Kaufpreis: € 999.000,-
Provision: 3% des Kaufpreises zzgl. 20% USt. 
3,5% Grunderwerbssteuer
1,1% Eintragung ins Grundbuch
Vertragserrichtung + Barauslagen + Notar 
Übernahme: ab sofort
Für weitere Fragen oder eine Besichtigung steht Ihnen Frau Cathrin Markiewicz unter +43 676 629 4050 oder unter cm@carma-partner.at jederzeit gerne zur Verfügung.
Der Käufer zahlt im Erfolgsfall an die Firma Carma & Partner GmbH eine Käufer-Maklerprovision in Höhe von 3% des Kaufpreises zzgl. 20% Ust. Die Provision errechnet sich aus dem beurkundeten Kaufpreis. Wir halten fest, dass Ihnen dieses Objekt erstmals durch unsere Tätigkeit als Immobilienmakler bekannt wurde. Falls Ihnen dieses Objekt bereits als verkauf- oder vermietbar bekannt ist, ersuchen wir innerhalb von 3 Werktagen um Ihre schriftliche Nachricht, ansonsten gilt die Provisionsregelung als vereinbart. Ausdrücklich vereinbart wird dieser Provisionsanspruch in gleicher Höhe auch für die in § 15 MaklerG vorgesehenen Fälle (Unterlassung eines notwendigen Rechtsaktes wider Treu und Glauben, Abschluss eines zweckgleichen Geschäftes, Abschluss mit einem Dritten aufgrund der Weitergabe der Abschlussmöglichkeit, Ausübung eines Vorkaufs-, Wiederkaufs- oder Eintrittsrechtes). Bei den Größen und Ertragsangaben handelt es sich um von Abgeber/in (Eigentümer/in bzw. Hausverwaltung) zur Verfügung gestellte Informationen. Die Angaben wurden von uns kontrolliert, eine Gewähr für die Richtigkeit, Vollständigkeit und Letztstand müssen wir allerdings ausschließen. Es wird darauf hingewiesen, dass zwischen dem Abgeber und dem Immobilienmakler ein wirtschaftliches Nahverhältnis besteht und der Immobilienmakler auch für diesen tätig ist (Doppelmakler).
Infrastruktur / Entfernungen
Gesundheit
Arzt <500m
Apotheke <500m
Klinik <2.500m
Krankenhaus <1.500m
Kinder & Schulen
Schule <500m
Kindergarten <500m
Universität <9.000m
Höhere Schule <3.000m
Nahversorgung
Supermarkt <500m
Bäckerei <500m
Einkaufszentrum <500m
Sonstige
Bank <500m
Geldautomat <500m
Post <500m
Polizei <2.000m
Verkehr
Bus <500m
U-Bahn <4.000m
Straßenbahn <5.500m
Bahnhof <500m
Autobahnanschluss <1.500m
Angaben Entfernung Luftlinie / Quelle: OpenStreetMap
Eckdaten Objektnr. 6460/306
| Art: | Halle / Lager / Produktion - Produktion | 
| Land: | Österreich | 
| Baujahr: | 1972 | 
| Zustand: | Sanierungsbeduerftig | 
| Alter: | Neubau | 
| Kaufpreis: | 999.000,00 € | 
| Kaufpreis / m²: | 901,75 € | 
| Nutzfläche: | 1.107,85 m² | 
| Zimmer: | 30 | 
| Stellplätze: | 3 | 
| Heizwärmebedarf: | B 46,00 kWh/m²a | 
| fGEE: | C 1,48 | 
Ihre persönliche Beratung
                                                        Cathrin Markiewicz
Carma & Partner GmbH