Vom Vertrag zum Ertrag - schneller geht’s nicht! Ca. 4,28% Rendite + Tolle Raumaufteilung + Attraktiv befristet vermietet + Perfekte Infrastruktur und öffentliche Anbindung!

Wohnung , 1100 Wien , Sonnleithnergasse


Die Lage besticht durch eine perfekte öffentliche Anbindung! Öffis: Straßenbahn 1, 6, 18, 62 / Bus 14A, N6 / Bahnhof Matzleinsdorfer Platz REX1, REX2, R3 Die Liegenschaft befindet sich quasi direkt beim wunderschönen ca. 4ha großen Waldmüllerpark und in unmittelbarar Gehdistanz von zahlreichen Supermärkten, Shops und Dienstleistern.

Beschreibung der Immobilie

Vom Vertrag zum Ertrag - schneller geht’s nicht! Ca. 4,28% Rendite + Tolle Raumaufteilung + Attraktiv befristet vermietet + Perfekte Infrastruktur und öffentliche Anbindung!

Vom Vertrag zum Ertrag - schneller geht’s nicht! Ca. 4,28% Rendite + Tolle Raumaufteilung + Attraktiv befristet vermietet + Perfekte Infrastruktur und öffentliche Anbindung!





Ihr Vorteil: Rund 50.000 Menschen leben und arbeiten im Einzugsgebiet des Matzleinsdorfer Platzes und werden zukünftig direkt von der neuen U2-Station profitieren. Durch die Anbindung der neuen U2 an die S-Bahn-Stammstrecke können hier künftig täglich Tausende Pendler*innen aus dem Süden Wiens in die U-Bahn in Richtung Zentrum umsteigen. In nur sieben Minuten gelangen Fahrgäste dann z.B. vom Matzleinsdorfer Platz zum Rathaus.



Im Zuge dessen wird es eine große stadtplanerische Aufwertung der Umgebung sowie der Infrastrukur geben und damit einher auch zu attraktiven Preissteigerungen Ihres Investments führen.



Highlights: Optimale Grundrisse / Neu-Vermietung bis dato in nur wenigen Tagen / Tolle Infrastruktur und Anbindung





Heute kaufen, morgen kassieren! Keine Mietersuche - Einfach kassieren ab dem 1.Tag!



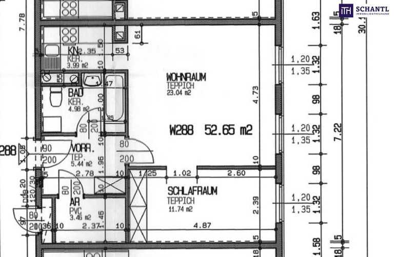
TOP 288 (8.Stock):



Ihr neues Investment begeistert bereits Ihre Mieter und teilt sich in einen Vorraum mit Platz für eine Garderobe, ein Badezimmer mit Badewanne, WC und Waschmaschinenanschluss, einen praktischen Abstellraum, ein großzügiges Wohn-Esszimmer mit einer leicht abgetrennten und voll ausgestatteten Küche, sowie ein kuscheliges Schlafzimmer.





Wo andere wohnen, wächst Ihr Vermögen!



Wohnfläche: ca. 52,66m² + Kellerabteil



Miete netto pro Monat: € 816,23.-



Kaufpreis: € 229.000.-



Befristet vermietet bis: 30.04.2030



Aktuelle Rendite: ca. 4,28%





www.schantl-ith.at



Bei konkretem Interesse senden wir Ihnen sehr gerne weiterführende Dokumente zu, wie:



o Grundbuchauszug



o Wohnungseigentumsvertrag



o Nutzwertgutachten



o Eigentümerversammlungsprotokoll (Falls vorhanden) etc...





Unser Service für Sie: Wenn Sie sich für diese Immobilie entschieden haben, begleiten wir Sie gerne vom Kaufanbot weg inkl. Klärung von Sonderwünschen und der Vertragsunterzeichnung über die Wohnungsübergabe bis hin zu diversen Ummeldungen wie Strom und Gas. Entsprechende Formulare oder auch Meldezettel stellen wir Ihnen sehr gerne zur Verfügung.



Gerne unterstützen wir Sie auch bei der Finanzierung Ihres Traumobjekts und finden mit unseren langjährigen Partnern die besten Konditionen für Sie.


Wir weisen darauf hin, dass zwischen dem Vermittler und dem zu vermittelnden Dritten ein familiäres oder wirtschaftliches Naheverhältnis besteht.


Der Vermittler ist als Doppelmakler tätig.

Infrastruktur / Entfernungen

Gesundheit
Arzt <250m
Apotheke <500m
Klinik <500m
Krankenhaus <1.000m

Kinder & Schulen
Schule <500m
Kindergarten <500m
Universität <1.000m
Höhere Schule <1.500m

Nahversorgung
Supermarkt <500m
Bäckerei <250m
Einkaufszentrum <1.000m

Sonstige
Geldautomat <250m
Bank <250m
Post <750m
Polizei <750m

Verkehr
Bus <250m
U-Bahn <500m
Straßenbahn <250m
Bahnhof <500m
Autobahnanschluss <2.500m

Angaben Entfernung Luftlinie / Quelle: OpenStreetMap

Eckdaten Objektnr. 289639

Art: Wohnung
Land: Österreich
Baujahr: 1993
Zustand: Neuwertig
Alter: Neubau
Kaufpreis: 229.000,00
Kaufpreis / m²: 4.348,65 €
Provision: 3% des Kaufpreises zzgl. 20% USt.
Betriebskosten: 189,58 €
MwSt Gesamt: 18,96 €
Wohnfläche: 52,66 m²
Nutzfläche: 52,66 m²
Zimmer: 2
Bäder: 1
WC: 1
Keller: 2,35 m²
Heizwärmebedarf:  B  43,52 kWh/m²a
fGEE:  C  1,15
Immobilie merken Exposé

Ausstattung

Fliesen, Laminatboden, Gas, Zentralheizung, Einbauküche, Personenaufzug, Badewanne, Kabel/Satelliten-TV, Wasch/Trockenraum


Immobilie anfragen


Ihre persönliche Beratung

Schantl ITH Immobilientreuhand GmbH

Samir Agha-Schantl

Schantl ITH Immobilientreuhand GmbH

T 0043 664 3070009

H 0043 660 4701793