Begehrte Terrassenwohnung Top A.04 - Neubauprojekt SCHÖN | DORF | BLICK

Wohnung - Terrassenwohnung, 4840 Vöcklabruck , Doktor-Anton-Bruckner-Straße 39


Die Bezirkshauptstadt Vöcklabruck vereint die Vorzüge einer modernen Stadt mit der Ruhe und Natur des Salzkammerguts und bietet als wirtschaftlich starke Bezirksstadt alles, was modernes Leben ausmacht! Einkaufsmöglichkeiten, Schulen, Kindergärten, Ärzte und Freizeitangebote befinden sich in unmittelbarer Nähe. Die Dr.-Anton-Bruckner-Straße punktet durch ihre zentrale Lage – hier profitieren Sie von bester Erreichbarkeit und hoher Lebensqualität. Dank der Nähe zur A1 Westautobahn, dem Bahnhof Vöcklabruck sowie zur Vöckla-Au genießen Bewohner eine perfekte Balance aus Mobilität, Natur und urbanem Komfort.

Beschreibung der Immobilie

Begehrte Terrassenwohnung Top A.04 - Neubauprojekt SCHÖN | DORF | BLICK

In der Dr.-Anton-Bruckner-Straße in Vöcklabruck entsteht mit dem SCHÖN | DORF | BLICK ein modernes Neubauprojekt, das Wohnkomfort, Funktionalität und Lebensqualität perfekt vereint. Zwei stilvolle Baukörper beherbergen insgesamt 31 Eigentumswohnungen mit Wohnflächen zwischen 37 und 116 m² sowie drei attraktive Gewerbeeinheiten mit 88 bis 108 m² Nutzfläche. Durchdacht geplant, hochwertig ausgestattet und in ruhiger, zugleich zentraler Lage, bietet SCHÖN | DORF | BLICK den idealen Ort zum Leben und Arbeiten.



Das Projekt umfasst zwei Gebäude mit klarer, zeitloser Architektur, eine großzügige Tiefgarage mit 35 Stellplätzen sowie sechs zusätzliche Freistellplätze. Der Bau hat bereits begonnen, die Fertigstellung ist für Sommer 2027 vorgesehen. Während die Wohnungen schlüsselfertig übergeben werden, werden die Gewerbeeinheiten im hochwertigen Edelrohbau ausgeführt – optimal für individuelle Gestaltungsmöglichkeiten.



Besonderes Augenmerk wurde auf eine Ausstattung gelegt, die Qualität und Komfort vereint. Elektrischer Sonnenschutz in allen Schlafräumen, edle Materialien und ein zeitloses Design sorgen für ein stilvolles Wohnambiente. Alle Wohnungen verfügen über großzügige Freiflächen wie Balkone, Terrassen oder Eigengärten. Fixpreise und ein hervorragendes Preis-Leistungs-Verhältnis bieten zusätzliche Planungssicherheit. Auch für die Gewerbeeinheiten stehen Kundenparkplätze direkt vor Ort zur Verfügung.





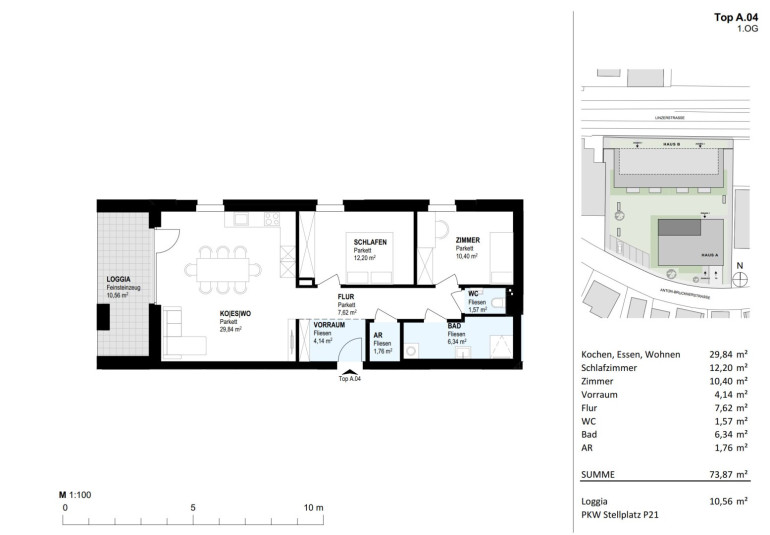
Wohnung Top A04 / 1.OG
Wohnfläche: ca. 74 m²

Ausführung: schlüsselfertig

1 Kellerabteil

1 Garagenstellplatz P21



Wohnung Top A04           € 322.300,00 

Garagenstellplatz P21       € 24.000,00

Gesamtkaufpreis             € 346.300,00




Der Erwerb der KFZ Stellplätze ist verpflichtend.



Die angeführten Kaufpreise verstehen sich für Endkunden umsatzsteuerbefreit, Anlegerpreise senden wir Ihnen auf Wunsch gerne zu.



Beim Neubauprojekt SCHÖN | DORF | BLICK investieren Sie in eine wertstabile, zukunftssichere Immobilie in einer prosperierenden Region Oberösterreichs. Ob zur Eigennutzung oder als Kapitalanlage – das Projekt steht für nachhaltiges Wohneigentum in gefragter Lage. Die attraktive Kombination aus Lage, Bauqualität und moderner Architektur garantiert langfristige Wertentwicklung und stabile Renditechancen. Dank der starken Nachfrage nach Wohn- und Gewerbeflächen in Vöcklabruck profitieren Anleger und Eigennutzer gleichermaßen – zusätzlich bietet die Immobilie Schutz vor Inflation durch ihren soliden Sachwertcharakter.





Bei Interesse freuen wir uns auf Ihre Anfrage.



Ihr SPERER Immobilien Team



Stefan Pichler | 0676 4630535 | s.pichler@sperer-group.com


Wir weisen darauf hin, dass zwischen dem Vermittler und dem zu vermittelnden Dritten ein familiäres oder wirtschaftliches Naheverhältnis besteht.


Der Vermittler ist als Doppelmakler tätig.

Infrastruktur / Entfernungen

Gesundheit
Arzt <550m
Apotheke <475m
Krankenhaus <1.400m

Kinder & Schulen
Schule <275m
Kindergarten <500m
Höhere Schule <575m

Nahversorgung
Supermarkt <125m
Bäckerei <575m
Einkaufszentrum <875m

Sonstige
Bank <400m
Geldautomat <400m
Polizei <575m
Post <925m

Verkehr
Bus <200m
Bahnhof <925m
Autobahnanschluss <5.200m

Angaben Entfernung Luftlinie / Quelle: OpenStreetMap

Eckdaten Objektnr. 256

Art: Wohnung - Terrassenwohnung
Land: Österreich
Baujahr: 2025
Zustand: Erstbezug
Alter: Neubau
Kaufpreis: 322.300,00
Kaufpreis / m²: 4.363,07 €
Provision: 3% des Kaufpreises zzgl. 20% USt.
Wohnfläche: 73,87 m²
Zimmer: 3
Heizwärmebedarf:  B  36,70 kWh/m²a
fGEE:  A+  0,68
Immobilie merken Exposé

Ausstattung

Parkett, Fliesen, Solarenergie, Fußbodenheizung, Personenaufzug


Immobilie anfragen


Ihre persönliche Beratung

SPERER Immobilien GmbH

Ing. Stefan Pichler

Axia Immobilien GmbH - TESTACCOUNT

T +43 7242 306030

H +43 676 4630535