Ideale 2-Zimmer Wohnung im Dachgeschoss - Neuer Preis! Mein Zuhause in Wieden! Hofseitiger Balkon + Beste Infrastruktur und Anbindung + 5min mit dem Rad zum Karlsplatz!

Wohnung - Dachgeschoß, 1040 Wien,Wieden , Wiedner Hauptstraße


Diese Wieden werden Sie lieben! Die Lage Ihrer neuen Wohnung wird Sie begeistern... Und das gleich aus mehreren Gründen! Profitieren Sie von einer perfekten Infrastruktur, einer tollen öffentlichen Anbindung und der zentralen Lage. Sie werden diese Lage lieben! Der beliebte 4.Bezirk hat viel zu bieten! Neben vielen bekannten und hippen Restaurants, Cafés und Bars, besticht die bunte Mischung mit Botschaften, Sehenswürdigkeiten, bekannten Plätzen, kulturellen Veranstaltungen, Adventmärkten und 11 städtischen Parkanlagen. Die Lage dieses Projektes bietet im Speziellen eine perfekte Infrastruktur. Im Haus selbst gibt es im Erdgeschoss einen DM, gleich ums Eck einen SPAR sowie einen Denns Biomarkt und alle Geschäfte des täglichen Bedarfs befinden sich in Gehweite. Ein kleiner Auszug der Geschäfte die Sie zu Fuß in 5min erreichen: Libro, Reformhaus, 2 Friseure, Bekleidungsgeschäfte, 2 Banken, Apotheke, Radatz, mehrere Ärzte, Bipa, Thai-Massage uvw. Die öffentliche Anbindung ist perfekt mit der Straßenbahn (1, 62 und Badner Bahn) und Bussen (13A) quasi vor der Türe. Nur ca. 9 Gehminuten entfernt haben Sie sogar die U1-Station Taubstummengasse zur Verfügung.

Beschreibung der Immobilie

Ideale 2-Zimmer Wohnung im Dachgeschoss - Neuer Preis! Mein Zuhause in Wieden! Hofseitiger Balkon + Beste Infrastruktur und Anbindung + 5min mit dem Rad zum Karlsplatz!

Ideale 2-Zimmer Wohnung im Dachgeschoss - Neuer Preis! Mein Zuhause in Wieden! Hofseitiger Balkon + Beste Infrastruktur und Anbindung + 5min mit dem Rad zum Karlsplatz!



Hier haben wir ein TOP-Projekt für Sie! Verwirklichen Sie Ihren Traum nach der eigenen Wohnung in Wiener Bestlage oder investieren Sie werthaltig und mit ausgezeichneter Zukunftsperspektive!



Ihre Wohnungssuche hat ein Ende!



Hier entstehen 10 attraktive Wohnträume - alle mit Balkon/Terrasse/Loggia und perfekter Raumaufteilung!





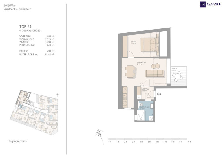
TOP 24 (1.Dachgeschoss):



Ihre neue Wohnung wird Sie restlos begeistern und teilt sich in einen kleinen Vorraum mit Platz für eine Garderobe, ein stylisches Badezimmer mit Fenster, Walk-In Dusche, WC und Waschmaschinenanschluss, ein ruhiges Schlafzimmer, einen separaten Küchenbereich mit Fenster, sowie ein Wohn-Esszimmer mit Zugang zum hofseitigen Balkon.



Highlights: Klimageräte, Sicherheitstüren WK3, Hochwertiger Parkettboden, Fußbodenheizung mit Einzelraumregelung, Luftwärmepumpen uvm.





Wohnfläche: ca. 51,44m² + Balkon: ca. 5,33m² + Kellerabteil



Kaufpreis: € 579.000.-



Geplante Fertigstellung: Sommer 2026 laut Auskunft des Bauträgers



Betriebskosten: Diese werden erst von der Hausverwaltung festgesetzt und nachgereicht. Die Schätzung liegt bei ca. 2.-/m².



Der Verkauf der Wohnungen erfolgt nach dem Bauträgervertragsgesetz (BTVG).





www.schantl-ith.at



Bei konkretem Interesse senden wir Ihnen sehr gerne weiterführende Dokumente zu, wie:



o Grundbuchauszug



o Wohnungseigentumsvertrag



o Nutzwertgutachten



o Eigentümerversammlungsprotokoll (Falls vorhanden) etc...





Unser Service für Sie: Wenn Sie sich für diese Immobilie entschieden haben, begleiten wir Sie gerne vom Kaufanbot weg inkl. Klärung von Sonderwünschen und der Vertragsunterzeichnung über die Wohnungsübergabe bis hin zu diversen Ummeldungen wie Strom und Gas. Entsprechende Formulare oder auch Meldezettel stellen wir Ihnen sehr gerne zur Verfügung.



Gerne unterstützen wir Sie auch bei der Finanzierung Ihres Traumobjekts und finden mit unseren langjährigen Partnern die besten Konditionen für Sie.


Wir weisen darauf hin, dass zwischen dem Vermittler und dem zu vermittelnden Dritten ein familiäres oder wirtschaftliches Naheverhältnis besteht.


Der Vermittler ist als Doppelmakler tätig.

Infrastruktur / Entfernungen

Gesundheit
Arzt <250m
Apotheke <250m
Klinik <750m
Krankenhaus <500m

Kinder & Schulen
Schule <250m
Kindergarten <250m
Universität <500m
Höhere Schule <750m

Nahversorgung
Supermarkt <250m
Bäckerei <250m
Einkaufszentrum <250m

Sonstige
Geldautomat <250m
Bank <250m
Post <250m
Polizei <750m

Verkehr
Bus <250m
U-Bahn <750m
Straßenbahn <250m
Bahnhof <500m
Autobahnanschluss <3.000m

Angaben Entfernung Luftlinie / Quelle: OpenStreetMap

Eckdaten Objektnr. 289586

Art: Wohnung - Dachgeschoß
Land: Österreich
Baujahr: 2024
Zustand: Erstbezug
Alter: Neubau
Kaufpreis: 579.000,00
Kaufpreis / m²: 10.199,05 €
Provision: 3% des Kaufpreises zzgl. 20% USt.
Wohnfläche: 51,44 m²
Nutzfläche: 56,77 m²
Zimmer: 2
Bäder: 1
WC: 1
Balkone: 1
Keller: 1,50 m²
Heizwärmebedarf:  B  32,60 kWh/m²a
fGEE:  A  0,82
Immobilie merken Exposé

Ausstattung

Parkett, Fliesen, Etagenheizung, Personenaufzug, Ostbalkon, Dusche, Kabel/Satelliten-TV


Immobilie anfragen


Ihre persönliche Beratung

Schantl ITH Immobilientreuhand GmbH

Samir Agha-Schantl

Schantl ITH Immobilientreuhand GmbH

T 0043 664 3070009

H 0043 660 4701793