Neuer Preis! Zeit zum Verlieben! Rarität in 1070 Wien! 4 Zimmer + Atemberaubender Wienblick

Wohnung , 1070 Wien,Neubau , Burggasse


„Wohnen in Bestlage am Spittelberg in 1070 Wien“ Eine inspirierende und trendige Adresse mit Tradition am Puls der Stadt! Ein Grätzel zum Verlieben! Erleben Sie kulinarische und kulturelle Highlights und genießen Sie lange Abende in einem der unzähligen Restaurants, Bars und Cafés. Zu Fuß erreichen Sie einige der schönsten Plätze die Wien zu bieten hat – der wohl beliebtesten Kunst- und Weihnachtsmarkt am Spittelberg liegt Ihnen zu Füßen, ebenso die bekannte Neubaugasse mit ihren unzähligen Pop-Up Stores, Boutiquen, kleinen Läden, Restaurants und Bars, das Museumsquartier als Freizeit-Hotspot für Kunst und Kulinarik oder das Volkstheater. Supermärkte befinden sich gleich ums Eck und sämtliche Geschäfte des täglichen Bedarfs in kurzer Gehdistanz. Die nur wenige Meter entfernte Mariahilfer Straße ist wohl das Paradies für Shopping-Liebhaber. Die Lage ist außerdem ein idealer Ausgangspunkt um in Kürze in die Innenstadt sowie zum Volks- und Burggarten zu gelangen oder auch ins Grüne wie den Wilhelminenberg. Perfekte öffentliche Anbindung: 3-5 Gehminuten zur U-Bahn U2 und U3 / 1-2 Gehminute zum Bus 13A + 48A / vor der Haustüre haltet die Straßenbahn 49 Hier wird Ihnen wohl jeder Wunsch erfüllt!

Beschreibung der Immobilie

Neuer Preis! Zeit zum Verlieben! Rarität in 1070 Wien! 4 Zimmer + Atemberaubender Wienblick

Geht nicht, gibt´s nicht!



Hier haben wir ein TOP-Projekt für Sie! Verwirklichen Sie Ihren Traum nach der eigenen Wohnung in Wiener Bestlage bzw. investieren Sie werthaltig und mit ausgezeichneter Zukunftsperspektive!



Ganz in der Nähe vom Spittelberg im Herzen Wiens, entstehen 4 atemberaubende Wohnungen im neu ausgebauten Dachgeschoss mit Terrassen/Balkonen, hochwertiger Ausstattung und allem was das Herz begehrt! 3 hausinterne Garagenplätze stehen zusätzlich zum Verkauf und versüßen dieses attraktive Angebot!





TOP 17:



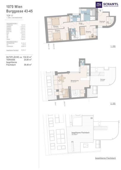
Ihre neue Wohnung wird Sie restlos begeistern und teilt sich auf der 1.Ebene in einen geräumigen Vorraum mit viel Platz für eine Garderobe und ein gemütliches Heimkommen, einen praktischen Abstellraum mit Waschmaschinenanschluss, 3 getrennt begehbare und großzügige Schlafzimmer, ein separates WC mit Handwaschbecken, einen weiteren Abstellraum unter dem Stiegenaufgang zur 2.Ebene, ein kleines Badezimmer mit Fenster, Walk-In Dusche und WC sowie ein großes, stylisches Badezimmer mit Fenster, Badewanne, großer Walk-In Dusche und einer Sauna als Highlight.



Der Sonne entgegen erreichen Sie dann über eine stylische Holztreppe die 2.Ebene auf welcher sich ein weiteres WC sowie ein supergroßer Wohn-Essbereich mit Zugang zur hofseitigen Traumterrasse, befindet. Ihre knapp 26m² große Terrasse ist in den Sonnenmonaten sicherlich eine gelungene Vergrößerung des Wohnbereichs. Ein weiteres Highlight ist das atemberaubende, begehbare Flachdach mit Blick über Wien! Genießen Sie die Sonnenaufgänge und Sonnenuntergänge, die grandiosen Silvester-Feuerwerke oder einfach nur das neue Lebensgefühl!





Highlights: Klimageräte, Sicherheitstüren WK3, Hochwertiger Parkettboden, Fußbodenheizung mit Einzelraumregelung, Luftwärmepumpen uvm.



Wohnfläche: ca. 134,52m² + Terrasse (2.Ebene): ca. 25,60m² + Begehbares Flachdach: ca. 39,48m²



Kaufpreis: € 1.790.000.-



Garagenplatz (groß genug auch für einen SUV): € 100.000.- (optional)



Geplante Fertigstellung: Sommer 2026 laut Auskunft des Bauträgers



Betriebskosten: Diese werden erst von der Hausverwaltung festgesetzt und nachgereicht. Die Schätzung liegt bei ca. 2.-/m².



Der Verkauf der Wohnungen erfolgt nach dem Bauträgervertragsgesetz (BTVG).





www.schantl-ith.at



Bei konkretem Interesse senden wir Ihnen sehr gerne weiterführende Dokumente zu, wie:



o Grundbuchauszug



o Wohnungseigentumsvertrag



o Nutzwertgutachten



o Eigentümerversammlungsprotokoll (Falls vorhanden) etc...





Unser Service für Sie: Wenn Sie sich für diese Immobilie entschieden haben, begleiten wir Sie gerne vom Kaufanbot weg inkl. Klärung von Sonderwünschen und der Vertragsunterzeichnung über die Wohnungsübergabe bis hin zu diversen Ummeldungen wie Strom und Gas. Entsprechende Formulare oder auch Meldezettel stellen wir Ihnen sehr gerne zur Verfügung.



Gerne unterstützen wir Sie auch bei der Finanzierung Ihres Traumobjekts und finden mit unseren langjährigen Partnern die besten Konditionen für Sie.


Wir weisen darauf hin, dass zwischen dem Vermittler und dem zu vermittelnden Dritten ein familiäres oder wirtschaftliches Naheverhältnis besteht.


Der Vermittler ist als Doppelmakler tätig.

Infrastruktur / Entfernungen

Gesundheit
Arzt <250m
Apotheke <250m
Klinik <500m
Krankenhaus <1.500m

Kinder & Schulen
Schule <250m
Kindergarten <750m
Universität <500m
Höhere Schule <750m

Nahversorgung
Supermarkt <250m
Bäckerei <250m
Einkaufszentrum <500m

Sonstige
Geldautomat <250m
Bank <500m
Post <500m
Polizei <500m

Verkehr
Bus <250m
U-Bahn <500m
Straßenbahn <250m
Bahnhof <500m
Autobahnanschluss <4.250m

Angaben Entfernung Luftlinie / Quelle: OpenStreetMap

Eckdaten Objektnr. 289595

Art: Wohnung
Land: Österreich
Baujahr: 2024
Zustand: Erstbezug
Alter: Neubau
Kaufpreis: 1.790.000,00
Kaufpreis / m²: 12.152,07 €
Provision: 3% des Kaufpreises zzgl. 20% USt.
Wohnfläche: 134,52 m²
Nutzfläche: 147,30 m²
Zimmer: 4
Bäder: 2
WC: 3
Terrassen: 1
Heizwärmebedarf:  B  32,00 kWh/m²a
fGEE:  A+  0,65
Immobilie merken Exposé

Ausstattung

Parkett, Fliesen, Etagenheizung, Personenaufzug, Bad mit Fenster, Badewanne, Dusche, Kabel/Satelliten-TV, Garage, Sauna


Immobilie anfragen


Ihre persönliche Beratung

Schantl ITH Immobilientreuhand GmbH

Samir Agha-Schantl

Schantl ITH Immobilientreuhand GmbH

T 0043 664 3070009

H 0043 660 4701793